Get discounts,
promos, see our
newest plans
and more!
+ 15% off any plan
See terms opt out anytime


No Thanks

Thanks for
signing up!


Use Code:

SIGNUP15

And save 15% off any plan!

Check your email for details.

CLOSE
Search Plans
Customer Reviews
     
15% off ALL House Plans Sitewide
15% off ALL House Plans Sitewide
15% off ALL House Plans Sitewide

Code: HONOR
Sale ends midnight 5/31/2026 PST

The White Oak Adorable Farm House Style House, Plan 8785

 
 

Sq Ft
2,041 FT²

Beds
3

Baths
2.5

Stories
1.5

Garage
2

Depth
72' 10"

Width
60'
On Sale
$1,190.00
$1,400.00
© copyright by designer
 View All 5 Images | Photographs may reflect modified home | Video Tour | 360° View
Sq Ft
2,041 FT²
Beds
3
Baths
2.5
Stories
1.5
Garage
2
Depth
72' 10"
Width
60'
 

 
Click to Zoom In on Floor Plan
© copyright by designer
 
 

About This Plan

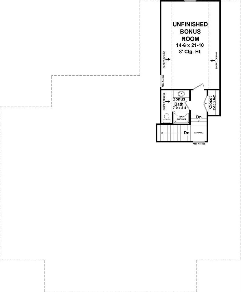
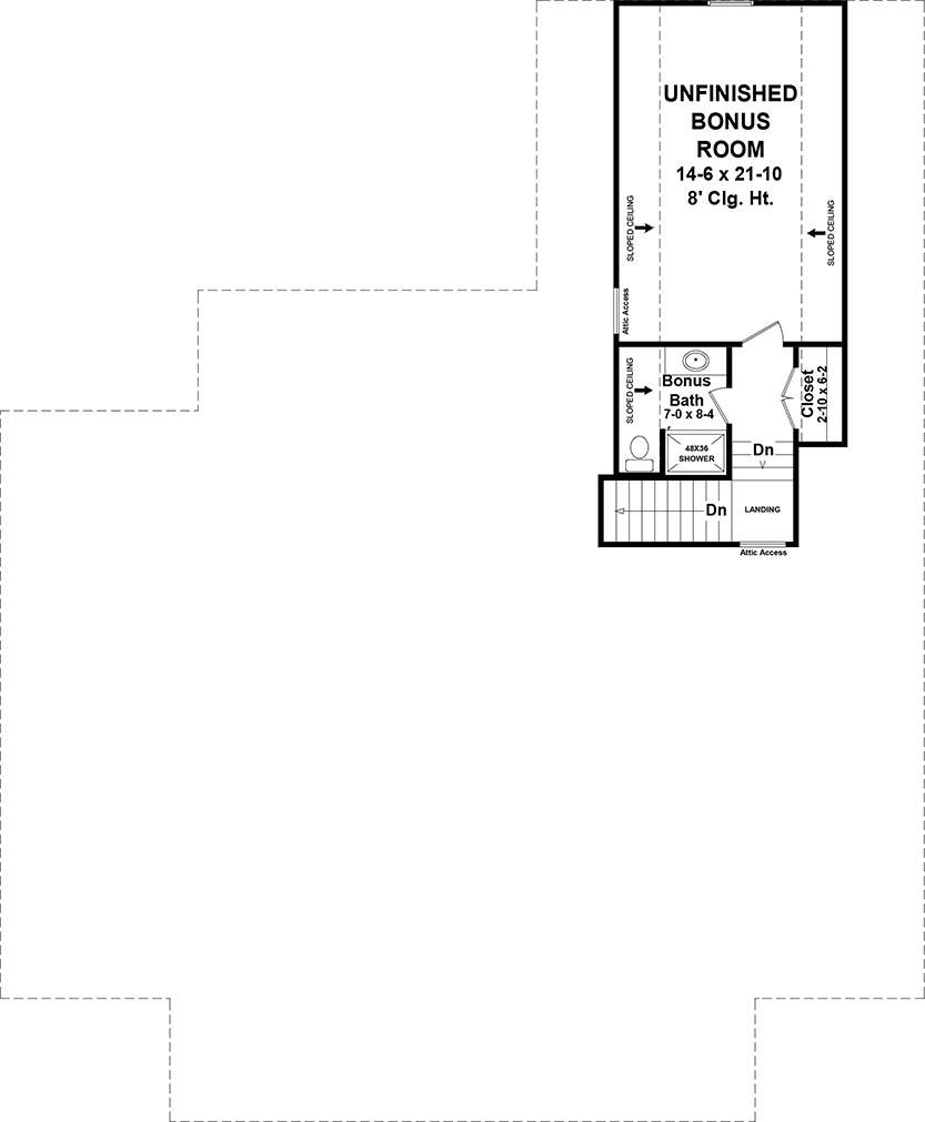
Think charming southern cottage meets rustic Craftsman styles and the result is this impressive family home. With its gently sloping roofline and lovely exposed wood accents, this design has top-notch curb appeal that perfectly compliments the amazing interior. Offered in a ranch layout, the 2,041 square feet is totally open and accessible for everyone of all ages and abilities. From the open living room and island kitchen to the master suite, everything that you could ever need is only mere steps away. And if you need space to grow either now or in the future, check out the large unfinished bonus room that sits atop the 2-car attached garage. The perfect area for adding your finishing touches to this great home! 

See All Plan Options
 

FEATURES & DETAILS

Kitchen features
Country Kitchen
Kitchen Island
L-Shaped
Pantry
Peninsula / Eating Bar
Bedroom features
Double Vanity Sink
Primary Bdrm Main Floor
Separate Tub and Shower
Split Bedrooms
Walk-in Closet
Exterior features
Covered Front Porch
Covered Rear Porch
Additional features
Bonus Room
Fireplace
Great Room
Home Office
Laundry 1st Fl
Open Floor Plan
Storage Space
Unfinished Space
Vaulted Great Room/Living
Workshop
Garage Location
Side
Garage Options
Attached
Oversized
Rear-entry
3,900 Ft
2
Total Structure
2,041 Ft
2
Total Heated
2,041 Ft
2
1st Floor
3
Bedrooms
2.5
Bathrooms
2
Garage
1.5
Stories
60' 0"
Width
72' 10"
Depth
25' 2"
Height
9' 0"
Main Floor Ceiling
15' 0"
Living/Great Room Ceiling
15' 0"
Foyer Ceiling
9' 0"
Primary Ceiling
2x4
Framing
Stick
Roof Framing
8 in 12
Primary Roof Pitch
12 in 12
Secondary Roof Pitch
Single
Dwelling Number
2nd Floor
Bonus Access

Unheated Living Space
829 Ft
2
Garage
566 Ft
2
Porch
462 Ft
2
Bonus Room
 

Plan Package Options

 Select Plan Package
 Need To Reverse Plan? (Optional)
  Select Foundation Option
  Add-Ons (Optional)
INCLUDED WITH YOUR PURCHASE

Free Ground shipping in the U.S.

FREE

Home Building & Product Ideas Organizer

Sub Total
$0
Free Shipping
QUESTIONS OR NEED HELP ORDERING? LIVE CHAT OR CALL US AT 866-214-2242
Plan Packages

Each set of construction documents typically includes detailed, dimensioned floor plans, basic electric layouts, cross sections, roof details, cabinet layouts, and elevations, as well as general IRC specifications. Please refer to the ARCHITECT or DESIGNER’S PLAN DETAILS link above the floor plan on any plan page to determine the specific details for each plan. Our house plans contain virtually all of the information required to construct your home. The typical plan set does not include plumbing, HVAC drawings, or engineering stamps due to the wide variety of specific needs, local codes, and climatic conditions. These details and specifications are easily obtained from your builder, contractors, and/or local engineers.

BEST PRICE GUARANTEE

Find the same house plan (modifications included!) and package for less on another site, show us the URL and we'll give you the difference plus an additional 10% back.

100% SATISFACTION GUARANTEE

We offer a one-time, 30-day exchange policy for unused, printed plan packages in the event you aren't satisfied with your first selection.

 
 

Plan 8785  Back to plan page

Loading...