Get discounts,
promos, see our
newest plans
and more!
+ 15% off any plan
See terms opt out anytime


No Thanks

Thanks for
signing up!


Use Code:

SIGNUP15

And save 15% off any plan!

Check your email for details.

CLOSE
Search Plans
Customer Reviews
     
15% off ALL House Plans Sitewide
15% off ALL House Plans Sitewide
15% off ALL House Plans Sitewide

Code: HONOR
Sale ends midnight 5/31/2026 PST

Sq Ft
2,005 FT²

Beds
3

Baths
2.5

Stories
3

Garage
2

Depth
39'

Width
29'
On Sale
$1,100.75
$1,295.00
© copyright by designer
 View All 4 Images | Photographs may reflect modified home
Sq Ft
2,005 FT²
Beds
3
Baths
2.5
Stories
3
Garage
2
Depth
39'
Width
29'
 
Click to Zoom In on Floor Plan
© copyright by designer
 
 

About This Plan

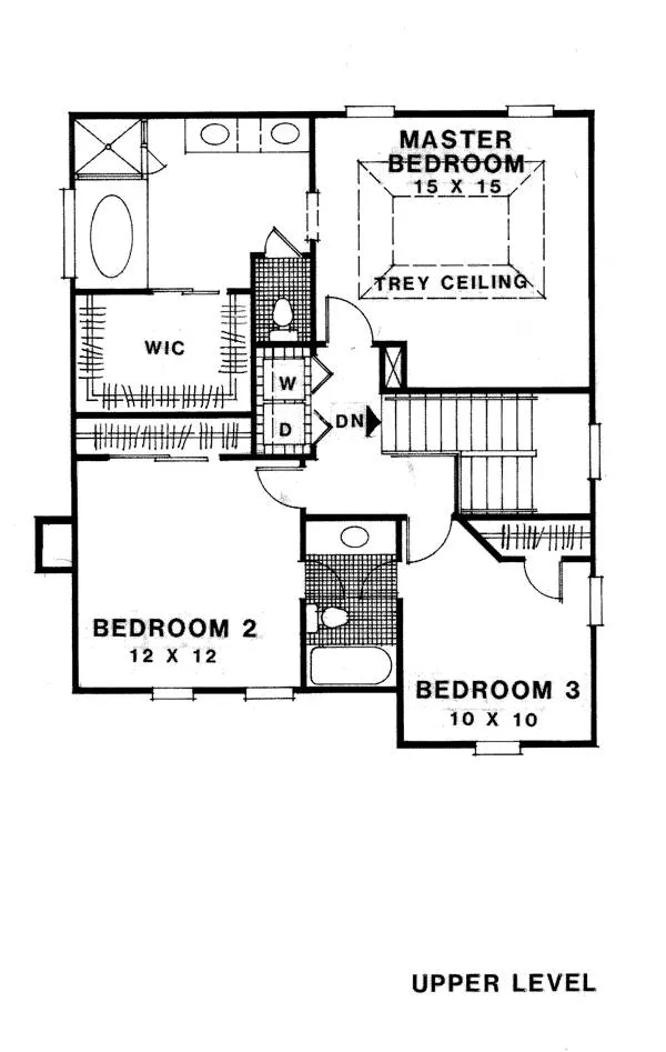
This 2,005 sq.ft. European traditional home features a drive-under two-car garage. The 8'x11' foyer has a coat closet and powder room. Measuring 18'x16', the living room features a fireplace and double French doors leading onto a balcony. The gourmet kitchen with center island has an 18'x8' breakfast room which leads onto the rear deck. Featured on the upper level is a 15'x15' master bedroom with trey ceiling. The master bathroom features separate tub and shower, and a large walk-in closet off of the dressing area. Bedrooms 2 and 3 share a private bath. The laundry is conveniently located on the upper level. 

See All Plan Options
 

FEATURES & DETAILS

Exterior features
No Porch
Foundation Options
Basement
Lot Options
Suited for narrow lot
Garage Location
Under
Garage Options
Attached
2,005 Ft
2
Total Heated
946 Ft
2
1st Floor
927 Ft
2
2nd Floor
132 Ft
2
Lower Floor
3
Bedrooms
2.5
Bathrooms
2
Garage
3
Stories
29' 0"
Width
39' 0"
Depth
42' 0"
Height
8' 0"
Main Floor Ceiling
8' 0"
Upper Floor Ceiling
2x4
Framing
Stick
Roof Framing
12/12
Primary Roof Pitch
Single
Dwelling Number

Unheated Living Space
Exterior Styles
 

Plan Package Options

 Select Plan Package
  Select Foundation Option
  Add-Ons (Optional)
INCLUDED WITH YOUR PURCHASE

Free Ground shipping in the U.S.

FREE

Home Building & Product Ideas Organizer

Sub Total
$0
Free Shipping
QUESTIONS OR NEED HELP ORDERING? LIVE CHAT OR CALL US AT 866-214-2242
Plan Packages

Each set of construction documents typically includes detailed, dimensioned floor plans, basic electric layouts, cross sections, roof details, cabinet layouts, and elevations, as well as general IRC specifications. Please refer to the ARCHITECT or DESIGNER’S PLAN DETAILS link above the floor plan on any plan page to determine the specific details for each plan. Our house plans contain virtually all of the information required to construct your home. The typical plan set does not include plumbing, HVAC drawings, or engineering stamps due to the wide variety of specific needs, local codes, and climatic conditions. These details and specifications are easily obtained from your builder, contractors, and/or local engineers.

BEST PRICE GUARANTEE

Find the same house plan (modifications included!) and package for less on another site, show us the URL and we'll give you the difference plus an additional 10% back.

100% SATISFACTION GUARANTEE

We offer a one-time, 30-day exchange policy for unused, printed plan packages in the event you aren't satisfied with your first selection.

 
 

Plan 7598  Back to plan page

Loading...