Get discounts,
promos, see our
newest plans
and more!
+ 15% off any plan
See terms opt out anytime


No Thanks

Thanks for
signing up!


Use Code:

SIGNUP15

And save 15% off any plan!

Check your email for details.

CLOSE
Search Plans
Customer Reviews
     
22% Off House Plans Sitewide Ends Friday

Code: SAVE22
Sale ends midnight 12/5/2025 PST

Sq Ft
2,661 FT²

Beds
4

Baths
3

Stories
1.5

Garage
2

Depth
75'

Width
68' 8"
From
$1,445.00
© copyright by architect
 View All 3 Images | Photographs may reflect modified home
Sq Ft
2,661 FT²
Beds
4
Baths
3
Stories
1.5
Garage
2
Depth
75'
Width
68' 8"
 
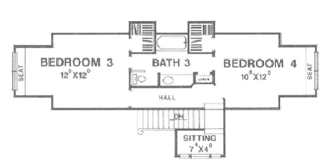
Click to Zoom In on Floor Plan
© copyright by architect
 
 

About This Plan

This country style home has a master suite and one other bedroom on the first floor level. Two additional bedrooms are located on the second floor. The country kitchen has a corner breakfast area. The master bedroom has direct access to the partially covered rear deck. The garage is side entry. 

See All Plan Options
 

FEATURES & DETAILS

Exterior features
Wraparound Porch
Foundation Options
Basement
Crawlspace
Slab
Garage Location
Rear
Garage Options
Attached
2,661 Ft
2
Total Heated
2,000 Ft
2
1st Floor
660 Ft
2
2nd Floor
2,000 Ft
2
Lower Floor
4
Bedrooms
3
Bathrooms
2
Garage
1.5
Stories
68' 8"
Width
75' 0"
Depth
24' 0"
Height
9' 0"
Main Floor Ceiling
9-11' 0"
Upper Floor Ceiling
2x4
Framing
Stick
Roof Framing
12/12
Primary Roof Pitch
5.5/12
Porch Roof Pitch
Single
Dwelling Number
None
Bonus Access

Unheated Living Space
544 Ft
2
Garage
 

Plan Package Options

 Select Plan Package
$1,445
PDF Single Build

Digital plans emailed to you in PDF format that allows for printing copies and sharing electronically with contractors, subs, decorators, and more. This package includes a license to build the home one time.

$1,445
$2,445
CAD + PDF Single Build
States N/A: TX,NM,LA,AR

CAD files are a complete set of construction drawings delivered electronically. They can be used for any type of modification—including major design changes and engineering—and include a release granting permission to modify the plan. Most CAD plan orders are emailed the same or next business day.
 
This package also comes with a PDF set of plans and a copyright release for making modifications and printing unlimited copies.
 
CAD files are provided in .dwg format. For details on the specific CAD program used, please refer to the PLAN DETAILS section located above the floor plan on each plan’s page.

$2,445
 Need To Reverse Plan? (Optional)
$300
Readable Reverse

Reverse house plans with readable text and dimensions 

$300
  Select Foundation Option
  Add-Ons (Optional)
INCLUDED WITH YOUR PURCHASE

Free Ground shipping in the Continental U.S.

FREE

Design consultation with the architect or designer to discuss your plan

Home Building & Product Ideas Organizer

Sub Total
$0
Free Shipping
IMPORTANT NOTE: Due to state regulations, the CAD version may not be sold to residents of AL, TN, TX, NM and LA. If residing in any of the aforementioned states, the PDF version does not come with a release to make plan modifications. Modifications can be provided by the original architect. Please contact us for more information.
QUESTIONS OR NEED HELP ORDERING? LIVE CHAT OR CALL US AT 866-214-2242
Plan Packages

Each set of construction documents includes detailed, dimensioned floor plans, basic electric layouts, cross sections, roof details, cabinet layouts and elevations, as well as general IRC specifications. They contain virtually all of the information required to construct your home. The typical plan set does not include any plumbing, HVAC drawings, or engineering stamps due to the wide variety of specific needs, local codes, and climatic conditions. These details and specifications are easily obtained from your builder, contractors, and/or local engineers.

BEST PRICE GUARANTEE

find the same house plan (modifications included!) and package for less on another site, show us the URL and we'll give you the difference plus an additional 5% back.

100% SATISFACTION GUARANTEE

We offer a one-time, 30-day exchange policy for unused, non-electronic plan packages in the event you aren't satisfied with your first selection.

 
 

Plan 2935  Back to plan page

Loading...