Get discounts,
promos, see our
newest plans
and more!
+ 15% off any plan
See terms opt out anytime


No Thanks

Thanks for
signing up!


Use Code:

SIGNUP15

And save 15% off any plan!

Check your email for details.

CLOSE
Search Plans
Customer Reviews
     
15% off ALL House Plans Sitewide
15% off ALL House Plans Sitewide
15% off ALL House Plans Sitewide

Code: SAVE15
Sale ends midnight 4/19/2026 PST

Sq Ft
840 FT²

Beds
1

Baths
1

Stories
1

Garage
0

Depth
31'

Width
33'
On Sale
$1,083.75
$1,275.00
© copyright by designer
 View All 3 Images | Photographs may reflect modified home
Sq Ft
840 FT²
Beds
1
Baths
1
Stories
1
Garage
0
Depth
31'
Width
33'
 
Click to Zoom In on Floor Plan
© copyright by designer
 
 

About This Plan

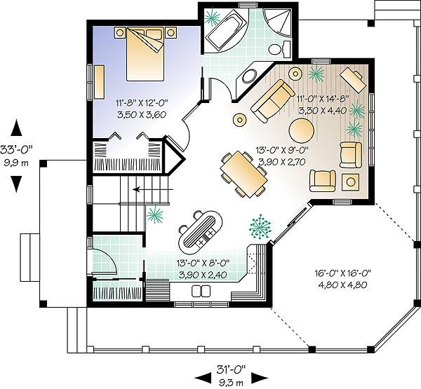
Chalet style house plan waterfront lot Designed at the turn of the millennium in answer to the requests for a full-featured getaway property, this four-season recreation style house includes many interesting elements inside and out. Lets examine it more closely! Outside on the main level, a gallery spread over two facades ties together the front and rear of the house, joined by a gazebo which would be ideal for enjoying meals with shelter from the elements. Also, an exit from the basement is located just below this gazebo allowing for a sheltered patio space at that level. Inside, we discover an open activities area, bathed in light and benefiting from a 9 foot ceiling throughout the entire main level. We appreciate a kitchen with central island and triple window at the sink, a dining room, and a living room with an angled layout for a dynamic and unique interior, a master bedroom with walk-in closet, discreet access to an adjoining bathroom with corner bath and corner shower, and double glass doors allowing a view on the panorama through the dining room. For further options of this basic plan, model 3930 proposes a design with finished basement and a slightly enlarged format. 

See All Plan Options
 

FEATURES & DETAILS

Kitchen features
Kitchen Island
Bedroom features
Primary Bdrm Main Floor
Separate Tub and Shower
Split Bedrooms
Walk-in Closet
Exterior features
Covered Front Porch
Covered Rear Porch
Deck
Front Porch
Wraparound Porch
Foundation Options
Walkout Basement
Lot Options
Suited for narrow lot
Suited for sloping lot
Suited for view lot
Additional features
Family Room
Foyer
Open Floor Plan
Storage Space
Garage Options
None
840 Ft
2
Total Heated
840 Ft
2
1st Floor
1
Bedrooms
1
Bathrooms
0
Garage
1
Stories
33' 0"
Width
31' 0"
Depth
29' 9"
Height
9' 0"
Main Floor Ceiling
2x6
Framing
Truss
Roof Framing
8/12
Primary Roof Pitch
12/12
Secondary Roof Pitch
8/12
Gable Roof Pitch
8/12
Porch Roof Pitch
Single
Dwelling Number
None
Bonus Access

Unheated Living Space
 

Plan Package Options

 Select Plan Package
 Need To Reverse Plan? (Optional)
  Select Foundation Option
  Add-Ons (Optional)
INCLUDED WITH YOUR PURCHASE

Free Ground shipping in the U.S.

FREE

Home Building & Product Ideas Organizer

Sub Total
$0
Free Shipping
Please allow 3-5 business days for delivery of this plan Please check our PDFs NOW collection for plans that can be downloaded and received immediately or live chat us to help you find a similar plan available now.
QUESTIONS OR NEED HELP ORDERING? LIVE CHAT OR CALL US AT 866-214-2242
Plan Packages

Each set of construction documents typically includes detailed, dimensioned floor plans, basic electric layouts, cross sections, roof details, cabinet layouts, and elevations, as well as general IRC specifications. Please refer to the ARCHITECT or DESIGNER’S PLAN DETAILS link above the floor plan on any plan page to determine the specific details for each plan. Our house plans contain virtually all of the information required to construct your home. The typical plan set does not include plumbing, HVAC drawings, or engineering stamps due to the wide variety of specific needs, local codes, and climatic conditions. These details and specifications are easily obtained from your builder, contractors, and/or local engineers.

BEST PRICE GUARANTEE

Find the same house plan (modifications included!) and package for less on another site, show us the URL and we'll give you the difference plus an additional 10% back.

100% SATISFACTION GUARANTEE

We offer a one-time, 30-day exchange policy for unused, printed plan packages in the event you aren't satisfied with your first selection.

 
 

Plan 1199  Back to plan page

Loading...