Get discounts,
promos, see our
newest plans
and more!
+ 15% off any plan
See terms opt out anytime


No Thanks

Thanks for
signing up!


Use Code:

SIGNUP15

And save 15% off any plan!

Check your email for details.

CLOSE
Search Plans
     
15% Off House Plans Sitewide Ends Sunday
15% Off House Plans Sitewide Ends Sunday
15% Off House Plans Sitewide Ends Sunday

Code: SAVE15
Sale ends midnight 11/16/2025 PST

Sq Ft
1,679 FT²

Beds
3

Baths
2

Stories
1

Garage
2

Depth
63'

Width
49'
On Sale
$723.35
$851.00
© copyright by designer
 View All 2 Images | Photographs may reflect modified home
Sq Ft
1,679 FT²
Beds
3
Baths
2
Stories
1
Garage
2
Depth
63'
Width
49'
 
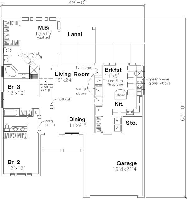
Click to Zoom In on Floor Plan
© copyright by designer
 
 

About This Plan

Thoughtful planning has packed this compact home with luxurious details. A stucco exterior, impressive arched windows and a neat tiled roof give the home plenty of curb appeal. The center of the plan houses a spacious living and dining room with built-in see through fireplace, a TV niche and columns with openings above. The sleeping wing incorporates three bedrooms and two full baths, including a vaulted master suite with walk-in closet, angled private bath and sliders to a covered rear lanai. 

See All Plan Options
 

FEATURES & DETAILS

Exterior features
Front Porch
Foundation Options
Slab
Lot Options
Suited for narrow lot
Garage Location
Front
Garage Options
Attached
Front-entry
1,679 Ft
2
Total Heated
3
Bedrooms
2
Bathrooms
2
Garage
1
Stories
49' 0"
Width
63' 0"
Depth
18' 0"
Height
8" Block
Framing
Truss
Roof Framing
Single
Dwelling Number
None
Bonus Access

Unheated Living Space
468 Ft
2
Garage
 

Plan Package Options

 Select Plan Package
Sale: $462
PDF Bid Set
$544

PDFs NOW!™

Home plans stamped "NOT FOR CONSTRUCTION" for cost estimating and bidding purposes only; a minimum 5 set plan package must be purchased within 90 days for a license to build plan set; a credit will be applied towards your house plan upgrade

Sale: $462
Sale: $723
PDF Single Build
$851

PDFs NOW!™

Digital plans emailed to you in PDF format that allows for printing copies and sharing electronically with contractors, subs, decorators, and more. This package includes a license to build the home one time.

Sale: $723
  Select Foundation Option
  Add-Ons (Optional)
INCLUDED WITH YOUR PURCHASE

Free Ground shipping in the Continental U.S.

FREE

Design consultation with the architect or designer to discuss your plan

Home Building & Product Ideas Organizer

Sub Total
$0
Free Shipping
QUESTIONS OR NEED HELP ORDERING? LIVE CHAT OR CALL US AT 866-214-2242
Plan Packages

Each set of construction documents includes detailed, dimensioned floor plans, basic electric layouts, cross sections, roof details, cabinet layouts and elevations, as well as general IRC specifications. They contain virtually all of the information required to construct your home. The typical plan set does not include any plumbing, HVAC drawings, or engineering stamps due to the wide variety of specific needs, local codes, and climatic conditions. These details and specifications are easily obtained from your builder, contractors, and/or local engineers.

BEST PRICE GUARANTEE

find the same house plan (modifications included!) and package for less on another site, show us the URL and we'll give you the difference plus an additional 5% back.

100% SATISFACTION GUARANTEE

We offer a one-time, 30-day exchange policy for unused, non-electronic plan packages in the event you aren't satisfied with your first selection.

 
 

Plan 1317  Back to plan page

Loading...