Get discounts,
promos, see our
newest plans
and more!
+ 15% off any plan
See terms opt out anytime


No Thanks

Thanks for
signing up!


Use Code:

SIGNUP15

And save 15% off any plan!

Check your email for details.

CLOSE
Search Plans
     

The Lake Travis View Two Story Modern Style House, Plan 9984

 
 

Sq Ft
2,611 FT²

Beds
3

Baths
3.5

Stories
2

Garage
2

Depth
74' 6"

Width
73'
From
$1,445.00
© copyright by architect
 View All 10 Images | Photographs may reflect modified home
Sq Ft
2,611 FT²
Beds
3
Baths
3.5
Stories
2
Garage
2
Depth
74' 6"
Width
73'
 
Click to Zoom In on Floor Plan
© copyright by architect
 
 

About This Plan

If you’re a younger couple or a single adult looking for an impressive upscale unique Modern home without an overabundance of square footage, this two story 2,611 heated square feet stunner might have your name written all over it.

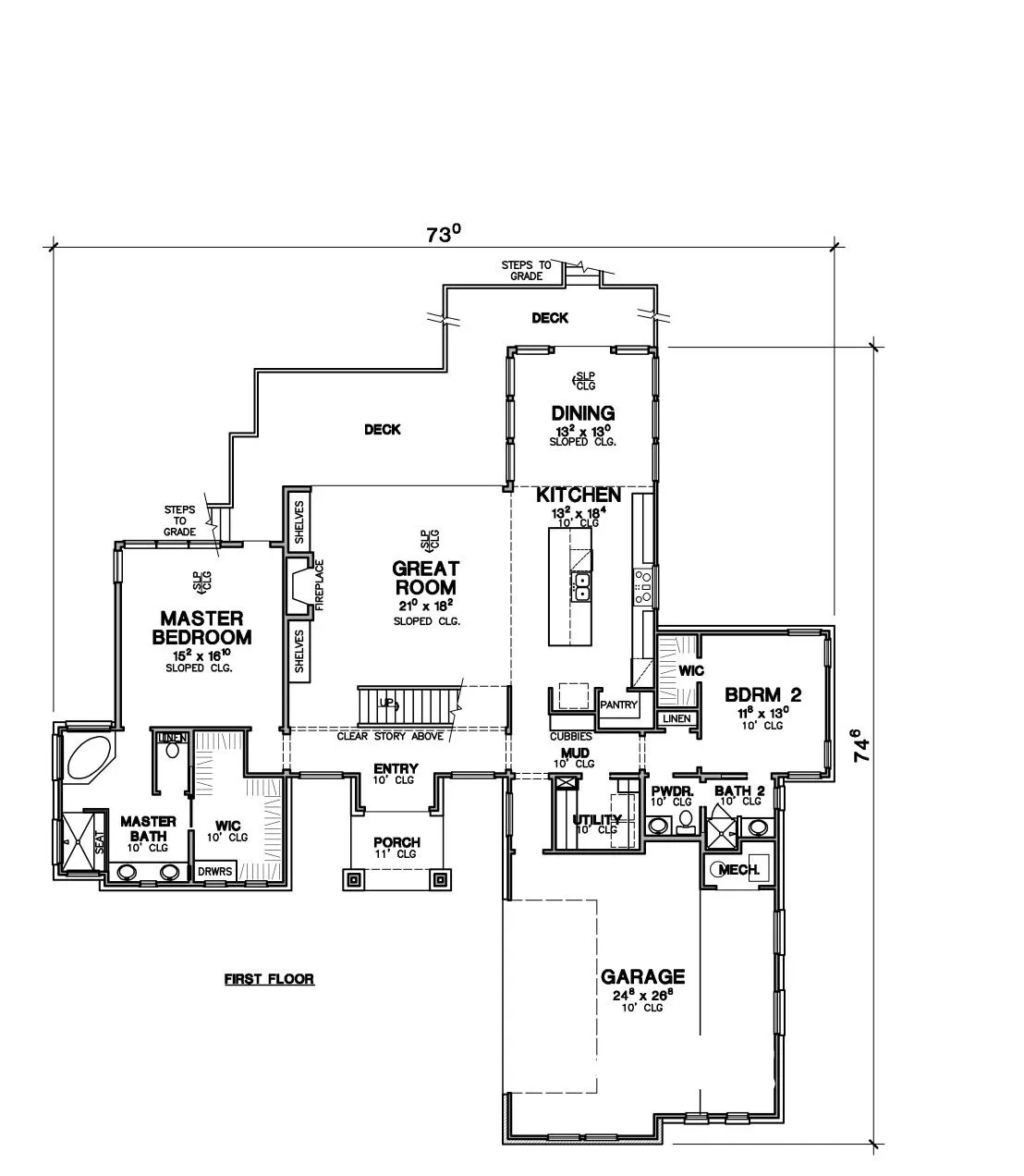
From the impressive roof lines that overhangs and covers all of the exciting outdoor spaces to the small private secondary bedroom on the main level for guests or out of town family visitors, everyone you host might not ever want to leave.

The 2 car courtyard garage, provides immediate entrance into the “hub” of the home making it easy to unload groceries and keep things organized in the mudroom, laundry room and a quick bathroom break when needed. The guest suite has plenty of privacy with its own small shower bathroom.

The great room area is an open concept “L’ shape with the fireplace anchoring its space with flanked built-ins. The room is bathed in natural light by the sliding glass doors that connect to the incredible outdoor living spaces.  The cook of the home will appreciate the efficient triangle kitchen, the large eat-at island and the offset casual dining area buttressed by windows, windows, and more windows.

The master of the home will find plenty of relaxation in its ensuite bedroom off the left of the home. The bathroom has a bathtub as well as a shower and a huge walk-in closet with built-ins. There’s also access to the back outdoor patio areas.

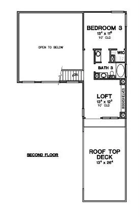
Up the stairs is the last of the 3 bedrooms and baths with an adjacent loft living space. The second level will be where everyone will want to go in order to finally see the “talked about” cherry on the top of this resort like home: the covered rooftop deck. 

See All Plan Options
 

FEATURES & DETAILS

Kitchen features
Kitchen Island
L-Shaped
Pantry
Bedroom features
Double Vanity Sink
His and Hers Primary Closets
Primary Bdrm Main Floor
Separate Tub and Shower
Walk-in Closet
Exterior features
Covered Front Porch
Covered Rear Porch
Deck
Outdoor Living Space
Lot Options
Suited for corner lot
Suited for view lot
Additional features
Dining Room
Family Room
Fireplace
Great Room
Laundry 1st Fl
Library/Media Rm
Loft / Balcony
Mud Room
Open Floor Plan
Vaulted Great Room/Living
Garage Location
Front
Garage Options
Attached
Front-entry
Side-entry
2,611 Ft
2
Total Heated
2,130 Ft
2
1st Floor
481 Ft
2
2nd Floor
3
Bedrooms
3.5
Bathrooms
2
Garage
2
Stories
73' 0"
Width
74' 6"
Depth
28' 2"
Height
10' 0"
Main Floor Ceiling
10' 0"
Upper Floor Ceiling
10' 0"
Primary Ceiling
2x4
Framing
Stick
Roof Framing
3:12
Primary Roof Pitch
3:12
Secondary Roof Pitch
Single
Dwelling Number

Unheated Living Space
689 Ft
2
Garage
63 Ft
2
Porch
374 Ft
2
Deck
 

Plan Package Options

 Select Plan Package
$1,445
PDF Single Build

Digital plans emailed to you in PDF format that allows for printing copies and sharing electronically with contractors, subs, decorators, and more. This package includes a license to build the home one time.

$1,445
$2,445
CAD + PDF Single Build
States N/A: TX,NM,LA,AR

CAD files are a complete set of construction drawings delivered electronically. They can be used for any type of modification—including major design changes and engineering—and include a release granting permission to modify the plan. Most CAD plan orders are emailed the same or next business day.
 
This package also comes with a PDF set of plans and a copyright release for making modifications and printing unlimited copies.
 
CAD files are provided in .dwg format. For details on the specific CAD program used, please refer to the PLAN DETAILS section located above the floor plan on each plan’s page.

$2,445
 Need To Reverse Plan? (Optional)
$300
Readable Reverse

Reverse house plans with readable text and dimensions 

$300
  Select Foundation Option
  Add-Ons (Optional)
INCLUDED WITH YOUR PURCHASE

Free Ground shipping in the Continental U.S.

FREE

Design consultation with the architect or designer to discuss your plan

Home Building & Product Ideas Organizer

Sub Total
$0
Free Shipping
IMPORTANT NOTE: Due to state regulations, the CAD version may not be sold to residents of AL, TN, TX, NM and LA. If residing in any of the aforementioned states, the PDF version does not come with a release to make plan modifications. Modifications can be provided by the original architect. Please contact us for more information.
QUESTIONS OR NEED HELP ORDERING? LIVE CHAT OR CALL US AT 866-214-2242
Plan Packages

Each set of construction documents includes detailed, dimensioned floor plans, basic electric layouts, cross sections, roof details, cabinet layouts and elevations, as well as general IRC specifications. They contain virtually all of the information required to construct your home. The typical plan set does not include any plumbing, HVAC drawings, or engineering stamps due to the wide variety of specific needs, local codes, and climatic conditions. These details and specifications are easily obtained from your builder, contractors, and/or local engineers.

BEST PRICE GUARANTEE

find the same house plan (modifications included!) and package for less on another site, show us the URL and we'll give you the difference plus an additional 5% back.

100% SATISFACTION GUARANTEE

We offer a one-time, 30-day exchange policy for unused, non-electronic plan packages in the event you aren't satisfied with your first selection.

 
 

Plan 9984  Back to plan page

Loading...