Get discounts,
promos, see our
newest plans
and more!
+ 15% off any plan
See terms opt out anytime


No Thanks

Thanks for
signing up!


Use Code:

SIGNUP15

And save 15% off any plan!

Check your email for details.

CLOSE
Search Plans
Customer Reviews
     
America’s Top Home Plans
Trusted House Plans From America's Leading Architects & Designers

Sq Ft
1,606 FT²

Beds
2

Baths
2

Stories
1

Garage
2

Depth
57' 4"

Width
45' 4"
From
$851.00
© copyright by designer
 View All 2 Images | Photographs may reflect modified home
Sq Ft
1,606 FT²
Beds
2
Baths
2
Stories
1
Garage
2
Depth
57' 4"
Width
45' 4"
 
Click to Zoom In on Floor Plan
© copyright by designer
 
 

About This Plan

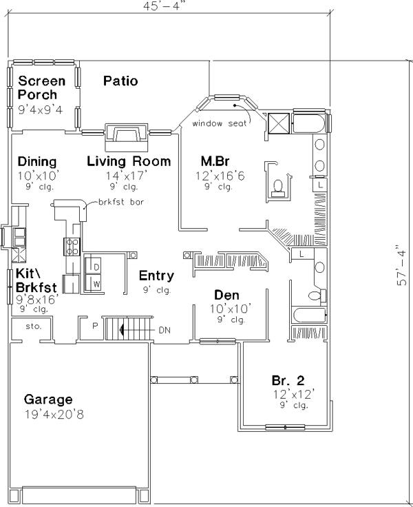
The covered front entry is big enough for a couple to sit on and enjoy summer evenings. Inside, the entry is decorated by classic columns leading the eye into the living room, where a fireplace flanked by windows is highlighted. The adjoining formal dining room leads to a screened porch beyond. The galley kitchen opens to the living room for shared time, and boasts a sunny breakfast eating area and handy access to the garage, walk-in pantry and laundry room. The double-door den can serve as a guest bedroom on special occasions when the family returns. The master retreat offers a walk-through closet, private bath with separate tub and shower as well as a bay windowed sitting area and private access to the rear patio. 

See All Plan Options
 

FEATURES & DETAILS

Exterior features
Front Porch
Lot Options
Suited for narrow lot
Garage Location
Front
Garage Options
Attached
Front-entry
1,606 Ft
2
Total Heated
1,606 Ft
2
1st Floor
2
Bedrooms
2
Bathrooms
2
Garage
1
Stories
45' 4"
Width
57' 4"
Depth
26' 0"
Height
9' 0"
Main Floor Ceiling
8" Block
Framing
Single
Dwelling Number

Unheated Living Space
400 Ft
2
Garage
17 Ft
2
Storage
87 Ft
2
Porch
 

Plan Package Options

 Select Plan Package
  Select Foundation Option
  Add-Ons (Optional)
INCLUDED WITH YOUR PURCHASE

Free Ground shipping in the U.S.

FREE

Home Building & Product Ideas Organizer

Sub Total
$0
Free Shipping
QUESTIONS OR NEED HELP ORDERING? LIVE CHAT OR CALL US AT 866-214-2242
Plan Packages

Each set of construction documents typically includes detailed, dimensioned floor plans, basic electric layouts, cross sections, roof details, cabinet layouts, and elevations, as well as general IRC specifications. Please refer to the ARCHITECT or DESIGNER’S PLAN DETAILS link above the floor plan on any plan page to determine the specific details for each plan. Our house plans contain virtually all of the information required to construct your home. The typical plan set does not include plumbing, HVAC drawings, or engineering stamps due to the wide variety of specific needs, local codes, and climatic conditions. These details and specifications are easily obtained from your builder, contractors, and/or local engineers.

BEST PRICE GUARANTEE

Find the same house plan (modifications included!) and package for less on another site, show us the URL and we'll give you the difference plus an additional 10% back.

100% SATISFACTION GUARANTEE

We offer a one-time, 30-day exchange policy for unused, printed plan packages in the event you aren't satisfied with your first selection.

 
 

Plan 6543  Back to plan page

Loading...