Get discounts,
promos, see our
newest plans
and more!
+ 15% off any plan
See terms opt out anytime


No Thanks

Thanks for
signing up!


Use Code:

SIGNUP15

And save 15% off any plan!

Check your email for details.

CLOSE
Search Plans
     
20% Off House Plans Sitewide Ends Tuesday
20% Off House Plans Sitewide Ends Tuesday
20% Off House Plans Sitewide Ends Tuesday

Code: VET20
Sale ends midnight 11/11/2025 PST

Sq Ft
2,200 FT²

Beds
3

Baths
2.5

Stories
1

Garage
2

Depth
65'

Width
70' 6"
On Sale
$1,120.00
$1,400.00
© copyright by designer
 View All 3 Images | Photographs may reflect modified home
Sq Ft
2,200 FT²
Beds
3
Baths
2.5
Stories
1
Garage
2
Depth
65'
Width
70' 6"
 
Click to Zoom In on Floor Plan
© copyright by designer
 
 

About This Plan

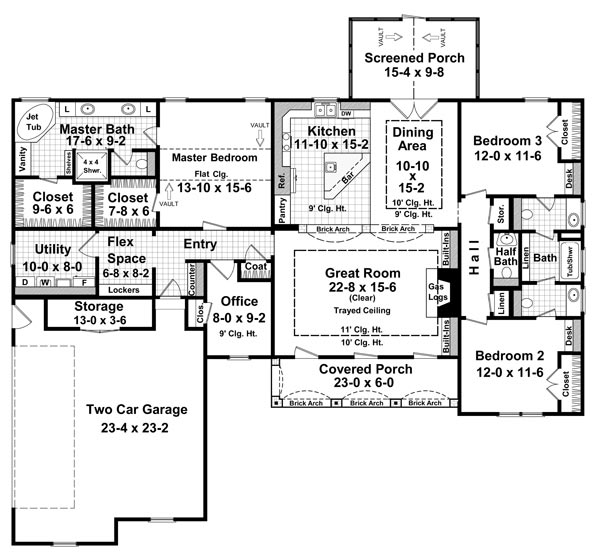
Attractive European country home designed for your families needs. The oversized great room with raised ceilings and built in cabinets is just right for entertaining. Brick arches frame the spacious kitchen and dining. The kitchen, dining, and great room are arranged with an informal, open feel in mind. There is a large island with vegetable sink in the kitchen. The dining room has a raised ceiling with a great view. Bedrooms 2 and 3 each have a computer desk and private access to a shared bath. The office is conviently located near the master bedroom and could serve as a guest bedroom or nursery. The flex space could be a hobby center, second office, laundry center or additional storage. The master bedroom has a vaulted ceiling along with his and her walk in closets and dual lavatories There is also an additional vanity for her. The garage is sized to accomodate two full size vehicles. The vaulted screen porch is designed to allow a breeze to blow through with no obstructions on either side. Careful attention to detail make this the right home for your family. 

See All Plan Options
 

FEATURES & DETAILS

Kitchen features
Country Kitchen
Kitchen Island
Peninsula / Eating Bar
Bedroom features
Double Vanity Sink
His and Hers Primary Closets
Primary Bdrm Main Floor
Nursery Room
Separate Tub and Shower
Split Bedrooms
Walk-in Closet
Exterior features
Covered Front Porch
Front Porch
Rear Porch
Foundation Options
Crawlspace
Slab
Lot Options
Suited for corner lot
Suited for sloping lot
Suited for view lot
Additional features
Dining Room
Exercise Room
Fireplace
Great Room
Home Office
Laundry 1st Fl
Open Floor Plan
Storage Space
Workshop
Garage Location
Side
Garage Options
Attached
Oversized
2,200 Ft
2
Total Heated
3
Bedrooms
2.5
Bathrooms
2
Garage
1
Stories
70' 6"
Width
65' 0"
Depth
26' 4"
Height
9' 0"
Main Floor Ceiling
2x4
Framing
Stick
Roof Framing
10/12
Primary Roof Pitch
12/12
Secondary Roof Pitch
Single
Dwelling Number
None
Bonus Access

Unheated Living Space
684 Ft
2
Garage
298 Ft
2
Porch
 

Plan Package Options

 Select Plan Package
Sale: $1,000
Study Set - Printed
$1,250
One printed set of house plans stamped NOT FOR CONSTRUCTION". This set is intended for review purposes and are mailed to you. To build from the plans, you need to upgrade to a licensed set.
Sale: $1,000
Sale: $1,120
PDF Single Build
$1,400

Digital plans emailed to you in PDF format that allows for printing copies and sharing electronically with contractors, subs, decorators, and more. This package includes a license to build the home one time.

Sale: $1,120
Sale: $1,200
5 Printed Sets
$1,500

Five Printed Sets of Residential Construction Drawings are typically 24” x 36” documents and come with a license to construct a single residence shipped to a physical address. Keep in mind PDF Plan Packages are our most popular choice which allows you to print as many copies as you need and to electronically send files to your builder, subcontractors, etc.

Sale: $1,200
Sale: $1,360
5 Printed Sets + PDF
$1,700

Digital plan emailed to you in PDF format that allows for printing copies on a home printer or local print shop and sharing with contractors, subs, decorators, and more. PLUS five printed sets shipped and delivered 3-5 business days.

Sale: $1,360
Sale: $1,680
CAD + PDF Single Build
$2,100

CAD files are a complete set of construction drawings delivered electronically. They can be used for any type of modification—including major design changes and engineering—and include a release granting permission to modify the plan. Most CAD plan orders are emailed the same or next business day.
 
This package also comes with a PDF set of plans and a copyright release for making modifications and printing unlimited copies.
 
CAD files are provided in .dwg format. For details on the specific CAD program used, please refer to the PLAN DETAILS section located above the floor plan on each plan’s page.

Sale: $1,680
 Need To Reverse Plan? (Optional)
$150
Readable Reverse

Reverse house plans with readable text and dimensions 

$150
  Select Foundation Option
  Add-Ons (Optional)
INCLUDED WITH YOUR PURCHASE

Free Ground shipping in the Continental U.S.

FREE

Design consultation with the architect or designer to discuss your plan

Home Building & Product Ideas Organizer

Sub Total
$0
Free Shipping
QUESTIONS OR NEED HELP ORDERING? LIVE CHAT OR CALL US AT 866-214-2242
Plan Packages

Each set of construction documents includes detailed, dimensioned floor plans, basic electric layouts, cross sections, roof details, cabinet layouts and elevations, as well as general IRC specifications. They contain virtually all of the information required to construct your home. The typical plan set does not include any plumbing, HVAC drawings, or engineering stamps due to the wide variety of specific needs, local codes, and climatic conditions. These details and specifications are easily obtained from your builder, contractors, and/or local engineers.

BEST PRICE GUARANTEE

find the same house plan (modifications included!) and package for less on another site, show us the URL and we'll give you the difference plus an additional 5% back.

100% SATISFACTION GUARANTEE

We offer a one-time, 30-day exchange policy for unused, non-electronic plan packages in the event you aren't satisfied with your first selection.

 
 

Plan 6260  Back to plan page

Loading...