Get discounts,
promos, see our
newest plans
and more!
+ 15% off any plan
See terms opt out anytime


No Thanks

Thanks for
signing up!


Use Code:

SIGNUP15

And save 15% off any plan!

Check your email for details.

CLOSE
Search Plans
Customer Reviews
     
America’s Top Home Plans
Trusted House Plans From America's Leading Architects & Designers

Sq Ft
1,955 FT²

Beds
3

Baths
2.5

Stories
1

Garage
2

Depth
48'

Width
72'
From
$1,300.00
© copyright by designer
 View All 11 Images | Photographs may reflect modified home
Sq Ft
1,955 FT²
Beds
3
Baths
2.5
Stories
1
Garage
2
Depth
48'
Width
72'
 
Click to Zoom In on Floor Plan
© copyright by designer
 
 

About This Plan

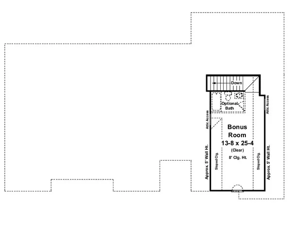
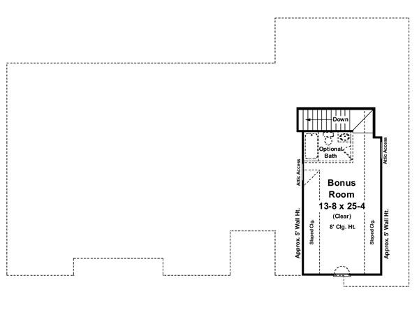
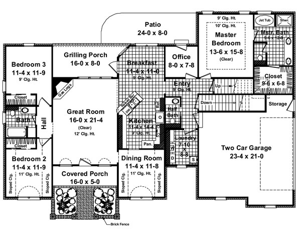
This home offers a very functional split floor plan layout. The great room features 12-foot ceilings, cozy fireplace with gas logs, and welcoming transoms above the windows. Excellent views of the great room and back yard from kitchen. The expansive and well-appointed master suite includes a large walk-in closet, an oversized jet tub, separate shower, compartmentalized toilet and dual vanities. Other key features of the home include a home office, large utility room, and a large 2 car garage. The optional bonus room provides an excellent space for a playroom and even has room for an extra bath. This home truly has the flexibility and features that your family wants! 

See All Plan Options
 

FEATURES & DETAILS

Kitchen features
Country Kitchen
Nook / Breakfast Area
Peninsula / Eating Bar
Bedroom features
Double Vanity Sink
Primary Bdrm Main Floor
Separate Tub and Shower
Split Bedrooms
Walk-in Closet
Exterior features
Covered Front Porch
Front Porch
Foundation Options
Basement
Crawlspace
Slab
Lot Options
Suited for corner lot
Suited for sloping lot
Suited for view lot
Additional features
Bonus Room
Dining Room
Exercise Room
Fireplace
Great Room
Home Office
Laundry 1st Fl
Open Floor Plan
Storage Space
Unfinished Space
Workshop
Garage Location
Side
Garage Options
Attached
Oversized
1,955 Ft
2
Total Heated
1,955 Ft
2
1st Floor
3
Bedrooms
2.5
Bathrooms
2
Garage
1
Stories
72' 0"
Width
48' 0"
Depth
21' 3"
Height
9' 0"
Main Floor Ceiling
8' 0"
Upper Floor Ceiling
2x4
Framing
Stick
Roof Framing
10/12
Primary Roof Pitch
12:12
Secondary Roof Pitch
Single
Dwelling Number
2nd Floor
Bonus Access

Unheated Living Space
672 Ft
2
Garage
213 Ft
2
Porch
385 Ft
2
Bonus Room
 

Plan Package Options

 Select Plan Package
 Need To Reverse Plan? (Optional)
  Select Foundation Option
  Add-Ons (Optional)
INCLUDED WITH YOUR PURCHASE

Free Ground shipping in the U.S.

FREE

Home Building & Product Ideas Organizer

Sub Total
$0
Free Shipping
QUESTIONS OR NEED HELP ORDERING? LIVE CHAT OR CALL US AT 866-214-2242
Plan Packages

Each set of construction documents typically includes detailed, dimensioned floor plans, basic electric layouts, cross sections, roof details, cabinet layouts, and elevations, as well as general IRC specifications. Please refer to the ARCHITECT or DESIGNER’S PLAN DETAILS link above the floor plan on any plan page to determine the specific details for each plan. Our house plans contain virtually all of the information required to construct your home. The typical plan set does not include plumbing, HVAC drawings, or engineering stamps due to the wide variety of specific needs, local codes, and climatic conditions. These details and specifications are easily obtained from your builder, contractors, and/or local engineers.

BEST PRICE GUARANTEE

Find the same house plan (modifications included!) and package for less on another site, show us the URL and we'll give you the difference plus an additional 10% back.

100% SATISFACTION GUARANTEE

We offer a one-time, 30-day exchange policy for unused, printed plan packages in the event you aren't satisfied with your first selection.

 
 

Plan 7390  Back to plan page

Loading...