Get discounts,
promos, see our
newest plans
and more!
+ 15% off any plan
See terms opt out anytime


No Thanks

Thanks for
signing up!


Use Code:

SIGNUP15

And save 15% off any plan!

Check your email for details.

CLOSE
Search Plans
Customer Reviews
     
20% off ALL House Plans Sitewide
20% off ALL House Plans Sitewide
20% off ALL House Plans Sitewide

Code: SAVE20
Sale ends midnight 5/13/2026 PST

The Forrest Oak 3 Bedroom Farm House Style House, Plan 5094

 
 

Sq Ft
1,832 FT²

Beds
3

Baths
2

Stories
1

Garage
2

Depth
64'

Width
58'
On Sale
$1,040.00
$1,300.00
© copyright by designer
 View All 3 Images | Photographs may reflect modified home
Sq Ft
1,832 FT²
Beds
3
Baths
2
Stories
1
Garage
2
Depth
64'
Width
58'
 
Click to Zoom In on Floor Plan
© copyright by designer
 
 

About This Plan

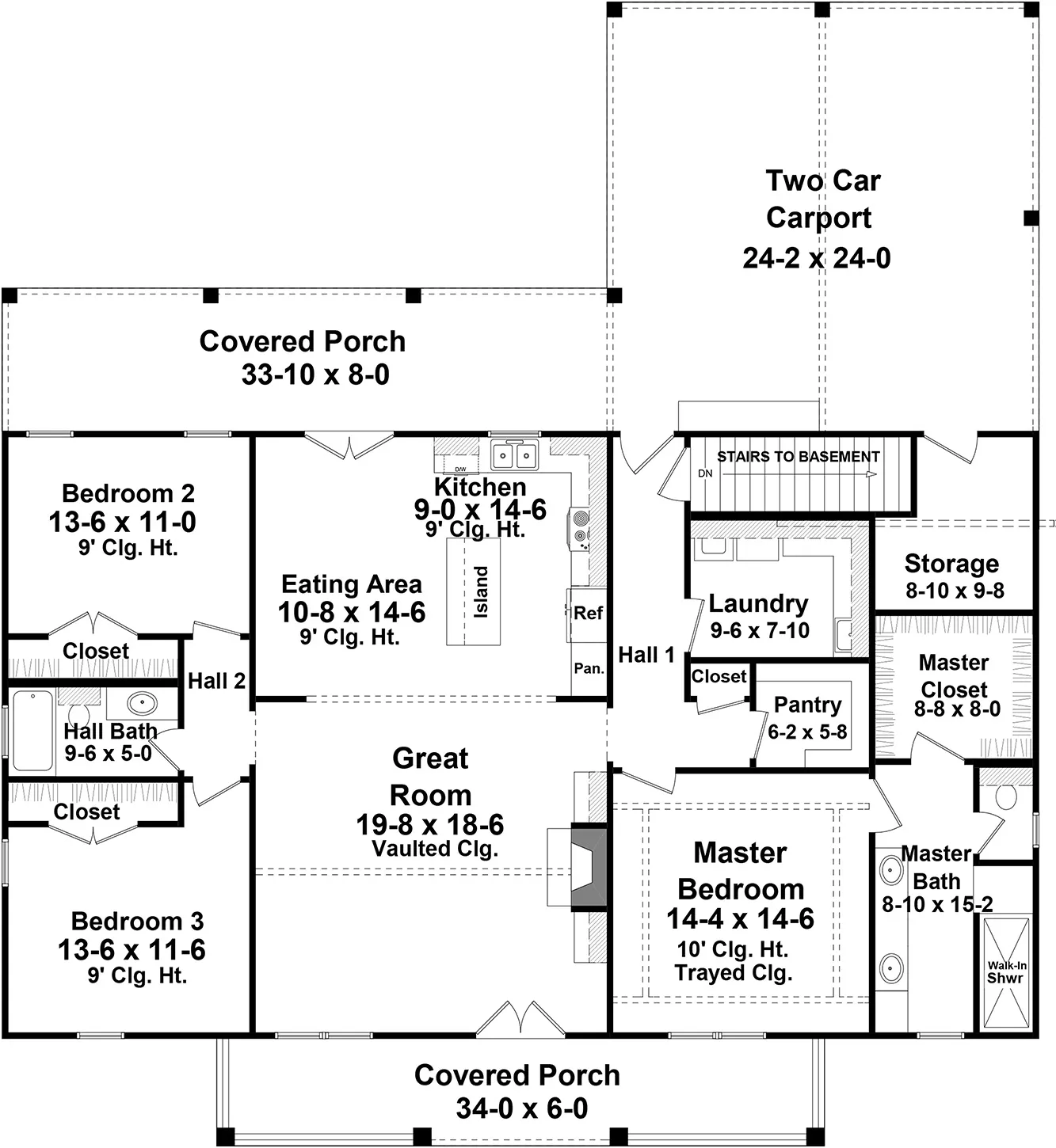
The lovely, timeless look and feel of this traditional farmhouse plan ensures that it won't go out of style any time soon. And with the 1,832 square foot layout that this home has to offer, it's perfectly suited for a new or growing family who wants a build that will last them for many years to come. Beyond the exceedingly beautiful curb appeal waits a single story floor plan that is both accessible and inviting. The grand family room joins seamlessly with the island kitchen and covered back deck, creating the ultimate space for hosting gatherings and entertaining crowds big and small. The 3 bedrooms are all sectioned off to offer their own privacy. The 2 auxiliary bedrooms sit to the left of the plan, with a shared bath joining them in the middle. Meanwhile, the master suite has its own end of the home, complete with a large walk-in closet and a comfortable spa bath. Finally, you'll want to check out some of the other areas and features such as the car port with all its storage space, and the nearby mudroom and laundry to help keep the home clean and make chores a breeze.  

See All Plan Options
 

FEATURES & DETAILS

Kitchen features
Country Kitchen
Kitchen Island
L-Shaped
Pantry
Peninsula / Eating Bar
Walk-in Pantry
Bedroom features
Double Vanity Sink
Primary Bdrm Main Floor
Split Bedrooms
Walk-in Closet
Exterior features
Covered Front Porch
Covered Rear Porch
Additional features
Exercise Room
Fireplace
Great Room
Home Office
Laundry 1st Fl
Library/Media Rm
Storage Space
Unfinished Space
Vaulted Great Room/Living
Garage Location
Rear
Garage Options
Attached
Carport
Rear-entry
3,026 Ft
2
Total Structure
1,832 Ft
2
Total Heated
1,832 Ft
2
1st Floor
3
Bedrooms
2
Bathrooms
2
Garage
1
Stories
58' 0"
Width
64' 0"
Depth
23' 9"
Height
9' 0"
Main Floor Ceiling
2x4
Framing
Stick
Roof Framing
8 in 12
Primary Roof Pitch
10 in 12
Secondary Roof Pitch
Single
Dwelling Number

Unheated Living Space
616 Ft
2
Garage
477 Ft
2
Porch
 

Plan Package Options

 Select Plan Package
 Need To Reverse Plan? (Optional)
  Select Foundation Option
  Add-Ons (Optional)
INCLUDED WITH YOUR PURCHASE

Free Ground shipping in the U.S.

FREE

Home Building & Product Ideas Organizer

Sub Total
$0
Free Shipping
QUESTIONS OR NEED HELP ORDERING? LIVE CHAT OR CALL US AT 866-214-2242
Plan Packages

Each set of construction documents typically includes detailed, dimensioned floor plans, basic electric layouts, cross sections, roof details, cabinet layouts, and elevations, as well as general IRC specifications. Please refer to the ARCHITECT or DESIGNER’S PLAN DETAILS link above the floor plan on any plan page to determine the specific details for each plan. Our house plans contain virtually all of the information required to construct your home. The typical plan set does not include plumbing, HVAC drawings, or engineering stamps due to the wide variety of specific needs, local codes, and climatic conditions. These details and specifications are easily obtained from your builder, contractors, and/or local engineers.

BEST PRICE GUARANTEE

Find the same house plan (modifications included!) and package for less on another site, show us the URL and we'll give you the difference plus an additional 10% back.

100% SATISFACTION GUARANTEE

We offer a one-time, 30-day exchange policy for unused, printed plan packages in the event you aren't satisfied with your first selection.

 
 

Plan 5094  Back to plan page

Loading...