Get discounts,
promos, see our
newest plans
and more!
+ 15% off any plan
See terms opt out anytime


No Thanks

Thanks for
signing up!


Use Code:

SIGNUP15

And save 15% off any plan!

Check your email for details.

CLOSE
Search Plans
Customer Reviews
     

Sq Ft
1,800 FT²

Beds
4

Baths
3

Stories
1

Garage
2

Depth
86' 4"

Width
50'
From
$1,295.00
© copyright by designer
 View All 4 Images | Photographs may reflect modified home
Sq Ft
1,800 FT²
Beds
4
Baths
3
Stories
1
Garage
2
Depth
86' 4"
Width
50'
 
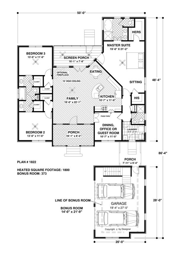
Click to Zoom In on Floor Plan
© copyright by designer
 
 

About This Plan

Welcome home to this delightful 1,800 sq. ft. plan featuring a detached 2-car garage with a 373 sq. ft. bonus room. A covered front porch is just right for a rocking chair or two! Entertaining is a snap in the roomy kitchen with a dining nook and a serving bar open to the 16x221 family room. There is an optional corner fireplace for this room. Just around the corner, youll find a flexible room which could be a home office, dining room or guest room depending upon your needs. It has a convenient pass-thru to the kitchen. Easily accessible from this area is a pantry as well as a full bath and laundry room which opens onto a porch connecting the home to the garage. Tucked away quietly in a corner of this home is a spacious master suite with a sitting area. Storage abounds in his-and-hers closets, while a master bath with garden tub, shower and double sink creates the feeling of a private spa. The master suite has a door leading to a screen porch which can also be entered from the family room. This is an ideal spot to relax with a cool drink and no bugs!
Unusual, yet efficient design frees space for two over-sized storage closets while providing direct access from the family room for the two secondary bedroom suites. Each suite features a walk-in closet and shares a Jack-and-Jill bath.
 

See All Plan Options
 

FEATURES & DETAILS

Kitchen features
Peninsula / Eating Bar
Walk-in Pantry
Bedroom features
Primary Bdrm Main Floor
Sitting Area
Exterior features
Covered Front Porch
Front Porch
Screened Porch/Sunroom
Foundation Options
Basement
Crawlspace
Slab
Additional features
Family Room
Home Office
Laundry 1st Fl
Garage Location
Side
Garage Options
Attached
1,800 Ft
2
Total Heated
4
Bedrooms
3
Bathrooms
2
Garage
1
Stories
50' 0"
Width
86' 4"
Depth
9' 0"
Main Floor Ceiling
8' 0"
Upper Floor Ceiling
2x4
Framing
Stick
Roof Framing
Single
Dwelling Number

Unheated Living Space
373 Ft
2
Bonus Room
 

Plan Package Options

 Select Plan Package
$1,345
5 Printed Sets

Five Printed Sets of Residential Construction Drawings are typically 24” x 36” documents and come with a license to construct a single residence shipped to a physical address. Keep in mind PDF Plan Packages are our most popular choice which allows you to print as many copies as you need and to electronically send files to your builder, subcontractors, etc.

$1,345
$1,395
8 Printed Sets

Eight Printed Sets of Construction Drawings, typically 24” x 36” documents, with a license to construct a single residence shipped to your physical address. PDF Plan Packages are our most popular choice which allows you to print as many copies as you need and to electronically send files to your builder, subcontractors, bank/mortgage reps, material stores, decorators and more.

$1,395
$845
PDF Bid Set
PDFs NOW!™

Home plans stamped "NOT FOR CONSTRUCTION" for cost estimating and bidding purposes only; a minimum 5 set plan package must be purchased within 90 days for a license to build plan set; a credit will be applied towards your house plan upgrade

$845
$1,295
PDF Single Build
PDFs NOW!™

Digital plans emailed to you in PDF format that allows for printing copies and sharing electronically with contractors, subs, decorators, and more. This package includes a license to build the home one time.

$1,295
$1,795
CAD + PDF Single Build

This plan package is created in AutoCAD and delivered in .DWG format. CAD files are intended for use by design professionals, structural engineers, and builders to update plans for local building codes or to make revisions based on specific needs, lot requirements, and budget considerations. A complimentary PDF copy is included with this package for reference. CAD packages are delivered within 1 to 2 business days.
 
This package also comes with a copyright release for making revisions and printing unlimited copies.

For details on the specific CAD program used, please refer to the PLAN DETAILS section located above the floor plan on each plan page.

$1,795
 Need To Reverse Plan? (Optional)
$295
Readable Reverse

Reverse house plans with readable text and dimensions 

$295
  Select Foundation Option
  Add-Ons (Optional)
INCLUDED WITH YOUR PURCHASE

Free Ground shipping in the Continental U.S.

FREE

Home Building & Product Ideas Organizer

Sub Total
$0
Free Shipping
QUESTIONS OR NEED HELP ORDERING? LIVE CHAT OR CALL US AT 866-214-2242
Plan Packages

Each set of construction documents includes detailed, dimensioned floor plans, basic electric layouts, cross sections, roof details, cabinet layouts and elevations, as well as general IRC specifications. They contain virtually all of the information required to construct your home. The typical plan set does not include any plumbing, HVAC drawings, or engineering stamps due to the wide variety of specific needs, local codes, and climatic conditions. These details and specifications are easily obtained from your builder, contractors, and/or local engineers.

BEST PRICE GUARANTEE

Find the same house plan (modifications included!) and package for less on another site, show us the URL and we'll give you the difference plus an additional 5% back.

100% SATISFACTION GUARANTEE

We offer a one-time, 30-day exchange policy for unused, printed plan packages in the event you aren't satisfied with your first selection. Exchanges are subject to a 20% restocking fee.

 
 

Plan 7674  Back to plan page

Loading...