Get discounts,
promos, see our
newest plans
and more!
+ 15% off any plan
See terms opt out anytime


No Thanks

Thanks for
signing up!


Use Code:

SIGNUP15

And save 15% off any plan!

Check your email for details.

CLOSE
Search Plans
Customer Reviews
     
20% off ALL House Plans Sitewide
20% off ALL House Plans Sitewide
20% off ALL House Plans Sitewide

Code: SAVE20
Sale ends midnight 5/13/2026 PST

Sq Ft
1,709 FT²

Beds
3

Baths
2

Stories
2

Garage
2

Depth
40' 8"

Width
60'
On Sale
$1,344.00
$1,680.00
© copyright by designer
 View All 13 Images | Photographs may reflect modified home
Sq Ft
1,709 FT²
Beds
3
Baths
2
Stories
2
Garage
2
Depth
40' 8"
Width
60'
 
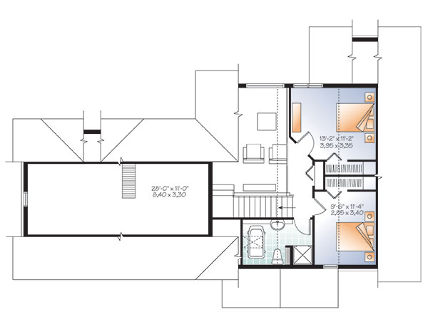
Click to Zoom In on Floor Plan
© copyright by designer
 
 

About This Plan

This three-bedroom cottage design will be the envy of your neighbors. The welcoming foyer directs your guests into the pleasant living room, complete with vaulted ceiling and two-sided fireplace. The open kitchen boasts an island snack area for four. Any meal will be perfect in the sophisticated dining room. A walk-in closet is found in the master bedroom. Laundry facilities are located in the posh full bath. Two secondary bedrooms share a bath on the upper level. Don't overlook the daylight basement, with its expansion potential. 

See All Plan Options
 

FEATURES & DETAILS

Kitchen features
Kitchen Island
Bedroom features
Guest Suite
His and Hers Primary Closets
Primary Bdrm Main Floor
Separate Tub and Shower
Split Bedrooms
Walk-in Closet
Exterior features
Covered Front Porch
Covered Rear Porch
Deck
Front Porch
Rear Porch
Foundation Options
Basement
Crawlspace
Daylight Basement
Slab
Walkout Basement
Lot Options
Suited for view lot
Additional features
Family Room
Fireplace
Formal LR
Foyer
Great Room
Laundry 1st Fl
Open Floor Plan
Storage Space
Unfinished Space
Vaulted Ceilings
Garage Location
Side
Garage Options
Attached
Side-entry
1,709 Ft
2
Total Heated
1,196 Ft
2
1st Floor
513 Ft
2
2nd Floor
3
Bedrooms
2
Bathrooms
2
Garage
2
Stories
60' 0"
Width
40' 8"
Depth
24' 5"
Height
8' 0"
Main Floor Ceiling
8' 0"
Upper Floor Ceiling
2x6
Framing
Truss
Roof Framing
Single
Dwelling Number
2nd Floor
Bonus Access

Unheated Living Space
467 Ft
2
Garage
341 Ft
2
Bonus Room
 

Plan Package Options

 Select Plan Package
 Need To Reverse Plan? (Optional)
  Select Foundation Option
  Add-Ons (Optional)
INCLUDED WITH YOUR PURCHASE

Free Ground shipping in the U.S.

FREE

Home Building & Product Ideas Organizer

Sub Total
$0
Free Shipping
Please allow 3-5 business days for delivery of this plan Please check our PDFs NOW collection for plans that can be downloaded and received immediately or live chat us to help you find a similar plan available now.
QUESTIONS OR NEED HELP ORDERING? LIVE CHAT OR CALL US AT 866-214-2242
Plan Packages

Each set of construction documents typically includes detailed, dimensioned floor plans, basic electric layouts, cross sections, roof details, cabinet layouts, and elevations, as well as general IRC specifications. Please refer to the ARCHITECT or DESIGNER’S PLAN DETAILS link above the floor plan on any plan page to determine the specific details for each plan. Our house plans contain virtually all of the information required to construct your home. The typical plan set does not include plumbing, HVAC drawings, or engineering stamps due to the wide variety of specific needs, local codes, and climatic conditions. These details and specifications are easily obtained from your builder, contractors, and/or local engineers.

BEST PRICE GUARANTEE

Find the same house plan (modifications included!) and package for less on another site, show us the URL and we'll give you the difference plus an additional 10% back.

100% SATISFACTION GUARANTEE

We offer a one-time, 30-day exchange policy for unused, printed plan packages in the event you aren't satisfied with your first selection.

 
 

Plan 9831  Back to plan page

Loading...