Get discounts,
promos, see our
newest plans
and more!
+ 15% off any plan
See terms opt out anytime


No Thanks

Thanks for
signing up!


Use Code:

SIGNUP15

And save 15% off any plan!

Check your email for details.

CLOSE
Search Plans
Customer Reviews
     
20% off ALL House Plans Sitewide
20% off ALL House Plans Sitewide
20% off ALL House Plans Sitewide

Code: SAVE20
Sale ends midnight 5/13/2026 PST

Sq Ft
2,465 FT²

Beds
3

Baths
2.5

Stories
2

Garage
2

Depth
64'

Width
45'
On Sale
$1,487.20
$1,859.00
© copyright by designer
 View All 4 Images | Photographs may reflect modified home
Sq Ft
2,465 FT²
Beds
3
Baths
2.5
Stories
2
Garage
2
Depth
64'
Width
45'
 
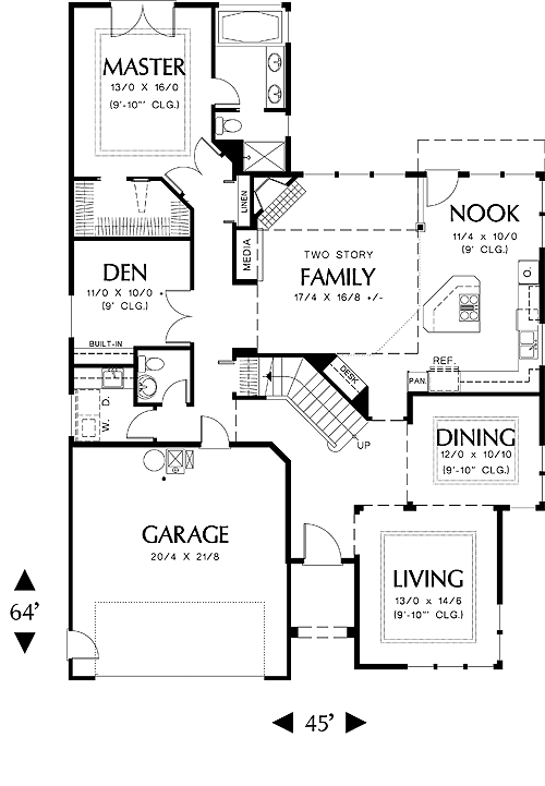
Click to Zoom In on Floor Plan
© copyright by designer
 
 

About This Plan

Clean, cool contemporary style with dramatic lines and volume roofs - what a great way to envelope a fine floor plan! This one features two stories and rooms with ceilings that soar to heights of ten feet or more. The family room, in fact, towers a full two-stories and is further graced by a corner fireplace and a built-in media center. Ceilings in the living and dining rooms and in the master salon are decorative and set at ten feet. The den and breakfast nook are kept cozier with nine-foot ceilings. A gourmet kitchen separates formal and informal eating spaces and features an island with snack bar and cooktop. Two bedrooms are found on the upper level - one with a walk-in closet. They share a compartmented bath and have the use of a walk-in linen closet. The two-car garage is reached via a service hall with half-bath and laundry room.
 

See All Plan Options
 

FEATURES & DETAILS

Kitchen features
Kitchen Island
Nook / Breakfast Area
Bedroom features
Double Vanity Sink
Primary Bdrm Main Floor
Split Bedrooms
Walk-in Closet
Exterior features
No Porch
Foundation Options
Basement
Crawlspace
Slab
Lot Options
Suited for narrow lot
Additional features
2 Story Volume
Dining Room
Family Room
Fireplace
Formal LR
Foyer
Home Office
Laundry 1st Fl
Garage Location
Front
Garage Options
Attached
Front-entry
2,465 Ft
2
Total Heated
1,897 Ft
2
1st Floor
568 Ft
2
2nd Floor
3
Bedrooms
2.5
Bathrooms
2
Garage
2
Stories
45' 0"
Width
64' 0"
Depth
26' 0"
Height
Varies' 0"
Main Floor Ceiling
2x6
Framing
Stick
Roof Framing
5/12
Primary Roof Pitch
Single
Dwelling Number
None
Bonus Access

Unheated Living Space
444 Ft
2
Garage
 

Plan Package Options

 Select Plan Package
 Need To Reverse Plan? (Optional)
  Select Foundation Option
  Add-Ons (Optional)
INCLUDED WITH YOUR PURCHASE

Free Ground shipping in the U.S.

FREE

Home Building & Product Ideas Organizer

Sub Total
$0
Free Shipping
QUESTIONS OR NEED HELP ORDERING? LIVE CHAT OR CALL US AT 866-214-2242
Plan Packages

Each set of construction documents typically includes detailed, dimensioned floor plans, basic electric layouts, cross sections, roof details, cabinet layouts, and elevations, as well as general IRC specifications. Please refer to the ARCHITECT or DESIGNER’S PLAN DETAILS link above the floor plan on any plan page to determine the specific details for each plan. Our house plans contain virtually all of the information required to construct your home. The typical plan set does not include plumbing, HVAC drawings, or engineering stamps due to the wide variety of specific needs, local codes, and climatic conditions. These details and specifications are easily obtained from your builder, contractors, and/or local engineers.

BEST PRICE GUARANTEE

Find the same house plan (modifications included!) and package for less on another site, show us the URL and we'll give you the difference plus an additional 10% back.

100% SATISFACTION GUARANTEE

We offer a one-time, 30-day exchange policy for unused, printed plan packages in the event you aren't satisfied with your first selection.

 
 

Plan 2675  Back to plan page

Loading...