Get discounts,
promos, see our
newest plans
and more!
+ 15% off any plan
See terms opt out anytime


No Thanks

Thanks for
signing up!


Use Code:

SIGNUP15

And save 15% off any plan!

Check your email for details.

CLOSE
Search Plans
Customer Reviews
     
20% off ALL House Plans Sitewide
20% off ALL House Plans Sitewide
20% off ALL House Plans Sitewide

Code: SAVE20
Sale ends midnight 5/13/2026 PST

Sq Ft
3,398 FT²

Beds
4

Baths
2.5

Stories
2

Garage
3

Depth
50'

Width
60'
On Sale
$1,782.40
$2,228.00
© copyright by designer
 View All 9 Images | Photographs may reflect modified home
Sq Ft
3,398 FT²
Beds
4
Baths
2.5
Stories
2
Garage
3
Depth
50'
Width
60'
 
Click to Zoom In on Floor Plan
© copyright by designer
 
 

About This Plan

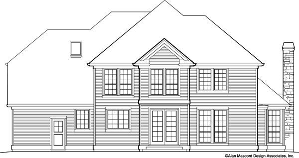
Sporting a mix of exterior materials, this European home rises to lofty heights in a hipped roof. The grand entry features a keystone arch over a recessed doorway with large arched transom. Sidelights at the front door also help to brighten the entry. A wide entry foyer reveals an angled, open stairway to the second level, plus formal areas: a living room with a fireplace and a dining room with a bay window and a butler's pantry. For more casual times, use the family room at the back of the first floor. It holds a media center and a corner fireplace. The nearby nook and the island kitchen have access to the rear yard through French doors. Tucked away between the family room and the living room is a quiet den with built-in bookcases.

The second floor contains four bedrooms and a small library with built-in bookcases. The master suite shares a through-fireplace with the master bathroom, and has a wonderfully detailed tray ceiling for accent. The additional three bedrooms have the use of a hall bath with double skylights. Note the large linen closet in this bath. 


See All Plan Options
 

FEATURES & DETAILS

Kitchen features
Butler's Pantry
Kitchen Island
Nook / Breakfast Area
Walk-in Pantry
Bedroom features
Double Vanity Sink
Primary Bdrm Upstairs
Separate Tub and Shower
Sitting Area
Walk-in Closet
Exterior features
Front Porch
Foundation Options
Basement
Crawlspace
Slab
Additional features
2 Story Volume
Dining Room
Family Room
Fireplace
Formal LR
Foyer
Home Office
Laundry 1st Fl
Library/Media Rm
Loft / Balcony
Open Floor Plan
Vaulted Ceilings
Garage Location
Front
Garage Options
Attached
Front-entry
Tandem
3,398 Ft
2
Total Heated
1,821 Ft
2
1st Floor
1,577 Ft
2
2nd Floor
4
Bedrooms
2.5
Bathrooms
3
Garage
2
Stories
60' 0"
Width
50' 0"
Depth
32' 0"
Height
Varies' 0"
Main Floor Ceiling
Varies' 0"
Upper Floor Ceiling
2x6
Framing
Truss
Roof Framing
10/12
Primary Roof Pitch
Single
Dwelling Number
None
Bonus Access

Unheated Living Space
643 Ft
2
Garage
 

Plan Package Options

 Select Plan Package
 Need To Reverse Plan? (Optional)
  Select Foundation Option
  Add-Ons (Optional)
INCLUDED WITH YOUR PURCHASE

Free Ground shipping in the U.S.

FREE

Home Building & Product Ideas Organizer

Sub Total
$0
Free Shipping
QUESTIONS OR NEED HELP ORDERING? LIVE CHAT OR CALL US AT 866-214-2242
Plan Packages

Each set of construction documents typically includes detailed, dimensioned floor plans, basic electric layouts, cross sections, roof details, cabinet layouts, and elevations, as well as general IRC specifications. Please refer to the ARCHITECT or DESIGNER’S PLAN DETAILS link above the floor plan on any plan page to determine the specific details for each plan. Our house plans contain virtually all of the information required to construct your home. The typical plan set does not include plumbing, HVAC drawings, or engineering stamps due to the wide variety of specific needs, local codes, and climatic conditions. These details and specifications are easily obtained from your builder, contractors, and/or local engineers.

BEST PRICE GUARANTEE

Find the same house plan (modifications included!) and package for less on another site, show us the URL and we'll give you the difference plus an additional 10% back.

100% SATISFACTION GUARANTEE

We offer a one-time, 30-day exchange policy for unused, printed plan packages in the event you aren't satisfied with your first selection.

 
 

Plan 2729  Back to plan page

Loading...