Get discounts,
promos, see our
newest plans
and more!
+ 15% off any plan
See terms opt out anytime


No Thanks

Thanks for
signing up!


Use Code:

SIGNUP15

And save 15% off any plan!

Check your email for details.

CLOSE
Search Plans
Customer Reviews
     
15% off ALL House Plans Sitewide
15% off ALL House Plans Sitewide
15% off ALL House Plans Sitewide

Code: HONOR
Sale ends midnight 5/31/2026 PST

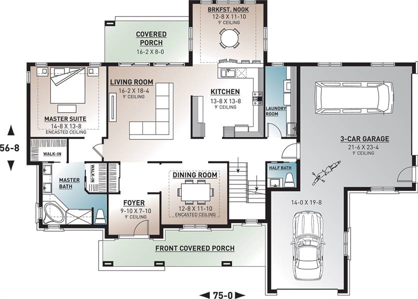
Rose 4 Bedroom Traditional Style House, Plan 9560

 
 

Sq Ft
2,812 FT²

Beds
4

Baths
3.5

Stories
2

Garage
3

Depth
56' 8"

Width
75'
On Sale
$1,870.00
$2,200.00
© copyright by designer
 View All 4 Images | Photographs may reflect modified home
Sq Ft
2,812 FT²
Beds
4
Baths
3.5
Stories
2
Garage
3
Depth
56' 8"
Width
75'
 
Click to Zoom In on Floor Plan
© copyright by designer
 
 

About This Plan

This traditional 2,812 square foot house feels fresh and sleek with abundant windows, and catching gables. Inside, the sightline directs your gaze from the foyer all the way through the great room and out to the rear porch, that invites everyone out for barbecues. A snack bar in the kitchen creates a fun hangout zone. For elegant dinners, the dining room sits near the front. Relax in your master suite, complete with a his / hers large walk-in closet. Three additional bedrooms (one a private suite) are located on the second floor. Other thoughtful features include extra storage in the garage, large laundry rooms, breakfast nook, half bath off of the garage, and beautiful views. 

See All Plan Options
 

FEATURES & DETAILS

Kitchen features
Nook / Breakfast Area
Peninsula / Eating Bar
Bedroom features
2 Primary Suites
Double Vanity Sink
Guest Suite
His and Hers Primary Closets
Primary Bdrm Main Floor
Separate Tub and Shower
Sitting Area
Split Bedrooms
Walk-in Closet
Exterior features
Covered Front Porch
Covered Rear Porch
Front Porch
Rear Porch
Screened Porch/Sunroom
Foundation Options
Basement
Crawlspace
Slab
Lot Options
Suited for view lot
Additional features
Dining Room
Family Room
Formal LR
Foyer
Great Room
In-law Suite
Laundry 1st Fl
Open Floor Plan
Unfinished Space
Vaulted Ceilings
Garage Location
Front
Garage Options
Attached
Front-entry
Side-entry
2,812 Ft
2
Total Heated
1,818 Ft
2
1st Floor
994 Ft
2
2nd Floor
4
Bedrooms
3.5
Bathrooms
3
Garage
2
Stories
75' 0"
Width
56' 8"
Depth
32' 6"
Height
9' 0"
Main Floor Ceiling
8' 0"
Upper Floor Ceiling
2x6
Framing
Truss
Roof Framing
12/12
Primary Roof Pitch
9/12
Secondary Roof Pitch
4/12
Porch Roof Pitch
Single
Dwelling Number
None
Bonus Access

Unheated Living Space
873 Ft
2
Garage
 

Plan Package Options

 Select Plan Package
 Need To Reverse Plan? (Optional)
  Select Foundation Option
  Add-Ons (Optional)
INCLUDED WITH YOUR PURCHASE

Free Ground shipping in the U.S.

FREE

Home Building & Product Ideas Organizer

Sub Total
$0
Free Shipping
Please allow 3-5 business days for delivery of this plan Please check our PDFs NOW collection for plans that can be downloaded and received immediately or live chat us to help you find a similar plan available now.
QUESTIONS OR NEED HELP ORDERING? LIVE CHAT OR CALL US AT 866-214-2242
Plan Packages

Each set of construction documents typically includes detailed, dimensioned floor plans, basic electric layouts, cross sections, roof details, cabinet layouts, and elevations, as well as general IRC specifications. Please refer to the ARCHITECT or DESIGNER’S PLAN DETAILS link above the floor plan on any plan page to determine the specific details for each plan. Our house plans contain virtually all of the information required to construct your home. The typical plan set does not include plumbing, HVAC drawings, or engineering stamps due to the wide variety of specific needs, local codes, and climatic conditions. These details and specifications are easily obtained from your builder, contractors, and/or local engineers.

BEST PRICE GUARANTEE

Find the same house plan (modifications included!) and package for less on another site, show us the URL and we'll give you the difference plus an additional 10% back.

100% SATISFACTION GUARANTEE

We offer a one-time, 30-day exchange policy for unused, printed plan packages in the event you aren't satisfied with your first selection.

 
 

Plan 9560  Back to plan page

Loading...