Get discounts,
promos, see our
newest plans
and more!
+ 15% off any plan
See terms opt out anytime


No Thanks

Thanks for
signing up!


Use Code:

SIGNUP15

And save 15% off any plan!

Check your email for details.

CLOSE
Search Plans
Customer Reviews
     
America’s Top Home Plans
Trusted House Plans From America's Leading Architects & Designers

Rocheleau Open Floor Plan Country Craftsman Style House, Plan 8661

 
 

Sq Ft
3,137 FT²

Beds
4

Baths
2.5

Stories
2

Garage
1

Depth
42' 4"

Width
50'
From
$2,200.00
© copyright by designer
 View All 14 Images | Photographs may reflect modified home
Sq Ft
3,137 FT²
Beds
4
Baths
2.5
Stories
2
Garage
1
Depth
42' 4"
Width
50'
 
Click to Zoom In on Floor Plan
© copyright by designer
 
 

About This Plan

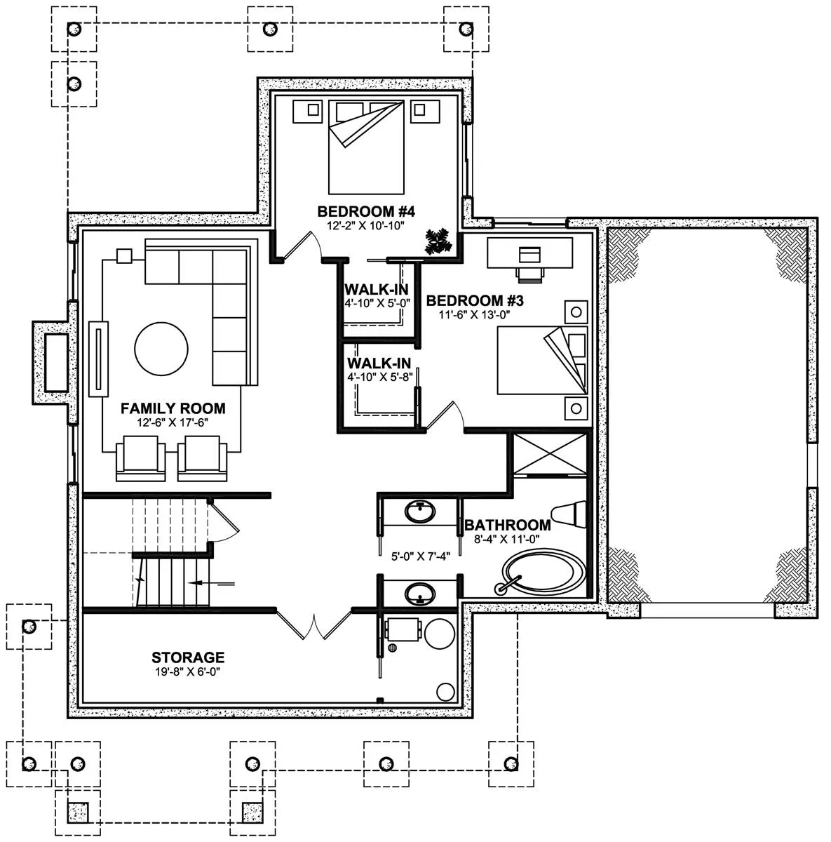
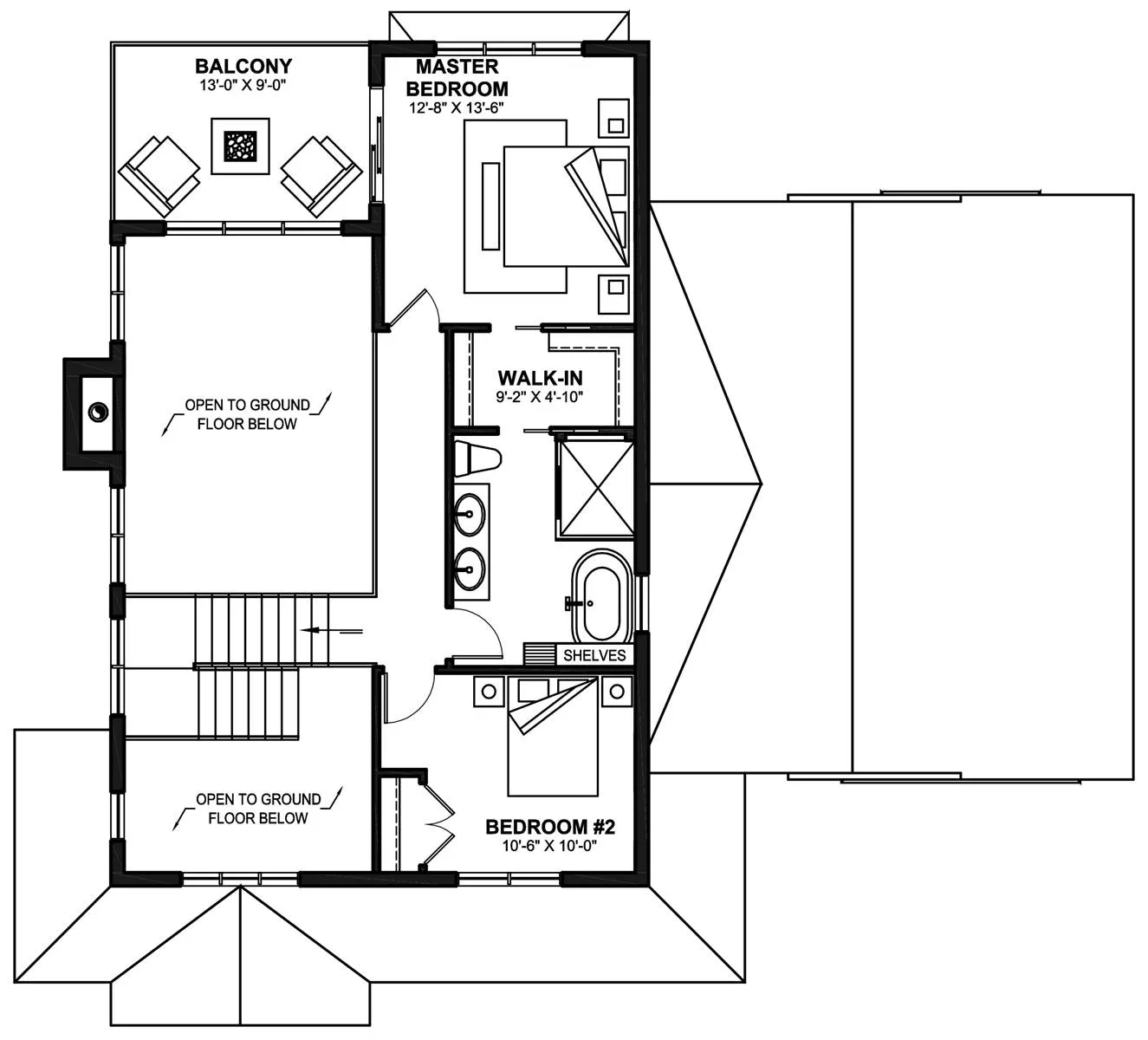
Introducing the Rocheleau, our new country Craftsman house plan perfect for a large family.  As you enter the home you are greeted with a two story foyer providing a grand entrance.  Through the foyer and into the living room you find yourself surrounded by lovely touches like the grand fireplace, open staircase and views into the gourmet kitchen and dining room areas.  The open plan provides enough space to entertain family and friends as well as that comforting feel of intimacy in each area of the home.  The first level also boasts a mudroom/laundry room area that leads directly to the garage.  At the front of the home is an office that provides privacy for those work at home days.  The second level is where you'll find the master bedroom with private entrance onto a balcony for those romantic evenings together watching the night sky.  A second bedroom is also located on this level and the bathroom is shared between the two bedrooms.  From the hallway area, it is open to below so you can watch any goings-on downstairs.  The basement level has a family room perfect for the kids.  This area could become a game room, media room or even a man-cave.  Two additional bedrooms are located on this level, with a shared bathroom with separate tub and shower.  Large walk-in closets for each bedroom provides additional storage.  Also, a very large storage room is on this level, perfect for storing those holiday decorations out of the way.  This beautiful home has everything one could need for a growing family. 

See All Plan Options
 

FEATURES & DETAILS

Kitchen features
Kitchen Island
L-Shaped
Walk-in Pantry
Bedroom features
Double Vanity Sink
Guest Suite
Primary Bdrm Upstairs
Separate Tub and Shower
Split Bedrooms
Exterior features
Covered Front Porch
Covered Rear Porch
Additional features
Dining Room
Family Room
Fireplace
Foyer
Home Office
Laundry 1st Fl
Mud Room
Open Floor Plan
Vaulted Foyer
Vaulted Great Room/Living
Garage Location
Front
Garage Options
Attached
Front-entry
3,137 Ft
2
Total Heated
1,255 Ft
2
1st Floor
627 Ft
2
2nd Floor
1,255 Ft
2
Lower Floor
4
Bedrooms
2.5
Bathrooms
1
Garage
2
Stories
50' 0"
Width
42' 4"
Depth
32' 4"
Height
9' 0"
Main Floor Ceiling
8' 0"
Upper Floor Ceiling
8' 0"
Lower Floor Ceiling
18' 6"
Foyer Ceiling
2x6
Framing
Truss
Roof Framing
8/12
Primary Roof Pitch
Single
Dwelling Number
None
Bonus Access

Unheated Living Space
386 Ft
2
Garage
 

Plan Package Options

 Select Plan Package
 Need To Reverse Plan? (Optional)
  Select Foundation Option
  Add-Ons (Optional)
INCLUDED WITH YOUR PURCHASE

Free Ground shipping in the U.S.

FREE

Home Building & Product Ideas Organizer

Sub Total
$0
Free Shipping
Please allow 3-5 business days for delivery of this plan Please check our PDFs NOW collection for plans that can be downloaded and received immediately or live chat us to help you find a similar plan available now.
QUESTIONS OR NEED HELP ORDERING? LIVE CHAT OR CALL US AT 866-214-2242
Plan Packages

Each set of construction documents typically includes detailed, dimensioned floor plans, basic electric layouts, cross sections, roof details, cabinet layouts, and elevations, as well as general IRC specifications. Please refer to the ARCHITECT or DESIGNER’S PLAN DETAILS link above the floor plan on any plan page to determine the specific details for each plan. Our house plans contain virtually all of the information required to construct your home. The typical plan set does not include plumbing, HVAC drawings, or engineering stamps due to the wide variety of specific needs, local codes, and climatic conditions. These details and specifications are easily obtained from your builder, contractors, and/or local engineers.

BEST PRICE GUARANTEE

Find the same house plan (modifications included!) and package for less on another site, show us the URL and we'll give you the difference plus an additional 10% back.

100% SATISFACTION GUARANTEE

We offer a one-time, 30-day exchange policy for unused, printed plan packages in the event you aren't satisfied with your first selection.

 
 

Plan 8661  Back to plan page

Loading...