Get discounts,
promos, see our
newest plans
and more!
+ 15% off any plan
See terms opt out anytime


No Thanks

Thanks for
signing up!


Use Code:

SIGNUP15

And save 15% off any plan!

Check your email for details.

CLOSE
Search Plans
Customer Reviews
     
20% off ALL House Plans Sitewide
20% off ALL House Plans Sitewide
20% off ALL House Plans Sitewide

Code: SAVE20
Sale ends midnight 5/13/2026 PST

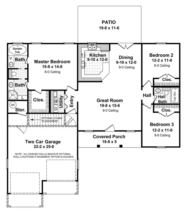
Cherry Ave | 3 Bedroom Modern Farmhouse Style House, Plan 10544

 
 

Sq Ft
1,400 FT²

Beds
3

Baths
2

Stories
1

Garage
2

Depth
47'

Width
54'
On Sale
$960.00
$1,200.00
© copyright by designer
 View All 3 Images | Photographs may reflect modified home
Sq Ft
1,400 FT²
Beds
3
Baths
2
Stories
1
Garage
2
Depth
47'
Width
54'
 
Click to Zoom In on Floor Plan
© copyright by designer
 
 

About This Plan

The Cherry Ave is a charming ranch-style home offering 1,400 square feet of comfortable, single-level living with a smart split-bedroom layout. This three-bedroom, two-bathroom design features an inviting covered front porch, a front-entry two-car garage, and an open-concept great room, dining area, and kitchen that seamlessly connect to the rear patio—perfect for easy indoor-outdoor living. The private primary suite is a true retreat with a spa-inspired ensuite, including split dual vanities and a spacious walk-in closet, while two additional bedrooms and a full bath are thoughtfully placed on the opposite side of the home for added privacy. 

See All Plan Options
 

FEATURES & DETAILS

Kitchen features
Nook / Breakfast Area
Pantry
U-Shaped
Bedroom features
Double Vanity Sink
Primary Bdrm Main Floor
Nursery Room
Separate Tub and Shower
Split Bedrooms
Walk-in Closet
Exterior features
Covered Front Porch
Rear Porch
Lot Options
Suited for corner lot
Additional features
Dining Room
Exercise Room
Home Office
Laundry 1st Fl
Library/Media Rm
Open Floor Plan
Storage Space
Unfinished Space
Garage Location
Front
Garage Options
Attached
Oversized
2,032 Ft
2
Total Structure
1,400 Ft
2
Total Heated
1,400 Ft
2
1st Floor
3
Bedrooms
2
Bathrooms
2
Garage
1
Stories
54' 0"
Width
47' 0"
Depth
19' 10"
Height
5' 0"
Main Floor Ceiling
2x4
Framing
Stick
Roof Framing
8 in 12
Primary Roof Pitch
None
Secondary Roof Pitch
Single
Dwelling Number

Unheated Living Space
509 Ft
2
Garage
25 Ft
2
Storage
94 Ft
2
Front Porch
 

Plan Package Options

 Select Plan Package
 Need To Reverse Plan? (Optional)
  Select Foundation Option
  Add-Ons (Optional)
INCLUDED WITH YOUR PURCHASE

Free Ground shipping in the U.S.

FREE

Home Building & Product Ideas Organizer

Sub Total
$0
Free Shipping
QUESTIONS OR NEED HELP ORDERING? LIVE CHAT OR CALL US AT 866-214-2242
Plan Packages

Each set of construction documents typically includes detailed, dimensioned floor plans, basic electric layouts, cross sections, roof details, cabinet layouts, and elevations, as well as general IRC specifications. Please refer to the ARCHITECT or DESIGNER’S PLAN DETAILS link above the floor plan on any plan page to determine the specific details for each plan. Our house plans contain virtually all of the information required to construct your home. The typical plan set does not include plumbing, HVAC drawings, or engineering stamps due to the wide variety of specific needs, local codes, and climatic conditions. These details and specifications are easily obtained from your builder, contractors, and/or local engineers.

BEST PRICE GUARANTEE

Find the same house plan (modifications included!) and package for less on another site, show us the URL and we'll give you the difference plus an additional 10% back.

100% SATISFACTION GUARANTEE

We offer a one-time, 30-day exchange policy for unused, printed plan packages in the event you aren't satisfied with your first selection.

 
 

Plan 10544  Back to plan page

Loading...