Get discounts,
promos, see our
newest plans
and more!
+ 15% off any plan
See terms opt out anytime


No Thanks

Thanks for
signing up!


Use Code:

SIGNUP15

And save 15% off any plan!

Check your email for details.

CLOSE
Search Plans
     
20% Off House Plans Sitewide Ends Tuesday
20% Off House Plans Sitewide Ends Tuesday
20% Off House Plans Sitewide Ends Tuesday

Code: VET20
Sale ends midnight 11/11/2025 PST

Graceville | 3 Bedroom Farmhouse Style House, Plan 11341

 
 

Sq Ft
1,816 FT²

Beds
3

Baths
2

Stories
1.5

Garage
2

Depth
60' 8"

Width
65'
On Sale
$1,040.00
$1,300.00
© copyright by designer
 View All 4 Images | Photographs may reflect modified home | HPG-1816N
Sq Ft
1,816 FT²
Beds
3
Baths
2
Stories
1.5
Garage
2
Depth
60' 8"
Width
65'
 

 
Click to Zoom In on Floor Plan
© copyright by designer
 
 

About This Plan

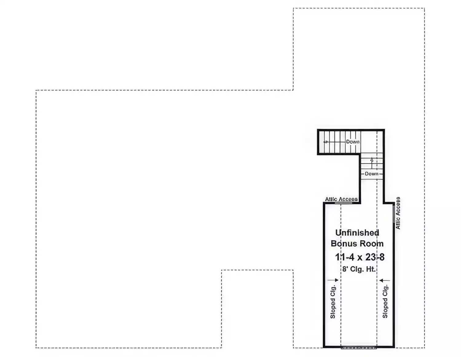
Graceville is a welcoming farmhouse-style home that blends timeless curb appeal with a family-friendly layout designed for comfort and function. A charming front porch opens into a bright foyer leading to the spacious great room with vaulted ceilings and a cozy fireplace. The kitchen features a central island, walk-in pantry, and a cheerful breakfast nook overlooking the rear covered porch, perfect for casual meals or entertaining guests. The private primary suite includes a tray ceiling, spa-like bath with soaking tub, separate shower, dual vanities, and a large walk-in closet with direct access to the laundry room for added convenience. Two additional bedrooms share a full bath on the opposite side of the home for privacy, while a flexible front room serves as an ideal office, study, or playroom. An upstairs bonus room provides room for future expansion, and with a two-car garage, abundant storage, and thoughtful details throughout, Graceville offers the perfect balance of farmhouse charm and modern livability. 

See All Plan Options
 

FEATURES & DETAILS

Kitchen features
Country Kitchen
Kitchen Island
L-Shaped
Nook / Breakfast Area
Pantry
Peninsula / Eating Bar
Bedroom features
Double Vanity Sink
Primary Bdrm Main Floor
Separate Tub and Shower
Split Bedrooms
Walk-in Closet
Exterior features
Covered Front Porch
Covered Rear Porch
Additional features
Bonus Room
Dining Room
Exercise Room
Fireplace
Formal LR
Foyer
Great Room
Home Office
Laundry 1st Fl
Library/Media Rm
Open Floor Plan
Rec Room
Storage Space
Unfinished Space
Vaulted Ceilings
Vaulted Great Room/Living
Garage Location
Side
Garage Options
Attached
Oversized
3,293 Ft
2
Total Structure
1,816 Ft
2
Total Heated
1,816 Ft
2
1st Floor
1,935 Ft
2
Unfinished Basement
3
Bedrooms
2
Bathrooms
2
Garage
1.5
Stories
65' 0"
Width
60' 8"
Depth
23' 7"
Height
9' 0"
Main Floor Ceiling
2x4
Framing
Stick
Roof Framing
8 in 12
Primary Roof Pitch
12 in 12
Secondary Roof Pitch
Single
Dwelling Number

Unheated Living Space
730 Ft
2
Garage
186 Ft
2
Front Porch
211 Ft
2
Rear Porch
350 Ft
2
Bonus Room
 

Plan Package Options

 Select Plan Package
Sale: $920
Study Set - Printed
$1,150
One printed set of house plans stamped NOT FOR CONSTRUCTION". This set is intended for review purposes and are mailed to you. To build from the plans, you need to upgrade to a licensed set.
Sale: $920
Sale: $1,040
PDF Single Build
$1,300

Digital plans emailed to you in PDF format that allows for printing copies and sharing electronically with contractors, subs, decorators, and more. This package includes a license to build the home one time.

Sale: $1,040
Sale: $1,120
5 Printed Sets
$1,400

Five Printed Sets of Residential Construction Drawings are typically 24” x 36” documents and come with a license to construct a single residence shipped to a physical address. Keep in mind PDF Plan Packages are our most popular choice which allows you to print as many copies as you need and to electronically send files to your builder, subcontractors, etc.

Sale: $1,120
Sale: $1,280
5 Printed Sets + PDF
$1,600

Digital plan emailed to you in PDF format that allows for printing copies on a home printer or local print shop and sharing with contractors, subs, decorators, and more. PLUS five printed sets shipped and delivered 3-5 business days.

Sale: $1,280
Sale: $1,560
CAD + PDF Single Build
$1,950

CAD files are a complete set of construction drawings delivered electronically. They can be used for any type of modification—including major design changes and engineering—and include a release granting permission to modify the plan. Most CAD plan orders are emailed the same or next business day.
 
This package also comes with a PDF set of plans and a copyright release for making modifications and printing unlimited copies.
 
CAD files are provided in .dwg format. For details on the specific CAD program used, please refer to the PLAN DETAILS section located above the floor plan on each plan’s page.

Sale: $1,560
 Need To Reverse Plan? (Optional)
$150
Readable Reverse

Reverse house plans with readable text and dimensions 

$150
  Select Foundation Option
  Add-Ons (Optional)
INCLUDED WITH YOUR PURCHASE

Free Ground shipping in the Continental U.S.

FREE

Design consultation with the architect or designer to discuss your plan

Home Building & Product Ideas Organizer

Sub Total
$0
Free Shipping
QUESTIONS OR NEED HELP ORDERING? LIVE CHAT OR CALL US AT 866-214-2242
Plan Packages

Each set of construction documents includes detailed, dimensioned floor plans, basic electric layouts, cross sections, roof details, cabinet layouts and elevations, as well as general IRC specifications. They contain virtually all of the information required to construct your home. The typical plan set does not include any plumbing, HVAC drawings, or engineering stamps due to the wide variety of specific needs, local codes, and climatic conditions. These details and specifications are easily obtained from your builder, contractors, and/or local engineers.

BEST PRICE GUARANTEE

find the same house plan (modifications included!) and package for less on another site, show us the URL and we'll give you the difference plus an additional 5% back.

100% SATISFACTION GUARANTEE

We offer a one-time, 30-day exchange policy for unused, non-electronic plan packages in the event you aren't satisfied with your first selection.

 
 

Plan 11341  Back to plan page

Loading...