Get discounts,
promos, see our
newest plans
and more!
+ 15% off any plan
See terms opt out anytime


No Thanks

Thanks for
signing up!


Use Code:

SIGNUP15

And save 15% off any plan!

Check your email for details.

CLOSE
Search Plans
Customer Reviews
     
America’s Top Home Plans
Trusted House Plans From America's Leading Architects & Designers

Mt. Meridian 3 Outdoor Living Country Style House, Plan 6098

 
 

Sq Ft
2,687 FT²

Beds
3

Baths
2.5

Stories
2

Garage
2

Depth
44'

Width
60'
From
$1,970.00
© copyright by designer
 View All 6 Images | Photographs may reflect modified home
Sq Ft
2,687 FT²
Beds
3
Baths
2.5
Stories
2
Garage
2
Depth
44'
Width
60'
 
Click to Zoom In on Floor Plan
© copyright by designer
 
 

About This Plan

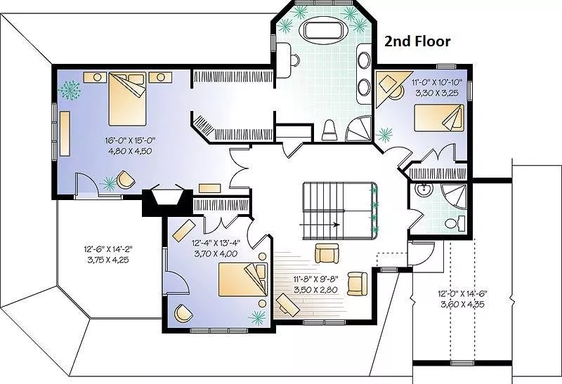
  A stunning wraparound porch adorns the front of this country bungalow style house plan. With 2,687 square feet of space, this plan will have you saying ‘Wow!’ at every turn. With 3 bedrooms and 2.5 bathrooms, this home has enough space for the family with privacy for everyone. The sun bathes every inch of this home, giving it an open and airy feeling. The spacious kitchen provides porch access as well as plenty of room for the whole family while the sunroom gives a relaxing area to enjoy. The second floor master suite has a large walk-in closet and a blissful master bathroom. 

See All Plan Options
 

FEATURES & DETAILS

Kitchen features
Kitchen Island
Nook / Breakfast Area
Bedroom features
Walk-in Closet
Foundation Options
Basement
Crawlspace
Slab
Additional features
Dining Room
Fireplace
Laundry 1st Fl
Garage Options
Attached
2,687 Ft
2
Total Heated
1,297 Ft
2
1st Floor
1,390 Ft
2
2nd Floor
1,297 Ft
2
Basement
3
Bedrooms
2.5
Bathrooms
2
Garage
2
Stories
60' 0"
Width
44' 0"
Depth
33' 8"
Height
8' 0"
Main Floor Ceiling
9' 0"
Upper Floor Ceiling
2x6
Framing
Truss
Roof Framing
12/12
Primary Roof Pitch
12/12
Secondary Roof Pitch
Single
Dwelling Number

Unheated Living Space
472 Ft
2
Garage
229 Ft
2
Bonus Room
 

Plan Package Options

 Select Plan Package
 Need To Reverse Plan? (Optional)
  Select Foundation Option
  Add-Ons (Optional)
INCLUDED WITH YOUR PURCHASE

Free Ground shipping in the U.S.

FREE

Home Building & Product Ideas Organizer

Sub Total
$0
Free Shipping
Please allow 3-5 business days for delivery of this plan Please check our PDFs NOW collection for plans that can be downloaded and received immediately or live chat us to help you find a similar plan available now.
QUESTIONS OR NEED HELP ORDERING? LIVE CHAT OR CALL US AT 866-214-2242
Plan Packages

Each set of construction documents typically includes detailed, dimensioned floor plans, basic electric layouts, cross sections, roof details, cabinet layouts, and elevations, as well as general IRC specifications. Please refer to the ARCHITECT or DESIGNER’S PLAN DETAILS link above the floor plan on any plan page to determine the specific details for each plan. Our house plans contain virtually all of the information required to construct your home. The typical plan set does not include plumbing, HVAC drawings, or engineering stamps due to the wide variety of specific needs, local codes, and climatic conditions. These details and specifications are easily obtained from your builder, contractors, and/or local engineers.

BEST PRICE GUARANTEE

Find the same house plan (modifications included!) and package for less on another site, show us the URL and we'll give you the difference plus an additional 10% back.

100% SATISFACTION GUARANTEE

We offer a one-time, 30-day exchange policy for unused, printed plan packages in the event you aren't satisfied with your first selection.

 
 

Plan 6098  Back to plan page

Loading...