Get discounts,
promos, see our
newest plans
and more!
+ 15% off any plan
See terms opt out anytime


No Thanks

Thanks for
signing up!


Use Code:

SIGNUP15

And save 15% off any plan!

Check your email for details.

CLOSE
Search Plans
Customer Reviews
     
America’s Top Home Plans
Trusted House Plans From America's Leading Architects & Designers

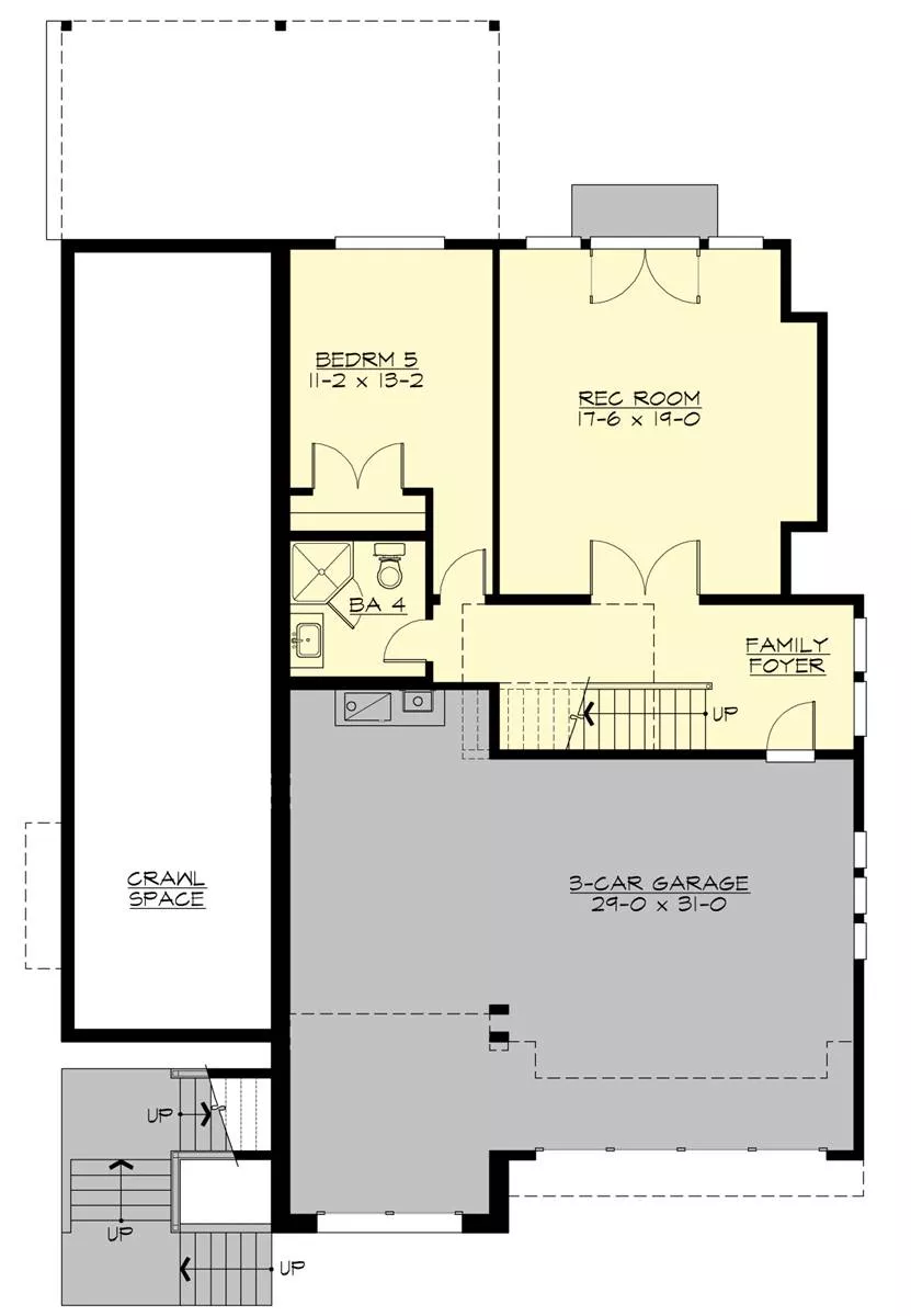
Loganberry 5 Bedroom Craftsman Style House, Plan 7464

 
 

Sq Ft
4,235 FT²

Beds
5

Baths
4

Stories
3

Garage
3

Depth
66'

Width
46'
From
$2,600.00
© copyright by designer
 View All 5 Images | Photographs may reflect modified home
Sq Ft
4,235 FT²
Beds
5
Baths
4
Stories
3
Garage
3
Depth
66'
Width
46'
 
Click to Zoom In on Floor Plan
© copyright by designer
 
 

About This Plan

Spectacularly spacious, this 3-story Craftsman farmhouse style plan is great for ensuring that everyone has room to grow and enjoy the home for years to come, making countless memories along the way. Well suited for a narrow or confined lot, this home focuses on efficient value engineering to provide an enjoyable, towering vertical design, rather than a sprawling estate. To begin, an attached 3-car drive under garage adorns the front and makes for easy access in to the basement level of the home. Here you will find a private bedroom and full bathroom, great to serve as a guest suite, as well as a spacious rec room with a walk out to the covered patio in the back yard. Move upstairs to the main level and you will find the great living spaces that are sure to bring your family together. These areas include the amazing open concept design of the vaulted great room, dining nook, and gourmet kitchen with its 2 walk-in pantries! Also included in this level are some more formal spaces, including a dining room, great for dinner parties and entertaining, and a private den that can function as an office or another guest bedroom, thanks to its attached en-suite. Finally, the third floor houses the remaining bedrooms and living spaces. Here you will find 3 spacious bedrooms and a convenient full hallway bath, as well as a nearby laundry room, making weekend chores a breeze. The prize jewel of this floor resides in the master suite, a luxurious space focused on you and your relaxation. A large bedroom is joined by a spa-style bath with a soaking tub and dual vanities, along with an immense walk-in closet, suitable for even the largest of wardrobes. 

See All Plan Options
 

FEATURES & DETAILS

Kitchen features
Butler's Pantry
Kitchen Island
Nook / Breakfast Area
Peninsula / Eating Bar
Walk-in Pantry
Bedroom features
Double Vanity Sink
Guest Suite
Primary Bdrm Upstairs
Separate Tub and Shower
Walk-in Closet
Exterior features
Covered Front Porch
Covered Rear Porch
Front Porch
Rear Porch
Foundation Options
Daylight Basement
Additional features
Bonus Room
Dining Room
Exercise Room
Family Room
Fireplace
Foyer
Great Room
Home Office
Laundry 2nd Fl
Mud Room
Open Floor Plan
Rec Room
Storage Space
Garage Location
Front
Garage Options
Drive-under
4,235 Ft
2
Total Heated
1,772 Ft
2
1st Floor
1,693 Ft
2
2nd Floor
770 Ft
2
Lower Floor
5
Bedrooms
4
Bathrooms
3
Garage
3
Stories
46' 0"
Width
66' 0"
Depth
28' 0"
Height
9' 0"
Main Floor Ceiling
8' 0"
Upper Floor Ceiling
Truss
Roof Framing
Single
Dwelling Number

Unheated Living Space
825 Ft
2
Garage
 

Plan Package Options

 Select Plan Package
 Need To Reverse Plan? (Optional)
  Select Foundation Option
  Add-Ons (Optional)
INCLUDED WITH YOUR PURCHASE

Free Ground shipping in the U.S.

FREE

Home Building & Product Ideas Organizer

Sub Total
$0
Free Shipping
IMPORTANT NOTE: Due to state regulations, this home is not available for purchase in the State of Washington. Contact us for more information.
QUESTIONS OR NEED HELP ORDERING? LIVE CHAT OR CALL US AT 866-214-2242
Plan Packages

Each set of construction documents typically includes detailed, dimensioned floor plans, basic electric layouts, cross sections, roof details, cabinet layouts, and elevations, as well as general IRC specifications. Please refer to the ARCHITECT or DESIGNER’S PLAN DETAILS link above the floor plan on any plan page to determine the specific details for each plan. Our house plans contain virtually all of the information required to construct your home. The typical plan set does not include plumbing, HVAC drawings, or engineering stamps due to the wide variety of specific needs, local codes, and climatic conditions. These details and specifications are easily obtained from your builder, contractors, and/or local engineers.

BEST PRICE GUARANTEE

Find the same house plan (modifications included!) and package for less on another site, show us the URL and we'll give you the difference plus an additional 10% back.

100% SATISFACTION GUARANTEE

We offer a one-time, 30-day exchange policy for unused, printed plan packages in the event you aren't satisfied with your first selection.

 
 

Plan 7464  Back to plan page

Loading...