Get discounts,
promos, see our
newest plans
and more!
+ 15% off any plan
See terms opt out anytime


No Thanks

Thanks for
signing up!


Use Code:

SIGNUP15

And save 15% off any plan!

Check your email for details.

CLOSE
Search Plans
Customer Reviews
     
20% off ALL House Plans Sitewide
20% off ALL House Plans Sitewide
20% off ALL House Plans Sitewide

Code: LOVE20
Sale ends midnight 2/15/2026 PST

Builder Preferred 3-Story Contemporary Style Duplex House, Plan 8742

 
 

Sq Ft
3,877 FT²

Beds
6

Baths
4.5

Stories
2

Garage
3

Depth
64'

Width
36'
On Sale
$1,551.20
$1,939.00
© copyright by designer
 View All 14 Images | Photographs may reflect modified home
Sq Ft
3,877 FT²
Beds
6
Baths
4.5
Stories
2
Garage
3
Depth
64'
Width
36'
 
Click to Zoom In on Floor Plan
© copyright by designer
 
 

About This Plan

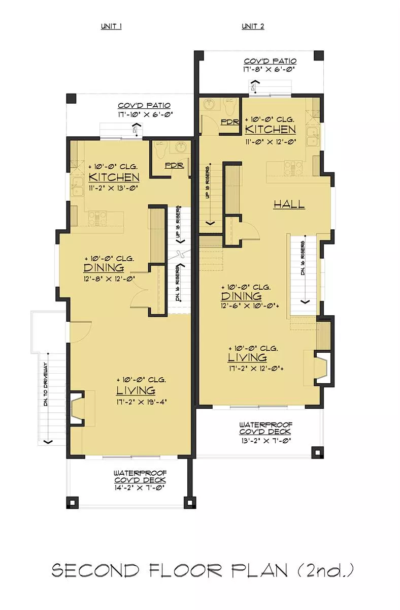
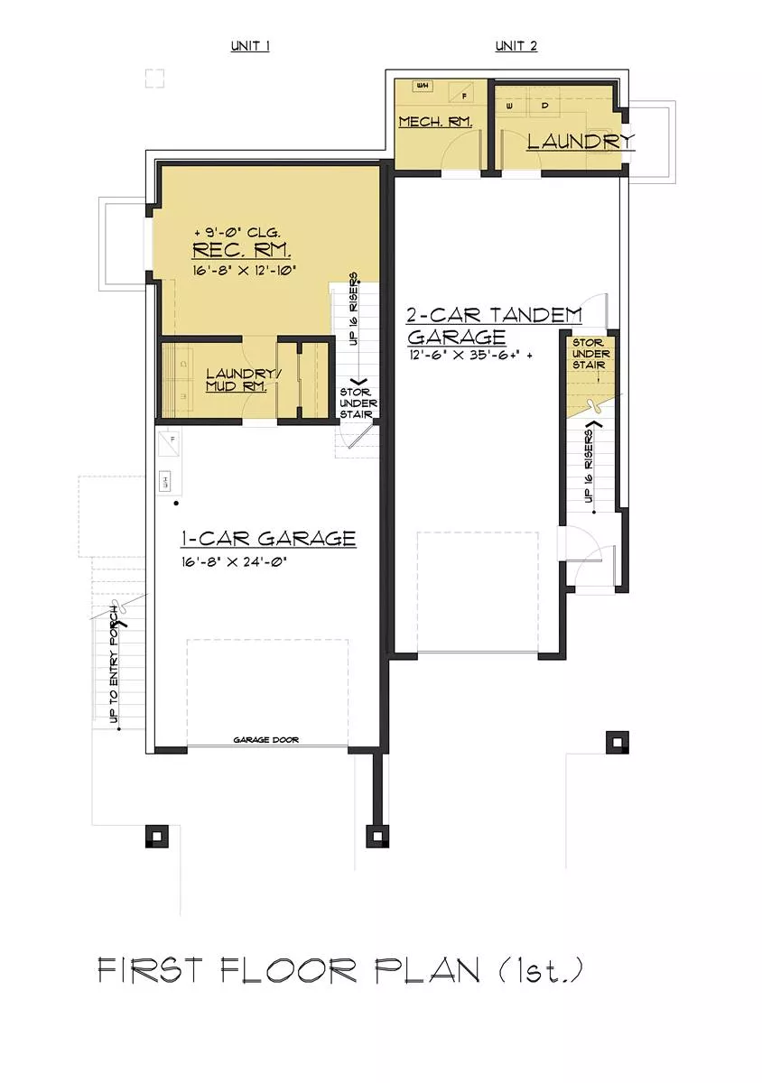
Spectacular styles, spacious floorplans, and the total affordability of a duplex, this convenient contemporary plan is a great find. Featuring two full units, each with three levels, this home does not feel like your traditional duplex. In fact, its spacious layouts of unit 1 with 2,056 s.f. and unit 2 with 1,822 s.f. means that these units are bigger than a lot of single-family homes! Both sides of this plan are identical in their floor plans, featuring 3 bedrooms and 2.5 bathrooms each. You'll also have a full drive-under garage of your own, along with highlights such as a rec room for the kids, a spacious combination of your kitchen and living room on the second floor, and a full-service master suite along with auxiliary bedrooms on the top floor. Plus, each side is packed full of storage, keeping your home clutter free and enjoyable no matter what! 

See All Plan Options
 

FEATURES & DETAILS

Kitchen features
L-Shaped
Nook / Breakfast Area
Bedroom features
Family Style
Primary Bdrm Upstairs
Sitting Area
Walk-in Closet
Exterior features
Covered Front Porch
Covered Rear Porch
Deck
Lot Options
Suited for sloping lot
Additional features
Dining Room
Fireplace
Formal LR
Laundry 1st Fl
Loft / Balcony
Mud Room
Rec Room
Vaulted Ceilings
Garage Location
Under
Garage Options
Drive-under
Front-entry
Tandem
3,878 Ft
2
Total Structure
3,877 Ft
2
Unit Heated
1,649 Ft
2
1st Floor
1,770 Ft
2
2nd Floor
459 Ft
2
Lower Floor
6
Bedrooms
4.5
Bathrooms
3
Garage
2
Stories
36' 0"
Width
64' 0"
Depth
40' 3"
Height
9' 0"
Main Floor Ceiling
10' 0"
Upper Floor Ceiling
9' 0"
Third Floor Ceiling
2x6
Framing
Truss
Roof Framing
4.5/12
Primary Roof Pitch
2/12
Secondary Roof Pitch
Duplex
Dwelling Number
None
Bonus Access

Unheated Living Space
1,041 Ft
2
Garage
214 Ft
2
Deck
 

Plan Package Options

 Select Plan Package
 Need To Reverse Plan? (Optional)
  Select Foundation Option
  Add-Ons (Optional)
INCLUDED WITH YOUR PURCHASE

Free Ground shipping in the U.S.

FREE

Home Building & Product Ideas Organizer

Sub Total
$0
Free Shipping
QUESTIONS OR NEED HELP ORDERING? LIVE CHAT OR CALL US AT 866-214-2242
Plan Packages

Each set of construction documents includes detailed, dimensioned floor plans, basic electric layouts, cross sections, roof details, cabinet layouts and elevations, as well as general IRC specifications. They contain virtually all of the information required to construct your home. The typical plan set does not include any plumbing, HVAC drawings, or engineering stamps due to the wide variety of specific needs, local codes, and climatic conditions. These details and specifications are easily obtained from your builder, contractors, and/or local engineers.

BEST PRICE GUARANTEE

Find the same house plan (modifications included!) and package for less on another site, show us the URL and we'll give you the difference plus an additional 10% back.

100% SATISFACTION GUARANTEE

We offer a one-time, 30-day exchange policy for unused, printed plan packages in the event you aren't satisfied with your first selection.

 
 
 

EXPLORE ARCHITECT PREFERRED PRODUCTS

Hover over arrows for product info!
 

Plan 8742  Back to plan page

Loading...