Get discounts,
promos, see our
newest plans
and more!
+ 15% off any plan
See terms opt out anytime


No Thanks

Thanks for
signing up!


Use Code:

SIGNUP15

And save 15% off any plan!

Check your email for details.

CLOSE
Search Plans
Customer Reviews
     
America’s Top Home Plans
Trusted House Plans From America's Leading Architects & Designers

Sq Ft
2,190 FT²

Beds
3

Baths
2.5

Stories
1

Garage
2

Depth
54' 8"

Width
75' 6"
From
$1,405.00
© copyright by designer
 View All 4 Images | Photographs may reflect modified home
Sq Ft
2,190 FT²
Beds
3
Baths
2.5
Stories
1
Garage
2
Depth
54' 8"
Width
75' 6"
 
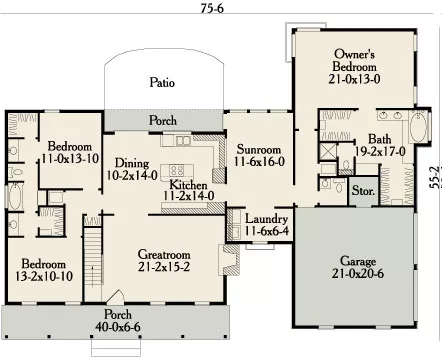
Click to Zoom In on Floor Plan
© copyright by designer
 
 

About This Plan

A simple design with an abundance of space. Large rooms on the main level with stairs leading to unfinished space above to be used as attic or finished space. Bonus space between the kitchen and master bedroom could be used as sunroom, game room, office or extra dining space. 

See All Plan Options
 

FEATURES & DETAILS

Kitchen features
Kitchen Island
Peninsula / Eating Bar
Bedroom features
Double Vanity Sink
His and Hers Primary Closets
Primary Bdrm Upstairs
Separate Tub and Shower
Split Bedrooms
Walk-in Closet
Exterior features
Covered Front Porch
Covered Rear Porch
Screened Porch/Sunroom
Foundation Options
Basement
Crawlspace
Slab
Additional features
Fireplace
Great Room
Laundry 1st Fl
Storage Space
Unfinished Space
Garage Location
Front
Garage Options
Attached
Side-entry
2,190 Ft
2
Total Heated
2,190 Ft
2
1st Floor
3
Bedrooms
2.5
Bathrooms
2
Garage
1
Stories
75' 6"
Width
54' 8"
Depth
8' 0"
Main Floor Ceiling
2x6
Framing
Stick
Roof Framing
10/12
Primary Roof Pitch
Single
Dwelling Number
None
Bonus Access

Unheated Living Space
499 Ft
2
Garage
368 Ft
2
Porch
 

Plan Package Options

 Select Plan Package
 Need To Reverse Plan? (Optional)
  Select Foundation Option
  Add-Ons (Optional)
INCLUDED WITH YOUR PURCHASE

Free Ground shipping in the U.S.

FREE

Home Building & Product Ideas Organizer

Sub Total
$0
Free Shipping
QUESTIONS OR NEED HELP ORDERING? LIVE CHAT OR CALL US AT 866-214-2242
Plan Packages

Each set of construction documents typically includes detailed, dimensioned floor plans, basic electric layouts, cross sections, roof details, cabinet layouts, and elevations, as well as general IRC specifications. Please refer to the ARCHITECT or DESIGNER’S PLAN DETAILS link above the floor plan on any plan page to determine the specific details for each plan. Our house plans contain virtually all of the information required to construct your home. The typical plan set does not include plumbing, HVAC drawings, or engineering stamps due to the wide variety of specific needs, local codes, and climatic conditions. These details and specifications are easily obtained from your builder, contractors, and/or local engineers.

BEST PRICE GUARANTEE

Find the same house plan (modifications included!) and package for less on another site, show us the URL and we'll give you the difference plus an additional 10% back.

100% SATISFACTION GUARANTEE

We offer a one-time, 30-day exchange policy for unused, printed plan packages in the event you aren't satisfied with your first selection.

 
 

Plan 3458  Back to plan page

Loading...