Get discounts,
promos, see our
newest plans
and more!
+ 15% off any plan
See terms opt out anytime


No Thanks

Thanks for
signing up!


Use Code:

SIGNUP15

And save 15% off any plan!

Check your email for details.

CLOSE
Search Plans
     
20% Off House Plans Sitewide Ends Tuesday
20% Off House Plans Sitewide Ends Tuesday
20% Off House Plans Sitewide Ends Tuesday

Code: VET20
Sale ends midnight 11/11/2025 PST

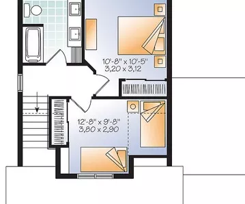
Delphine 2 Bedroom Craftsman Style House, Plan 9689

 
 

Sq Ft
900 FT²

Beds
2

Baths
1.5

Stories
2

Garage
1

Depth
24'

Width
32'
On Sale
$972.00
$1,215.00
© copyright by designer
 View All 4 Images | Photographs may reflect modified home
Sq Ft
900 FT²
Beds
2
Baths
1.5
Stories
2
Garage
1
Depth
24'
Width
32'
 
Click to Zoom In on Floor Plan
© copyright by designer
 
 

About This Plan

Tapered columns with stone supports give this two-story design a Craftsman feel. Welcome guests in the sidelighted foyer, and hang their jackets in the handy coat closet. The powder room allows them to freshen up after a long drive. The combination kitchen/dinette/living room is a nice, cozy spot for entertaining. Sliding glass doors provide outdoor access. Two bedrooms are found on the upper floor, along with a sizable full bath. The home has a modest square footage, making it perfect as a first or second home. Remember that the daylight basement gives you more space to expand.

  

See All Plan Options
 

FEATURES & DETAILS

Bedroom features
Double Vanity Sink
Primary Bdrm Upstairs
Split Bedrooms
Exterior features
Covered Front Porch
Front Porch
Foundation Options
Crawlspace
Daylight Basement
Slab
Walkout Basement
Lot Options
Suited for narrow lot
Additional features
Family Room
Foyer
Laundry 1st Fl
Open Floor Plan
Unfinished Space
Garage Location
Side
Garage Options
Attached
900 Ft
2
Total Heated
480 Ft
2
1st Floor
420 Ft
2
2nd Floor
2
Bedrooms
1.5
Bathrooms
1
Garage
2
Stories
32' 0"
Width
24' 0"
Depth
23' 3"
Height
8' 0"
Main Floor Ceiling
8' 0"
Upper Floor Ceiling
2x6
Framing
Truss
Roof Framing
8/12
Primary Roof Pitch
5/12
Secondary Roof Pitch
10/12
Gable Roof Pitch
Single
Dwelling Number
None
Bonus Access

Unheated Living Space
288 Ft
2
Garage
 

Plan Package Options

 Select Plan Package
Sale: $972
PDF Single Build
$1,215

Digital plans emailed to you in PDF format that allows for printing copies and sharing electronically with contractors, subs, decorators, and more. This package includes a license to build the home one time.

Sale: $972
Sale: $1,084
3 sets + PDF
$1,355
Please allow 3-5 days for delivery
Sale: $1,084
Sale: $1,772
CAD + PDF Single Build
$2,215

CAD files are a complete set of construction drawings delivered electronically. They can be used for any type of modification—including major design changes and engineering—and include a release granting permission to modify the plan. Most CAD plan orders are emailed the same or next business day.
 
This package also comes with a PDF set of plans and a copyright release for making modifications and printing unlimited copies.
 
CAD files are provided in .dwg format. For details on the specific CAD program used, please refer to the PLAN DETAILS section located above the floor plan on each plan’s page.

Sale: $1,772
 Need To Reverse Plan? (Optional)
$250
Readable Reverse

Reverse house plans with readable text and dimensions 

$250
  Select Foundation Option
  Add-Ons (Optional)
INCLUDED WITH YOUR PURCHASE

Free Ground shipping in the Continental U.S.

FREE

Design consultation with the architect or designer to discuss your plan

Home Building & Product Ideas Organizer

Sub Total
$0
Free Shipping
Please allow 3-5 business days for delivery of this plan Please check our PDFs NOW collection for plans that can be downloaded and received immediately or live chat us to help you find a similar plan available now.
QUESTIONS OR NEED HELP ORDERING? LIVE CHAT OR CALL US AT 866-214-2242
Plan Packages

Each set of construction documents includes detailed, dimensioned floor plans, basic electric layouts, cross sections, roof details, cabinet layouts and elevations, as well as general IRC specifications. They contain virtually all of the information required to construct your home. The typical plan set does not include any plumbing, HVAC drawings, or engineering stamps due to the wide variety of specific needs, local codes, and climatic conditions. These details and specifications are easily obtained from your builder, contractors, and/or local engineers.

BEST PRICE GUARANTEE

find the same house plan (modifications included!) and package for less on another site, show us the URL and we'll give you the difference plus an additional 5% back.

100% SATISFACTION GUARANTEE

We offer a one-time, 30-day exchange policy for unused, non-electronic plan packages in the event you aren't satisfied with your first selection.

 
 

Plan 9689  Back to plan page

Loading...