Get discounts,
promos, see our
newest plans
and more!
+ 15% off any plan
See terms opt out anytime


No Thanks

Thanks for
signing up!


Use Code:

SIGNUP15

And save 15% off any plan!

Check your email for details.

CLOSE
Search Plans
Customer Reviews
     
20% off ALL House Plans Sitewide
20% off ALL House Plans Sitewide
20% off ALL House Plans Sitewide

Code: SAVE20
Sale ends midnight 5/13/2026 PST

Sq Ft
4,137 FT²

Beds
4

Baths
3.5

Stories
2

Garage
3

Depth
79' 10"

Width
82' 2"
On Sale
$2,200.00
$2,750.00
© copyright by designer
 View All 6 Images | Photographs may reflect modified home
Sq Ft
4,137 FT²
Beds
4
Baths
3.5
Stories
2
Garage
3
Depth
79' 10"
Width
82' 2"
 
Click to Zoom In on Floor Plan
© copyright by designer
 
 

About This Plan

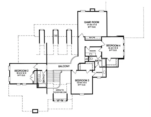
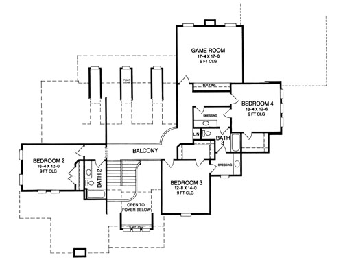
Cottage styling gives this large executive home warmth and curb side appeal. Inside, the two story Living Room boasts a Romeo balcony overlook and a clear vista to the rear yard. The Kitchen, Breakfast Room and Family Room are efficiently grouped and provide an oversize, roomy area for food preparation, family activities and dining. The formal Dining Room is accented by a tray ceiling. Located off the two story Foyer, the Study/Home Office features a cozy fireplace and a stunning 14 foot vaulted ceiling. The Master Suite has all the luxuries including a 12 foot tray ceiling and sumptuous Master Bath with his and hers vanities, shower, corner whirlpool tub and his and hers walk in closets. Upstairs, Bedroom 2 features a private Bath. Bedrooms 3 and 4 share a Bath but each has its own vanity/dressing area. A large Game Room completes the plan. 

See All Plan Options
 

FEATURES & DETAILS

Kitchen features
Kitchen Island
Nook / Breakfast Area
Peninsula / Eating Bar
Walk-in Pantry
Bedroom features
Double Vanity Sink
His and Hers Primary Closets
Primary Bdrm Main Floor
Separate Tub and Shower
Walk-in Closet
Exterior features
Covered Front Porch
Covered Rear Porch
Front Porch
Rear Porch
Foundation Options
Basement
Crawlspace
Slab
Lot Options
Suited for corner lot
Additional features
2 Story Volume
Arches
Dining Room
Family Room
Fireplace
Formal LR
Foyer
Home Office
Laundry 1st Fl
Library/Media Rm
Loft / Balcony
Open Floor Plan
Rec Room
Vaulted Ceilings
Garage Location
Rear
Garage Options
Attached
Side-entry
4,137 Ft
2
Total Heated
2,666 Ft
2
1st Floor
1,471 Ft
2
2nd Floor
4
Bedrooms
3.5
Bathrooms
3
Garage
2
Stories
82' 2"
Width
79' 10"
Depth
30' 0"
Height
10' 0"
Main Floor Ceiling
9' 0"
Upper Floor Ceiling
2x4
Framing
Stick
Roof Framing
10/12
Primary Roof Pitch
12/12
Secondary Roof Pitch
Single
Dwelling Number

Unheated Living Space
741 Ft
2
Garage
270 Ft
2
Porch
 

Plan Package Options

 Select Plan Package
 Need To Reverse Plan? (Optional)
  Select Foundation Option
  Add-Ons (Optional)
INCLUDED WITH YOUR PURCHASE

Free Ground shipping in the U.S.

FREE

Home Building & Product Ideas Organizer

Sub Total
$0
Free Shipping
QUESTIONS OR NEED HELP ORDERING? LIVE CHAT OR CALL US AT 866-214-2242
Plan Packages

Each set of construction documents typically includes detailed, dimensioned floor plans, basic electric layouts, cross sections, roof details, cabinet layouts, and elevations, as well as general IRC specifications. Please refer to the ARCHITECT or DESIGNER’S PLAN DETAILS link above the floor plan on any plan page to determine the specific details for each plan. Our house plans contain virtually all of the information required to construct your home. The typical plan set does not include plumbing, HVAC drawings, or engineering stamps due to the wide variety of specific needs, local codes, and climatic conditions. These details and specifications are easily obtained from your builder, contractors, and/or local engineers.

BEST PRICE GUARANTEE

Find the same house plan (modifications included!) and package for less on another site, show us the URL and we'll give you the difference plus an additional 10% back.

100% SATISFACTION GUARANTEE

We offer a one-time, 30-day exchange policy for unused, printed plan packages in the event you aren't satisfied with your first selection.

 
 

Plan 8359  Back to plan page

Loading...