Get discounts,
promos, see our
newest plans
and more!
+ 15% off any plan
See terms opt out anytime


No Thanks

Thanks for
signing up!


Use Code:

SIGNUP15

And save 15% off any plan!

Check your email for details.

CLOSE
Search Plans
Customer Reviews
     
20% off ALL House Plans Sitewide
20% off ALL House Plans Sitewide
20% off ALL House Plans Sitewide

Code: SAVE20
Sale ends midnight 5/13/2026 PST

Nova Edge | 2 Bedroom Contemporary Style House, Plan 10864

 
 

Sq Ft
1,387 FT²

Beds
2

Baths
2.5

Stories
2

Garage
1

Depth
51' 6"

Width
24'
On Sale
$1,400.00
$1,750.00
© copyright by designer
 View All 57 Images | Photographs may reflect modified home
Sq Ft
1,387 FT²
Beds
2
Baths
2.5
Stories
2
Garage
1
Depth
51' 6"
Width
24'
 
Click to Zoom In on Floor Plan
© copyright by designer
 
 

About This Plan

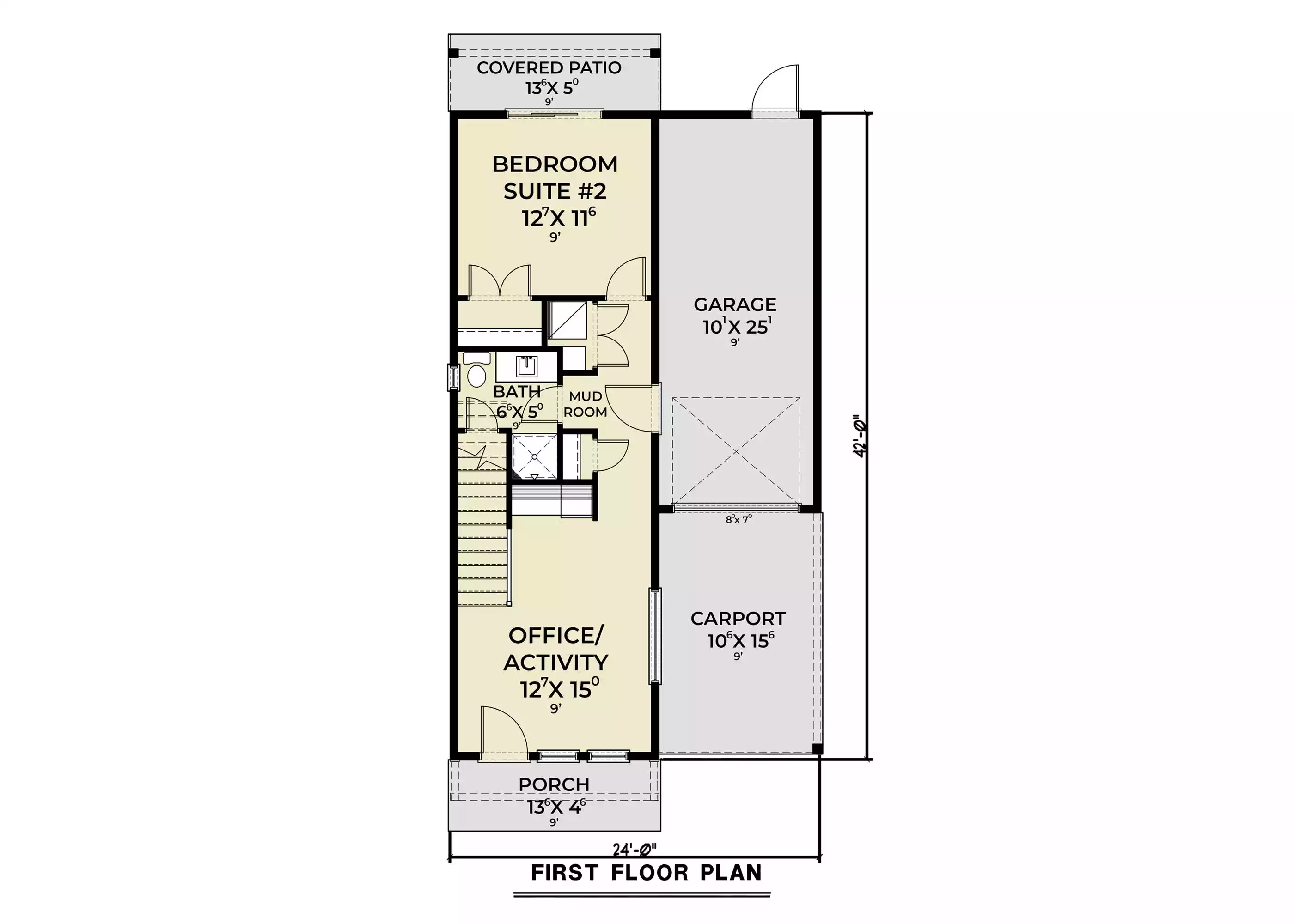
Meet Nova Edge, a 2-bedroom, 2-bathroom contemporary house plan that redefines small-space living with sleek modern lines and architectural flair. Designed at 1,387 square feet, this home stands out with its sloped ceilings, dramatic roofline, and thoughtfully open layout. The main level features a great room and kitchen that flow effortlessly together, anchored by a central island perfect for entertaining. A bedroom and full bath on this floor add flexibility for guests or a home office. Upstairs, the private primary suite offers peaceful retreat vibes with a walk-in closet and ensuite bathroom. Large windows and clerestory details bring in natural light throughout. Perfect for urban lots, Nova Edge delivers big design in a compact, contemporary footprint. 

See All Plan Options
 

FEATURES & DETAILS

Kitchen features
Kitchen Island
Peninsula / Eating Bar
Bedroom features
Guest Suite
Primary Bdrm Upstairs
Split Bedrooms
Walk-in Closet
Exterior features
Covered Front Porch
Front Porch
Outdoor Living Space
Rear Porch
Lot Options
Suited for view lot
Additional features
Dining Room
Great Room
Home Office
Laundry 1st Fl
Laundry 2nd Fl
Loft / Balcony
Open Floor Plan
Rec Room
Vaulted Ceilings
Vaulted Great Room/Living
Garage Location
Front
Garage Options
Attached
Carport
Front-entry
1,660 Ft
2
Total Structure
1,387 Ft
2
Total Heated
526 Ft
2
1st Floor
861 Ft
2
2nd Floor
2
Bedrooms
2.5
Bathrooms
1
Garage
2
Stories
24'
Width
51'
Depth
27'
Height
9' 0"
Main Floor Ceiling
9' 0"
Upper Floor Ceiling
2x6
Framing
Truss
Roof Framing
4/12
Primary Roof Pitch
Single
Dwelling Number

Unheated Living Space
273 Ft
2
Garage
61 Ft
2
Front Porch
54 Ft
2
Deck
 

Plan Package Options

 Select Plan Package
 Need To Reverse Plan? (Optional)
  Select Foundation Option
  Add-Ons (Optional)
INCLUDED WITH YOUR PURCHASE

Free Ground shipping in the U.S.

FREE

Home Building & Product Ideas Organizer

Sub Total
$0
Free Shipping
QUESTIONS OR NEED HELP ORDERING? LIVE CHAT OR CALL US AT 866-214-2242
Plan Packages

Each set of construction documents typically includes detailed, dimensioned floor plans, basic electric layouts, cross sections, roof details, cabinet layouts, and elevations, as well as general IRC specifications. Please refer to the ARCHITECT or DESIGNER’S PLAN DETAILS link above the floor plan on any plan page to determine the specific details for each plan. Our house plans contain virtually all of the information required to construct your home. The typical plan set does not include plumbing, HVAC drawings, or engineering stamps due to the wide variety of specific needs, local codes, and climatic conditions. These details and specifications are easily obtained from your builder, contractors, and/or local engineers.

BEST PRICE GUARANTEE

Find the same house plan (modifications included!) and package for less on another site, show us the URL and we'll give you the difference plus an additional 10% back.

100% SATISFACTION GUARANTEE

We offer a one-time, 30-day exchange policy for unused, printed plan packages in the event you aren't satisfied with your first selection.

 
 

Plan 10864  Back to plan page

Loading...