Get discounts,
promos, see our
newest plans
and more!
+ 15% off any plan
See terms opt out anytime


No Thanks

Thanks for
signing up!


Use Code:

SIGNUP15

And save 15% off any plan!

Check your email for details.

CLOSE
Search Plans
Customer Reviews
     
22% Off House Plans Sitewide Ends Sunday

Code: SAVE22
Sale ends midnight 12/7/2025 PST

Sq Ft
2,579 FT²

Beds
3

Baths
3

Stories
1.5

Garage
2

Depth
68' 2"

Width
59' 8"
From
$1,155.00
© copyright by architect
 View All 5 Images | Photographs may reflect modified home
Sq Ft
2,579 FT²
Beds
3
Baths
3
Stories
1.5
Garage
2
Depth
68' 2"
Width
59' 8"
 
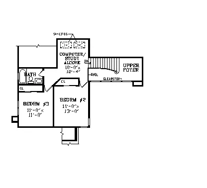
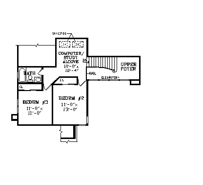
Click to Zoom In on Floor Plan
© copyright by architect
 
 

About This Plan

Graced by skylights and clerestory windows, this bright and airy home is filled with sunny spaces.

The skylighted foyer boasts a 12-ft. sloped ceiling and showcases a sunstreaked open-railed stairway.

Off the foyer, the intimate sunken living room features a 16-ft. cathedral ceiling and tall corner windows. Defined by columns and rails, the adjacent formal dining room is enhanced by an elegant 12-ft. stepped ceiling.

The skylighted island kitchen includes a sunny breakfast space, which is separated from the family room by a half-wall. Expanded by a skylighted 16-ft. cathedral ceiling, the family room offers a handsome fireplace and access to a sunken rear sun room.

The deluxe master suite is graced by a stepped ceiling, a bayed sitting room and a private bath. Sliding glass doors open to the sun room, which boasts an 11-ft., 7-in. vaulted ceiling.

Two more bedrooms, a study alcove and a full bath are found upstairs. 

See All Plan Options
 

FEATURES & DETAILS

Kitchen features
Kitchen Island
Nook / Breakfast Area
Bedroom features
Double Vanity Sink
Guest Suite
Primary Bdrm Main Floor
Separate Tub and Shower
Sitting Area
Walk-in Closet
Exterior features
Covered Front Porch
Screened Porch/Sunroom
Foundation Options
Basement
Crawlspace
Slab
Additional features
2 Story Volume
Family Room
Fireplace
Formal LR
Home Office
In-law Suite
Laundry 1st Fl
Loft / Balcony
Mud Room
Vaulted Ceilings
Garage Location
Side
Garage Options
Attached
2,579 Ft
2
Total Heated
1,959 Ft
2
1st Floor
544 Ft
2
2nd Floor
3
Bedrooms
3
Bathrooms
2
Garage
1.5
Stories
59' 8"
Width
68' 2"
Depth
27' 0"
Height
8'-1"' 0"
Main Floor Ceiling
8'-1"' 0"
Upper Floor Ceiling
2x4
Framing
Stick
Roof Framing
5/12
Primary Roof Pitch
9/ 12
Secondary Roof Pitch
Single
Dwelling Number

Unheated Living Space
482 Ft
2
Garage
202 Ft
2
Bonus Room
 

Plan Package Options

 Select Plan Package
$875
PDF Bid Set
PDFs NOW!™

Home plans stamped "NOT FOR CONSTRUCTION" for cost estimating and bidding purposes only; a minimum 5 set plan package must be purchased within 90 days for a license to build plan set; a credit will be applied towards your house plan upgrade

$875
$1,155
PDF Single Build
PDFs NOW!™

Digital plans emailed to you in PDF format that allows for printing copies and sharing electronically with contractors, subs, decorators, and more. This package includes a license to build the home one time.

$1,155
$1,265
5 Printed Sets

Five Printed Sets of Residential Construction Drawings are typically 24” x 36” documents and come with a license to construct a single residence shipped to a physical address. Keep in mind PDF Plan Packages are our most popular choice which allows you to print as many copies as you need and to electronically send files to your builder, subcontractors, etc.

$1,265
$1,340
8 Printed Sets

Eight Printed Sets of Construction Drawings, typically 24” x 36” documents, with a license to construct a single residence shipped to your physical address. PDF Plan Packages are our most popular choice which allows you to print as many copies as you need and to electronically send files to your builder, subcontractors, bank/mortgage reps, material stores, decorators and more.

$1,340
  Select Foundation Option
  Add-Ons (Optional)
INCLUDED WITH YOUR PURCHASE

Free Ground shipping in the Continental U.S.

FREE

Design consultation with the architect or designer to discuss your plan

Home Building & Product Ideas Organizer

Sub Total
$0
Free Shipping
QUESTIONS OR NEED HELP ORDERING? LIVE CHAT OR CALL US AT 866-214-2242
Plan Packages

Each set of construction documents includes detailed, dimensioned floor plans, basic electric layouts, cross sections, roof details, cabinet layouts and elevations, as well as general IRC specifications. They contain virtually all of the information required to construct your home. The typical plan set does not include any plumbing, HVAC drawings, or engineering stamps due to the wide variety of specific needs, local codes, and climatic conditions. These details and specifications are easily obtained from your builder, contractors, and/or local engineers.

BEST PRICE GUARANTEE

find the same house plan (modifications included!) and package for less on another site, show us the URL and we'll give you the difference plus an additional 5% back.

100% SATISFACTION GUARANTEE

We offer a one-time, 30-day exchange policy for unused, non-electronic plan packages in the event you aren't satisfied with your first selection.

 
 

Plan 3790  Back to plan page

Loading...