Get discounts,
promos, see our
newest plans
and more!
+ 15% off any plan
See terms opt out anytime


No Thanks

Thanks for
signing up!


Use Code:

SIGNUP15

And save 15% off any plan!

Check your email for details.

CLOSE
Search Plans
Customer Reviews
     
15% off ALL House Plans Sitewide
15% off ALL House Plans Sitewide
15% off ALL House Plans Sitewide

Code: SAVE15
Sale ends midnight 4/19/2026 PST

Sq Ft
2,764 FT²

Beds
4

Baths
3

Stories
1.5

Garage
2

Depth
52' 8"

Width
69'
On Sale
$994.50
$1,170.00
© copyright by architect
 View All 10 Images | Photographs may reflect modified home
Sq Ft
2,764 FT²
Beds
4
Baths
3
Stories
1.5
Garage
2
Depth
52' 8"
Width
69'
 
Click to Zoom In on Floor Plan
© copyright by architect
 
 

About This Plan

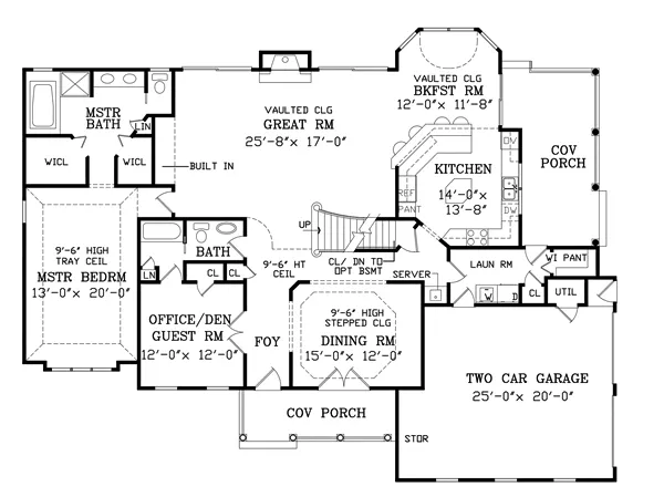
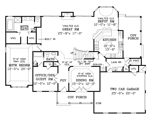
The huge great room, with a dramatic vaulted ceiling that stretches up to an overlooking loft is the centerpiece of this design. Enhancing the space is its' openness to the breakfast room and island kitchen, as well as a striking fireplace and easy backyard access. Note the angled snack counter in the spacious, gourmet kitchen, which is mirrored in the angled rear bay of the breakfast room; and then there's the cozy covered side porch - a great place for that morning cup of coffe or afternoon snack.

The office/den could double as guest room with private bath.

The private first floor master bedroom offers a beautiful front bay, an elegant tray ceiling and a spacious private bath with twin walk-in closets. Also note the oversized garage and the expansion bonus space on the second floor. 

See All Plan Options
 

FEATURES & DETAILS

Kitchen features
Butler's Pantry
Kitchen Island
Nook / Breakfast Area
Peninsula / Eating Bar
Walk-in Pantry
Bedroom features
Double Vanity Sink
Guest Suite
His and Hers Primary Closets
Primary Bdrm Main Floor
Separate Tub and Shower
Exterior features
Covered Front Porch
Covered Rear Porch
Foundation Options
Basement
Crawlspace
Slab
Lot Options
Suited for view lot
Additional features
Bonus Room
Dining Room
Fireplace
Foyer
Great Room
Home Office
In-law Suite
Laundry 1st Fl
Loft / Balcony
Open Floor Plan
Storage Space
Unfinished Space
Vaulted Ceilings
Garage Location
Side
Garage Options
Attached
2,764 Ft
2
Total Heated
2,118 Ft
2
1st Floor
646 Ft
2
2nd Floor
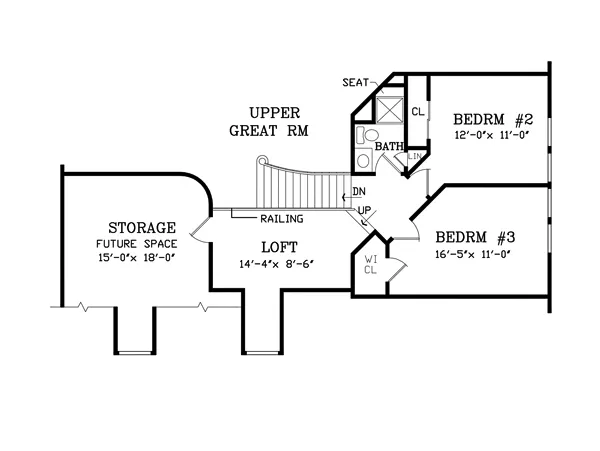
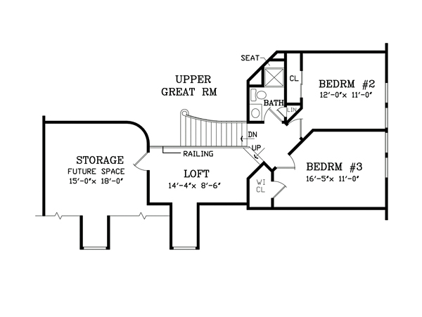
4
Bedrooms
3
Bathrooms
2
Garage
1.5
Stories
69' 0"
Width
52' 8"
Depth
24' 6"
Height
9.5' 0"
Main Floor Ceiling
9.5' 0"
Upper Floor Ceiling
2x4
Framing
Stick
Roof Framing
9/12
Primary Roof Pitch
Single
Dwelling Number
2nd Floor
Bonus Access

Unheated Living Space
497 Ft
2
Garage
250 Ft
2
Bonus Room
 

Plan Package Options

 Select Plan Package
 Need To Reverse Plan? (Optional)
  Select Foundation Option
  Add-Ons (Optional)
INCLUDED WITH YOUR PURCHASE

Free Ground shipping in the U.S.

FREE

Home Building & Product Ideas Organizer

Sub Total
$0
Free Shipping
QUESTIONS OR NEED HELP ORDERING? LIVE CHAT OR CALL US AT 866-214-2242
Plan Packages

Each set of construction documents typically includes detailed, dimensioned floor plans, basic electric layouts, cross sections, roof details, cabinet layouts, and elevations, as well as general IRC specifications. Please refer to the ARCHITECT or DESIGNER’S PLAN DETAILS link above the floor plan on any plan page to determine the specific details for each plan. Our house plans contain virtually all of the information required to construct your home. The typical plan set does not include plumbing, HVAC drawings, or engineering stamps due to the wide variety of specific needs, local codes, and climatic conditions. These details and specifications are easily obtained from your builder, contractors, and/or local engineers.

BEST PRICE GUARANTEE

Find the same house plan (modifications included!) and package for less on another site, show us the URL and we'll give you the difference plus an additional 10% back.

100% SATISFACTION GUARANTEE

We offer a one-time, 30-day exchange policy for unused, printed plan packages in the event you aren't satisfied with your first selection.

 
 

Plan 3703  Back to plan page

Loading...