Get discounts,
promos, see our
newest plans
and more!
+ 15% off any plan
See terms opt out anytime


No Thanks

Thanks for
signing up!


Use Code:

SIGNUP15

And save 15% off any plan!

Check your email for details.

CLOSE
Search Plans
     

Sq Ft
1,745 FT²

Beds
3

Baths
2

Stories
1

Garage
2

Depth
47'

Width
72'
From
$1,260.00
© copyright by designer
 View All 5 Images | Photographs may reflect modified home
Sq Ft
1,745 FT²
Beds
3
Baths
2
Stories
1
Garage
2
Depth
47'
Width
72'
 
Click to Zoom In on Floor Plan
© copyright by designer
 
 

About This Plan

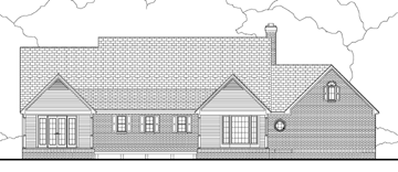
Exceptional styling for the exterior of this traditional design accompanied by an exciting interior. A cathedral ceiling covers the great room, kitchen and dining room. Tucked away near the kitchen is a desk for easy access but hidden from sight. The master suite has a private porch accessed from french doors. 

See All Plan Options
 

FEATURES & DETAILS

Kitchen features
Nook / Breakfast Area
Peninsula / Eating Bar
Bedroom features
Primary Bdrm Main Floor
Walk-in Closet
Exterior features
Covered Front Porch
Covered Rear Porch
Foundation Options
Basement
Crawlspace
Slab
Additional features
Fireplace
Great Room
Home Office
Laundry 1st Fl
Unfinished Space
Vaulted Ceilings
Garage Location
Side
Garage Options
Attached
Side-entry
1,745 Ft
2
Total Heated
3
Bedrooms
2
Bathrooms
2
Garage
1
Stories
72' 0"
Width
47' 0"
Depth
23' 0"
Height
8' 0"
Main Floor Ceiling
2x4
Framing
Stick
Roof Framing
10/12
Primary Roof Pitch
Single
Dwelling Number
2nd Floor
Bonus Access

Unheated Living Space
559 Ft
2
Garage
435 Ft
2
Porch
741 Ft
2
Bonus Room
 

Plan Package Options

 Select Plan Package
$1,260
PDF Single Build
PDFs NOW!™

Digital plans emailed to you in PDF format that allows for printing copies and sharing electronically with contractors, subs, decorators, and more. This package includes a license to build the home one time.

$1,260
$1,605
5 Printed Sets

Five Printed Sets of Residential Construction Drawings are typically 24” x 36” documents and come with a license to construct a single residence shipped to a physical address. Keep in mind PDF Plan Packages are our most popular choice which allows you to print as many copies as you need and to electronically send files to your builder, subcontractors, etc.

$1,605
$1,780
5 Printed Sets + PDF
PDFs NOW!™

Digital plan emailed to you in PDF format that allows for printing copies on a home printer or local print shop and sharing with contractors, subs, decorators, and more. PLUS five printed sets shipped and delivered 3-5 business days.

$1,780
$2,165
CAD + PDF Single Build

CAD files are a complete set of construction drawings delivered electronically. They can be used for any type of modification—including major design changes and engineering—and include a release granting permission to modify the plan. Most CAD plan orders are emailed the same or next business day.
 
This package also comes with a PDF set of plans and a copyright release for making modifications and printing unlimited copies.
 
CAD files are provided in .dwg format. For details on the specific CAD program used, please refer to the PLAN DETAILS section located above the floor plan on each plan’s page.

$2,165
 Need To Reverse Plan? (Optional)
$300
Readable Reverse

Reverse house plans with readable text and dimensions 

$300
  Select Foundation Option
  Add-Ons (Optional)
INCLUDED WITH YOUR PURCHASE

Free Ground shipping in the Continental U.S.

FREE

Design consultation with the architect or designer to discuss your plan

Home Building & Product Ideas Organizer

Sub Total
$0
Free Shipping
QUESTIONS OR NEED HELP ORDERING? LIVE CHAT OR CALL US AT 866-214-2242
Plan Packages

Each set of construction documents includes detailed, dimensioned floor plans, basic electric layouts, cross sections, roof details, cabinet layouts and elevations, as well as general IRC specifications. They contain virtually all of the information required to construct your home. The typical plan set does not include any plumbing, HVAC drawings, or engineering stamps due to the wide variety of specific needs, local codes, and climatic conditions. These details and specifications are easily obtained from your builder, contractors, and/or local engineers.

BEST PRICE GUARANTEE

find the same house plan (modifications included!) and package for less on another site, show us the URL and we'll give you the difference plus an additional 5% back.

100% SATISFACTION GUARANTEE

We offer a one-time, 30-day exchange policy for unused, non-electronic plan packages in the event you aren't satisfied with your first selection.

 
 

Plan 3478  Back to plan page

Loading...