Get discounts,
promos, see our
newest plans
and more!
+ 15% off any plan
See terms opt out anytime


No Thanks

Thanks for
signing up!


Use Code:

SIGNUP15

And save 15% off any plan!

Check your email for details.

CLOSE
Search Plans
Customer Reviews
     
15% Off House Plans Sitewide Ends Sunday
15% Off House Plans Sitewide Ends Sunday
15% Off House Plans Sitewide Ends Sunday

Code: SAVE15
Sale ends midnight 1/25/2026 PST

Sq Ft
2,111 FT²

Beds
4

Baths
2.5

Stories
1.5

Garage
2

Depth
64'

Width
40' 6"
On Sale
$1,020.00
$1,200.00
© copyright by designer
 View All 6 Images | Photographs may reflect modified home
Sq Ft
2,111 FT²
Beds
4
Baths
2.5
Stories
1.5
Garage
2
Depth
64'
Width
40' 6"
 
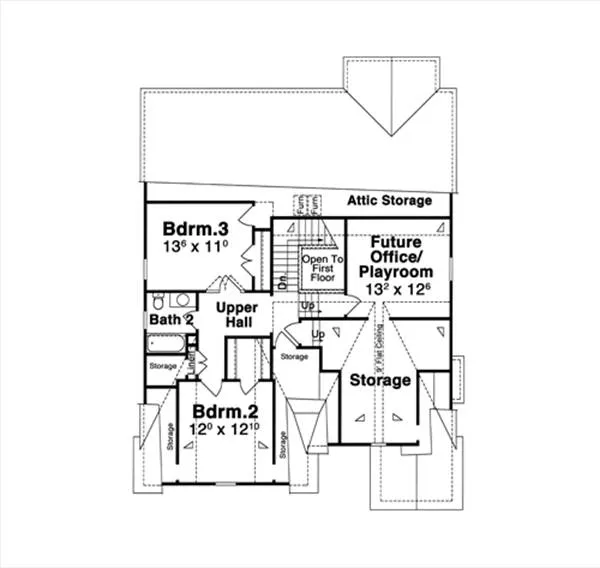
Click to Zoom In on Floor Plan
© copyright by designer
 
 

About This Plan

With eye-catching gables and nostalgic details, its easy to see why this is one of our most-requested home plans. The 2,111-square-foot floor plans begin with the versatile living room, warmed by a fireplace. The island kitchen includes cabinet towers for storage. The adjacent breakfast nook is sunny and inviting. The main-floor master suite boasts a well-appointed private bath. There is plenty of storage space upstairs, where a future office could serve as a playroom.
 

See All Plan Options
 

FEATURES & DETAILS

Kitchen features
Kitchen Island
Nook / Breakfast Area
Bedroom features
Double Vanity Sink
His and Hers Primary Closets
Primary Bdrm Main Floor
Separate Tub and Shower
Walk-in Closet
Exterior features
Covered Front Porch
Front Porch
Foundation Options
Basement
Slab
Lot Options
Suited for narrow lot
Additional features
Bonus Room
Dining Room
Fireplace
Formal LR
Great Room
Home Office
Laundry 1st Fl
Loft / Balcony
Open Floor Plan
Storage Space
Unfinished Space
Vaulted Ceilings
Garage Location
Front
Garage Options
Attached
Front-entry
2,111 Ft
2
Total Heated
1,541 Ft
2
1st Floor
570 Ft
2
2nd Floor
4
Bedrooms
2.5
Bathrooms
2
Garage
1.5
Stories
40' 6"
Width
64' 0"
Depth
23' 8"
Height
9' 0"
Main Floor Ceiling
8' 0"
Upper Floor Ceiling
2x4
Framing
Stick
Roof Framing
14/12
Primary Roof Pitch
10/12
Secondary Roof Pitch
Single
Dwelling Number

Unheated Living Space
415 Ft
2
Garage
219 Ft
2
Storage
42 Ft
2
Porch
147 Ft
2
Patio
337 Ft
2
Bonus Room
 

Plan Package Options

 Select Plan Package
  Select Foundation Option
  Add-Ons (Optional)
INCLUDED WITH YOUR PURCHASE

Free Ground shipping in the U.S.

FREE

Home Building & Product Ideas Organizer

Sub Total
$0
Free Shipping
QUESTIONS OR NEED HELP ORDERING? LIVE CHAT OR CALL US AT 866-214-2242
Plan Packages

Each set of construction documents includes detailed, dimensioned floor plans, basic electric layouts, cross sections, roof details, cabinet layouts and elevations, as well as general IRC specifications. They contain virtually all of the information required to construct your home. The typical plan set does not include any plumbing, HVAC drawings, or engineering stamps due to the wide variety of specific needs, local codes, and climatic conditions. These details and specifications are easily obtained from your builder, contractors, and/or local engineers.

BEST PRICE GUARANTEE

Find the same house plan (modifications included!) and package for less on another site, show us the URL and we'll give you the difference plus an additional 10% back.

100% SATISFACTION GUARANTEE

We offer a one-time, 30-day exchange policy for unused, printed plan packages in the event you aren't satisfied with your first selection. Exchanges are subject to a 20% restocking fee.

 
 

Plan 8997  Back to plan page

Loading...