Get discounts,
promos, see our
newest plans
and more!
+ 15% off any plan
See terms opt out anytime


No Thanks

Thanks for
signing up!


Use Code:

SIGNUP15

And save 15% off any plan!

Check your email for details.

CLOSE
Search Plans
Customer Reviews
     
America’s Top Home Plans
Trusted House Plans From America's Leading Architects & Designers

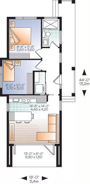
Ariel 2 Bedroom Contemporary Style House, Plan 9691

 
 

Sq Ft
631 FT²

Beds
2

Baths
1

Stories
1

Garage
0

Depth
44'

Width
18'
From
$1,270.00
© copyright by designer
 View All 4 Images | Photographs may reflect modified home
Sq Ft
631 FT²
Beds
2
Baths
1
Stories
1
Garage
0
Depth
44'
Width
18'
 
Click to Zoom In on Floor Plan
© copyright by designer
 
 

About This Plan

This contemporary one-story design boasts striking lines. The home's narrow width makes it suitable for virtually any lot. The family room and kitchen flow together for a cozy living space. A bright bath and two bedrooms round out the floor plan. Note the porches on two sides of the home. 

See All Plan Options
 

FEATURES & DETAILS

Kitchen features
Kitchen Island
Bedroom features
Primary Bdrm Main Floor
Nursery Room
Exterior features
Covered Front Porch
Covered Rear Porch
Deck
Front Porch
Rear Porch
Foundation Options
Crawlspace
Slab
Lot Options
Suited for narrow lot
Additional features
Family Room
Laundry 1st Fl
Garage Location
None
Garage Options
None
631 Ft
2
Total Heated
631 Ft
2
1st Floor
2
Bedrooms
1
Bathrooms
0
Garage
1
Stories
18' 0"
Width
44' 0"
Depth
12' 4"
Height
9' 0"
Main Floor Ceiling
2x6
Framing
Truss
Roof Framing
0/12
Primary Roof Pitch
Single
Dwelling Number
None
Bonus Access

Unheated Living Space
 

Plan Package Options

 Select Plan Package
 Need To Reverse Plan? (Optional)
  Select Foundation Option
  Add-Ons (Optional)
INCLUDED WITH YOUR PURCHASE

Free Ground shipping in the U.S.

FREE

Home Building & Product Ideas Organizer

Sub Total
$0
Free Shipping
Please allow 3-5 business days for delivery of this plan Please check our PDFs NOW collection for plans that can be downloaded and received immediately or live chat us to help you find a similar plan available now.
QUESTIONS OR NEED HELP ORDERING? LIVE CHAT OR CALL US AT 866-214-2242
Plan Packages

Each set of construction documents typically includes detailed, dimensioned floor plans, basic electric layouts, cross sections, roof details, cabinet layouts, and elevations, as well as general IRC specifications. Please refer to the ARCHITECT or DESIGNER’S PLAN DETAILS link above the floor plan on any plan page to determine the specific details for each plan. Our house plans contain virtually all of the information required to construct your home. The typical plan set does not include plumbing, HVAC drawings, or engineering stamps due to the wide variety of specific needs, local codes, and climatic conditions. These details and specifications are easily obtained from your builder, contractors, and/or local engineers.

BEST PRICE GUARANTEE

Find the same house plan (modifications included!) and package for less on another site, show us the URL and we'll give you the difference plus an additional 10% back.

100% SATISFACTION GUARANTEE

We offer a one-time, 30-day exchange policy for unused, printed plan packages in the event you aren't satisfied with your first selection.

 
 

Plan 9691  Back to plan page

Loading...