Get discounts,
promos, see our
newest plans
and more!
+ 15% off any plan
See terms opt out anytime


No Thanks

Thanks for
signing up!


Use Code:

SIGNUP15

And save 15% off any plan!

Check your email for details.

CLOSE
Search Plans
Customer Reviews
     
15% off ALL House Plans Sitewide
15% off ALL House Plans Sitewide
15% off ALL House Plans Sitewide

Code: HONOR
Sale ends midnight 5/29/2026 PST

Alexandra | Luxury European Style House, Plan 9326

 
 

Sq Ft
6,092 FT²

Beds
6

Baths
6.5

Stories
2

Garage
4

Depth
88'

Width
76'
On Sale
$2,800.75
$3,295.00
© copyright by designer
 View All 10 Images | Photographs may reflect modified home
Sq Ft
6,092 FT²
Beds
6
Baths
6.5
Stories
2
Garage
4
Depth
88'
Width
76'
 
Click to Zoom In on Floor Plan
© copyright by designer
 
 

About This Plan

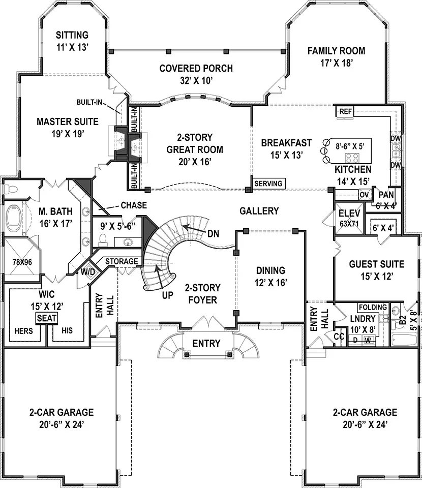
This expansive 6092 square feet home offers 6 bedrooms and 6.5 bathrooms, designed for elevated living with space for everything and everyone. The open floor plan is complemented by vaulted ceilings and a dramatic 2 story volume, creating a bright and impressive main living area anchored by a fireplace. The kitchen is thoughtfully designed with a large island, peninsula seating, walk-in pantry, and a cozy breakfast nook for everyday meals. Two primary suites on the main floor provide exceptional flexibility, each featuring his and hers closets and spa-like baths with separate tub and shower. Multiple living spaces including a family room, formal living room, dining room, and home office allow for both entertaining and quiet retreat. The walkout basement expands the living area even further, while a bonus room adds versatility for future needs. Complete with a covered front and rear porch, first-floor laundry, and a 4-car attached garage, this home delivers comfort, function, and impressive scale in every detail. 

See All Plan Options
 

FEATURES & DETAILS

Kitchen features
Kitchen Island
Nook / Breakfast Area
Peninsula / Eating Bar
Walk-in Pantry
Bedroom features
2 Primary Suites
Double Vanity Sink
Guest Suite
His and Hers Primary Closets
Primary Bdrm Main Floor
Separate Tub and Shower
Sitting Area
Exterior features
Covered Front Porch
Covered Rear Porch
Foundation Options
Walkout Basement
Lot Options
Suited for narrow lot
Additional features
2 Story Volume
Bonus Room
Dining Room
Family Room
Fireplace
Formal LR
Foyer
Home Office
In-law Suite
Laundry 1st Fl
Open Floor Plan
Vaulted Ceilings
Garage Location
Front
Garage Options
Attached
Side-entry
12,340 Ft
2
Total Structure
6,092 Ft
2
Total Heated
3,713 Ft
2
1st Floor
2,379 Ft
2
2nd Floor
3,582 Ft
2
Lower Floor
6
Bedrooms
6.5
Bathrooms
4
Garage
2
Stories
76' 0"
Width
88' 0"
Depth
34' 0"
Height
10' 0"
Main Floor Ceiling
9' 0"
Upper Floor Ceiling
10' 0"
Lower Floor Ceiling
2x4
Framing
Stick
Roof Framing
7/12
Primary Roof Pitch
8/12
Secondary Roof Pitch
Single
Dwelling Number
2nd Floor
Bonus Access

Unheated Living Space
1,028 Ft
2
Garage
51 Ft
2
Front Porch
288 Ft
2
Patio
210 Ft
2
Bonus Room
 

Plan Package Options

 Select Plan Package
 Need To Reverse Plan? (Optional)
  Select Foundation Option
  Add-Ons (Optional)
INCLUDED WITH YOUR PURCHASE

Free Ground shipping in the U.S.

FREE

Home Building & Product Ideas Organizer

Sub Total
$0
Free Shipping
QUESTIONS OR NEED HELP ORDERING? LIVE CHAT OR CALL US AT 866-214-2242
Plan Packages

Each set of construction documents typically includes detailed, dimensioned floor plans, basic electric layouts, cross sections, roof details, cabinet layouts, and elevations, as well as general IRC specifications. Please refer to the ARCHITECT or DESIGNER’S PLAN DETAILS link above the floor plan on any plan page to determine the specific details for each plan. Our house plans contain virtually all of the information required to construct your home. The typical plan set does not include plumbing, HVAC drawings, or engineering stamps due to the wide variety of specific needs, local codes, and climatic conditions. These details and specifications are easily obtained from your builder, contractors, and/or local engineers.

BEST PRICE GUARANTEE

Find the same house plan (modifications included!) and package for less on another site, show us the URL and we'll give you the difference plus an additional 10% back.

100% SATISFACTION GUARANTEE

We offer a one-time, 30-day exchange policy for unused, printed plan packages in the event you aren't satisfied with your first selection.

 
 

Plan 9326  Back to plan page

Loading...