Get discounts,
promos, see our
newest plans
and more!
+ 15% off any plan
See terms opt out anytime


No Thanks

Thanks for
signing up!


Use Code:

SIGNUP15

And save 15% off any plan!

Check your email for details.

CLOSE
Search Plans
Customer Reviews
     
America’s Top Home Plans
Trusted House Plans From America's Leading Architects & Designers

Kingsridge | 5 Bedroom Farmhouse Style House, Plan 10767

 
 

Sq Ft
2,623 FT²

Beds
5

Baths
4.5

Stories
2

Garage
2

Depth
58'

Width
50'
From
$2,050.00
© copyright by designer
 View All 52 Images | Photographs may reflect modified home | Video Tour
Sq Ft
2,623 FT²
Beds
5
Baths
4.5
Stories
2
Garage
2
Depth
58'
Width
50'
 

 
Click to Zoom In on Floor Plan
© copyright by designer
 
 

About This Plan

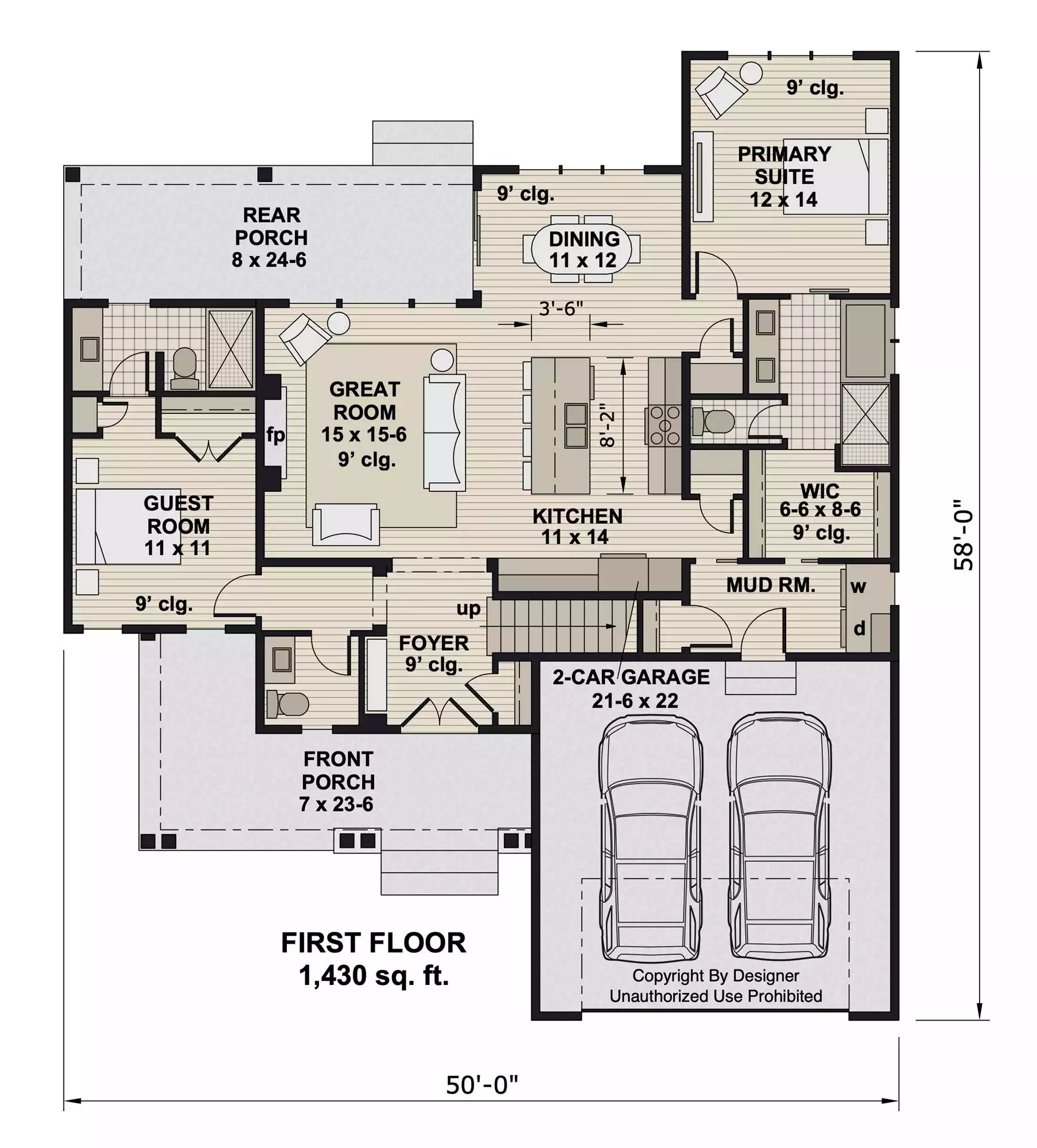
House Plan 10768 is a flexible 2-story Craftsman home with 5 bedrooms, 4.5 bathrooms, and 2,623 sq. ft. of smartly designed living space—perfect for busy families.



The open layout connects the kitchen, dining area, and great room, complete with a fireplace and large island. A covered rear porch extends the living space outdoors for easy entertaining. The main-level primary suite features dual vanities, a walk-in shower, and ample closet space. A guest bedroom with a full bath, plus a mudroom and half bath, offer added convenience.



Upstairs includes 3 bedrooms, 2 bathrooms, a loft, and a bonus room—ideal for a playroom, media space, or home office. With classic Craftsman style and practical features, House Plan 10768 is built for real-life comfort and versatility. 


See All Plan Options
 

FEATURES & DETAILS

Kitchen features
Kitchen Island
L-Shaped
Pantry
Peninsula / Eating Bar
Bedroom features
Double Vanity Sink
Guest Suite
Primary Bdrm Main Floor
Separate Tub and Shower
Split Bedrooms
Walk-in Closet
Exterior features
Covered Front Porch
Covered Rear Porch
Additional features
Bonus Room
Dining Room
Fireplace
Foyer
Great Room
Home Office
Laundry 1st Fl
Mud Room
Open Floor Plan
Garage Location
Front
Garage Options
Attached
Front-entry
3,096 Ft
2
Total Structure
2,623 Ft
2
Total Heated
1,430 Ft
2
1st Floor
1,193 Ft
2
2nd Floor
5
Bedrooms
4.5
Bathrooms
2
Garage
2
Stories
50' 0"
Width
58' 0"
Depth
26' 0"
Height
9' 0"
Main Floor Ceiling
8' 0"
Upper Floor Ceiling
2x6
Framing
Truss
Roof Framing
8/12
Primary Roof Pitch
Single
Dwelling Number
2nd Floor
Bonus Access

Unheated Living Space
473 Ft
2
Garage
 

Plan Package Options

 Select Plan Package
 Need To Reverse Plan? (Optional)
  Select Foundation Option
  Add-Ons (Optional)
INCLUDED WITH YOUR PURCHASE

Free Ground shipping in the U.S.

FREE

Home Building & Product Ideas Organizer

Sub Total
$0
Free Shipping
QUESTIONS OR NEED HELP ORDERING? LIVE CHAT OR CALL US AT 866-214-2242
Plan Packages

Each set of construction documents typically includes detailed, dimensioned floor plans, basic electric layouts, cross sections, roof details, cabinet layouts, and elevations, as well as general IRC specifications. Please refer to the ARCHITECT or DESIGNER’S PLAN DETAILS link above the floor plan on any plan page to determine the specific details for each plan. Our house plans contain virtually all of the information required to construct your home. The typical plan set does not include plumbing, HVAC drawings, or engineering stamps due to the wide variety of specific needs, local codes, and climatic conditions. These details and specifications are easily obtained from your builder, contractors, and/or local engineers.

BEST PRICE GUARANTEE

Find the same house plan (modifications included!) and package for less on another site, show us the URL and we'll give you the difference plus an additional 10% back.

100% SATISFACTION GUARANTEE

We offer a one-time, 30-day exchange policy for unused, printed plan packages in the event you aren't satisfied with your first selection.

 
 

Plan 10767  Back to plan page

Loading...