Get discounts,
promos, see our
newest plans
and more!
+ 15% off any plan
See terms opt out anytime


No Thanks

Thanks for
signing up!


Use Code:

SIGNUP15

And save 15% off any plan!

Check your email for details.

CLOSE
Search Plans
Customer Reviews
     
17% Off House Plans Sitewide Ends Sunday
17% Off House Plans Sitewide Ends Sunday
17% Off House Plans Sitewide Ends Sunday

Code: SAVE17
Sale ends midnight 12/14/2025 PST

Canyon Creek | 4 Bedroom Tuscan Style House, Plan 6978

 
 

Sq Ft
4,585 FT²

Beds
4

Baths
3.5

Stories
2

Garage
4

Depth
88' 5"

Width
103' 6"
On Sale
$1,655.85
$1,995.00
EXCLUSIVE PLAN
© copyright by designer
 View All 5 Images | Photographs may reflect modified home
Sq Ft
4,585 FT²
Beds
4
Baths
3.5
Stories
2
Garage
4
Depth
88' 5"
Width
103' 6"
 
Click to Zoom In on Floor Plan
© copyright by designer
 
 

About This Plan

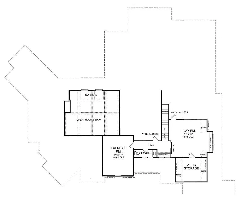
Canyon Creek brings warm Tuscan styling together with a spacious family-friendly layout. The great room features two-story volume and opens into the kitchen and casual dining space, making everyday living and entertaining flow naturally. The primary suite includes a sitting area, large walk-in closet, and spa bath with a soaking tub and separate shower. A guest suite and home office are located on the main floor, offering convenience and privacy. The outdoor spaces are designed for year-round enjoyment, with a covered porch, built-in grill area, and a fire pit gathering zone—perfect for homes with a pool or scenic backyard. Upstairs, you'll find a game room, exercise room, playroom, powder bath, and attic storage. A 4-car front-entry garage and a dedicated mudroom support busy daily routines in a plan that balances luxury with livability. 

See All Plan Options
 

FEATURES & DETAILS

Kitchen features
Kitchen Island
Peninsula / Eating Bar
Walk-in Pantry
Bedroom features
Double Vanity Sink
Guest Suite
Primary Bdrm Main Floor
Separate Tub and Shower
Sitting Area
Split Bedrooms
Walk-in Closet
Exterior features
Covered Front Porch
Covered Rear Porch
Front Porch
Rear Porch
Foundation Options
Basement
Crawlspace
Slab
Lot Options
Suited for view lot
Additional features
2 Story Volume
Bonus Room
Dining Room
Exercise Room
Fireplace
Foyer
Great Room
Home Office
Laundry 1st Fl
Library/Media Rm
Mud Room
Open Floor Plan
Rec Room
Storage Space
Vaulted Ceilings
Garage Location
Front
Garage Options
Attached
Front-entry
Side-entry
6,512 Ft
2
Total Structure
4,585 Ft
2
Total Heated
3,855 Ft
2
1st Floor
730 Ft
2
2nd Floor
4
Bedrooms
3.5
Bathrooms
4
Garage
2
Stories
103' 6"
Width
88' 5"
Depth
10' 0"
Main Floor Ceiling
2x4
Framing
Stick
Roof Framing
Single
Dwelling Number

Unheated Living Space
1,417 Ft
2
Garage
510 Ft
2
Porch
 

Plan Package Options

 Select Plan Package
Sale: $1,204
PDF Bid Set
$1,450

Home plans stamped "NOT FOR CONSTRUCTION" for cost estimating and bidding purposes only; a minimum 5 set plan package must be purchased within 90 days for a license to build plan set; a credit will be applied towards your house plan upgrade

Sale: $1,204
Sale: $1,656
PDF Single Build
$1,995

Digital plans emailed to you in PDF format that allows for printing copies and sharing electronically with contractors, subs, decorators, and more. This package includes a license to build the home one time.

Sale: $1,656
Sale: $2,905
CAD + PDF Single Build
$3,500

CAD files are a complete set of construction drawings delivered electronically. They can be used for any type of modification—including major design changes and engineering—and include a release granting permission to modify the plan. Most CAD plan orders are emailed the same or next business day.
 
This package also comes with a PDF set of plans and a copyright release for making modifications and printing unlimited copies.
 
CAD files are provided in .dwg format. For details on the specific CAD program used, please refer to the PLAN DETAILS section located above the floor plan on each plan’s page.

Sale: $2,905
 Need To Reverse Plan? (Optional)
$375
Readable Reverse

Reverse house plans with readable text and dimensions 

$375
  Select Foundation Option
  Add-Ons (Optional)
INCLUDED WITH YOUR PURCHASE

Free Ground shipping in the Continental U.S.

FREE

Design consultation with the architect or designer to discuss your plan

Home Building & Product Ideas Organizer

Sub Total
$0
Free Shipping
QUESTIONS OR NEED HELP ORDERING? LIVE CHAT OR CALL US AT 866-214-2242
Plan Packages

Each set of construction documents includes detailed, dimensioned floor plans, basic electric layouts, cross sections, roof details, cabinet layouts and elevations, as well as general IRC specifications. They contain virtually all of the information required to construct your home. The typical plan set does not include any plumbing, HVAC drawings, or engineering stamps due to the wide variety of specific needs, local codes, and climatic conditions. These details and specifications are easily obtained from your builder, contractors, and/or local engineers.

BEST PRICE GUARANTEE

find the same house plan (modifications included!) and package for less on another site, show us the URL and we'll give you the difference plus an additional 5% back.

100% SATISFACTION GUARANTEE

We offer a one-time, 30-day exchange policy for unused, non-electronic plan packages in the event you aren't satisfied with your first selection.

 
 

Plan 6978  Back to plan page

Loading...