Get discounts,
promos, see our
newest plans
and more!
+ 15% off any plan
See terms opt out anytime


No Thanks

Thanks for
signing up!


Use Code:

SIGNUP15

And save 15% off any plan!

Check your email for details.

CLOSE
Search Plans
Customer Reviews
     
America’s Top Home Plans
Trusted House Plans From America's Leading Architects & Designers

Haiden Valley | 4 Bedroom Farmhouse Style House, Plan 10761

 
 

Sq Ft
2,224 FT²

Beds
4

Baths
3.5

Stories
2

Garage
2

Depth
58'

Width
50'
From
$2,050.00
© copyright by designer
 View All 44 Images | Photographs may reflect modified home | Video Tour
Sq Ft
2,224 FT²
Beds
4
Baths
3.5
Stories
2
Garage
2
Depth
58'
Width
50'
 

 
Click to Zoom In on Floor Plan
© copyright by designer
 
 

About This Plan

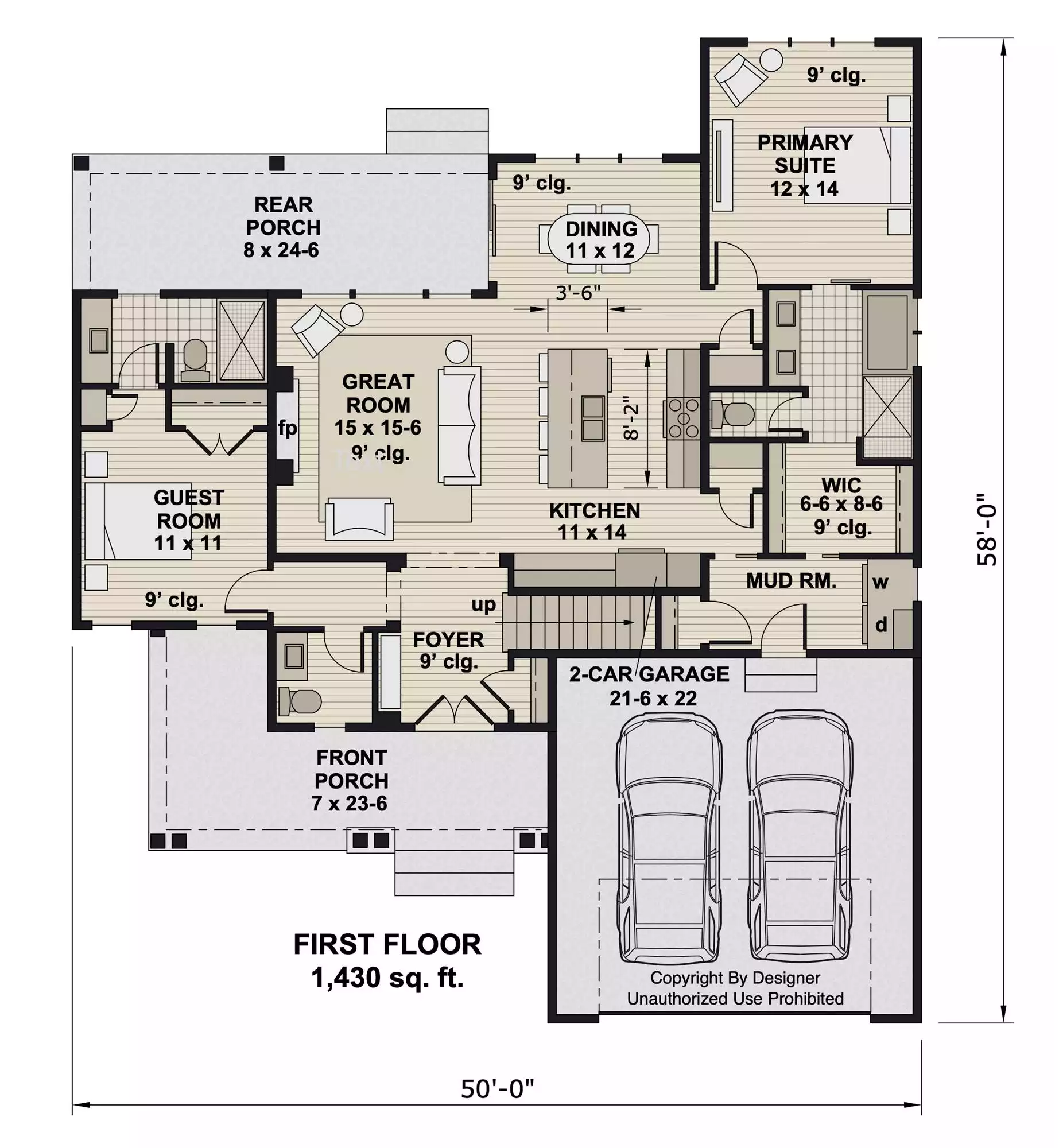
Haiden Valley is a beautifully designed two-story Traditional home that combines timeless architectural charm with everyday functionality. With 4 spacious bedrooms and 3.5 bathrooms, this thoughtful layout features soaring 9-foot ceilings and refined finishes throughout. A stately front porch welcomes guests into a bright foyer that opens to an expansive chef’s kitchen with an 8-foot island, which flows effortlessly into the dining area and great room anchored by a cozy fireplace. A main-level guest suite with its own private bath offers comfort and privacy for visitors or extended family. The upstairs primary suite is a peaceful retreat, complete with a spa-inspired bathroom featuring double vanities, a soaking tub, and a walk-in shower. Two additional bedrooms, a full bath, and a spacious loft provide flexible space for work, play, or relaxing. With a 2-car garage, mudroom, laundry area, and ample storage throughout, Haiden Valley offers the perfect balance of classic elegance and modern convenience 

See All Plan Options
 

FEATURES & DETAILS

Kitchen features
Kitchen Island
L-Shaped
Pantry
Peninsula / Eating Bar
Bedroom features
Double Vanity Sink
Guest Suite
Primary Bdrm Main Floor
Separate Tub and Shower
Split Bedrooms
Walk-in Closet
Exterior features
Covered Front Porch
Covered Rear Porch
Wraparound Porch
Lot Options
Suited for corner lot
Additional features
Dining Room
Fireplace
Foyer
Great Room
Laundry 1st Fl
Mud Room
Open Floor Plan
Garage Location
Front
Garage Options
Attached
Front-entry
2,697 Ft
2
Total Structure
2,224 Ft
2
Total Heated
1,430 Ft
2
1st Floor
794 Ft
2
2nd Floor
4
Bedrooms
3.5
Bathrooms
2
Garage
2
Stories
50' 0"
Width
58' 0"
Depth
26' 0"
Height
9' 0"
Main Floor Ceiling
8' 0"
Upper Floor Ceiling
2x6
Framing
Truss
Roof Framing
8/12
Primary Roof Pitch
Single
Dwelling Number
None
Bonus Access

Unheated Living Space
473 Ft
2
Garage
 

Plan Package Options

 Select Plan Package
 Need To Reverse Plan? (Optional)
  Select Foundation Option
  Add-Ons (Optional)
INCLUDED WITH YOUR PURCHASE

Free Ground shipping in the U.S.

FREE

Home Building & Product Ideas Organizer

Sub Total
$0
Free Shipping
QUESTIONS OR NEED HELP ORDERING? LIVE CHAT OR CALL US AT 866-214-2242
Plan Packages

Each set of construction documents typically includes detailed, dimensioned floor plans, basic electric layouts, cross sections, roof details, cabinet layouts, and elevations, as well as general IRC specifications. Please refer to the ARCHITECT or DESIGNER’S PLAN DETAILS link above the floor plan on any plan page to determine the specific details for each plan. Our house plans contain virtually all of the information required to construct your home. The typical plan set does not include plumbing, HVAC drawings, or engineering stamps due to the wide variety of specific needs, local codes, and climatic conditions. These details and specifications are easily obtained from your builder, contractors, and/or local engineers.

BEST PRICE GUARANTEE

Find the same house plan (modifications included!) and package for less on another site, show us the URL and we'll give you the difference plus an additional 10% back.

100% SATISFACTION GUARANTEE

We offer a one-time, 30-day exchange policy for unused, printed plan packages in the event you aren't satisfied with your first selection.

 
 

Plan 10761  Back to plan page

Loading...