Get discounts,
promos, see our
newest plans
and more!
+ 15% off any plan
See terms opt out anytime


No Thanks

Thanks for
signing up!


Use Code:

SIGNUP15

And save 15% off any plan!

Check your email for details.

CLOSE
Search Plans
Customer Reviews
     
America’s Top Home Plans
Trusted House Plans From America's Leading Architects & Designers

Chiaro Two Story Southern Farmhouse Style House, Plan 10176

 
 

Sq Ft
2,410 FT²

Beds
4

Baths
3.5

Stories
2

Garage
3

Depth
69'

Width
75'
From
$1,100.00
© copyright by designer
 View All 10 Images | Photographs may reflect modified home | Video Tour
Sq Ft
2,410 FT²
Beds
4
Baths
3.5
Stories
2
Garage
3
Depth
69'
Width
75'
 

 
Click to Zoom In on Floor Plan
© copyright by designer
 
 

About This Plan

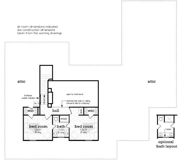
If you're in the market for a great home for hosting or multi-generational living, give House Plan 10176 a try! This beautiful Southern farmhouse boasts a 2,410-square-foot interior with four bedrooms and three-and-a-half bathrooms across two stories. The layout places the common areas in the center of the main level, with a dining room off the foyer and a spacious U-shaped kitchen with bar seating overlooking the vaulted living space with a fireplace farther inside. Don't miss the casual eating zone in back! Two suites are split across this. The primary suite by the three-car side-entry garage has a five-piece bath, walk-in closet, and private porch access. The suite behind the stairs on the opposite side of the house has similar trimmings, but it connects to the back porch and also includes a mini kitchenette. Weekend guests, in-laws, or older children returning home will definitely appreciate this setup! The main level also includes a powder room, laundry room with a pantry, and a mudroom with a sink. Head upstairs and the final two bedrooms share a four-piece Jack-and-Jill bathroom. What a flexible layout for families of all ages!  

See All Plan Options
 

FEATURES & DETAILS

Kitchen features
Kitchen Island
Nook / Breakfast Area
Peninsula / Eating Bar
U-Shaped
Walk-in Pantry
Bedroom features
2 Primary Suites
Double Vanity Sink
Guest Suite
Primary Bdrm Main Floor
Separate Tub and Shower
Split Bedrooms
Walk-in Closet
Exterior features
Covered Front Porch
Covered Rear Porch
Outdoor Living Space
Wraparound Porch
Lot Options
Suited for corner lot
Suited for view lot
Additional features
Dining Room
Fireplace
Foyer
Great Room
In-law Suite
Laundry 1st Fl
Loft / Balcony
Mud Room
Open Floor Plan
Storage Space
Vaulted Ceilings
Vaulted Great Room/Living
Vaulted Primary
Garage Location
Rear
Garage Options
Attached
Oversized
Side-entry
4,202 Ft
2
Total Structure
2,410 Ft
2
Total Heated
1,940 Ft
2
1st Floor
470 Ft
2
2nd Floor
4
Bedrooms
3.5
Bathrooms
3
Garage
2
Stories
75'
Width
69'
Depth
26'
Height
9' 0"
Main Floor Ceiling
8' 0"
Upper Floor Ceiling
10' 0"
Foyer Ceiling
10' 0"
Primary Ceiling
2x4
Framing
Stick
Roof Framing
8/12
Primary Roof Pitch
4/12
Porch Roof Pitch
Single
Dwelling Number
None
Bonus Access

Unheated Living Space
890 Ft
2
Garage
902 Ft
2
Porch
 

Plan Package Options

 Select Plan Package
 Need To Reverse Plan? (Optional)
  Select Foundation Option
  Add-Ons (Optional)
INCLUDED WITH YOUR PURCHASE

Free Ground shipping in the U.S.

FREE

Home Building & Product Ideas Organizer

Sub Total
$0
Free Shipping

Note: E
QUESTIONS OR NEED HELP ORDERING? LIVE CHAT OR CALL US AT 866-214-2242
Plan Packages

Each set of construction documents typically includes detailed, dimensioned floor plans, basic electric layouts, cross sections, roof details, cabinet layouts, and elevations, as well as general IRC specifications. Please refer to the ARCHITECT or DESIGNER’S PLAN DETAILS link above the floor plan on any plan page to determine the specific details for each plan. Our house plans contain virtually all of the information required to construct your home. The typical plan set does not include plumbing, HVAC drawings, or engineering stamps due to the wide variety of specific needs, local codes, and climatic conditions. These details and specifications are easily obtained from your builder, contractors, and/or local engineers.

BEST PRICE GUARANTEE

Find the same house plan (modifications included!) and package for less on another site, show us the URL and we'll give you the difference plus an additional 10% back.

100% SATISFACTION GUARANTEE

We offer a one-time, 30-day exchange policy for unused, printed plan packages in the event you aren't satisfied with your first selection.

 
 

Plan 10176  Back to plan page

Loading...