Get discounts,
promos, see our
newest plans
and more!
+ 15% off any plan
See terms opt out anytime


No Thanks

Thanks for
signing up!


Use Code:

SIGNUP15

And save 15% off any plan!

Check your email for details.

CLOSE
Search Plans
Customer Reviews
     

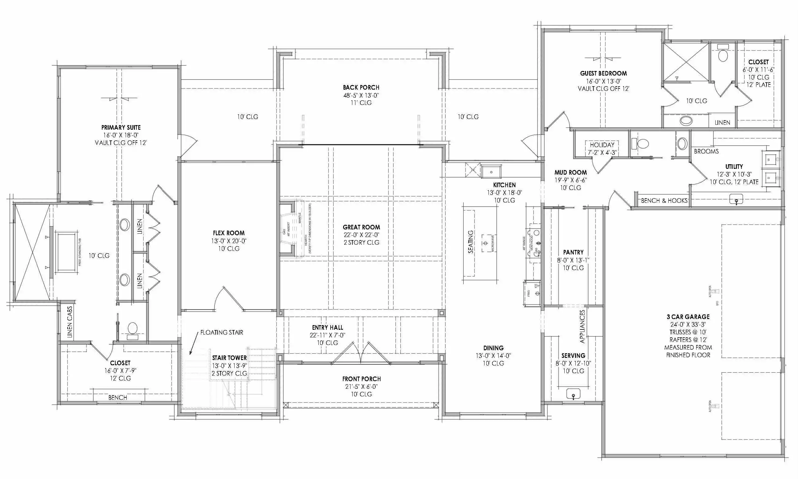
Fernspire Walk | 4 Bedroom Scandinavian Style House, Plan 12027

 
 

Sq Ft
4,557 FT²

Beds
4

Baths
4.5

Stories
2

Garage
3

Depth
58' 10"

Width
105' 6"
From
$2,330.00
© copyright by designer
 View All 15 Images | Photographs may reflect modified home
Sq Ft
4,557 FT²
Beds
4
Baths
4.5
Stories
2
Garage
3
Depth
58' 10"
Width
105' 6"
 
Click to Zoom In on Floor Plan
© copyright by designer
 
 

About This Plan

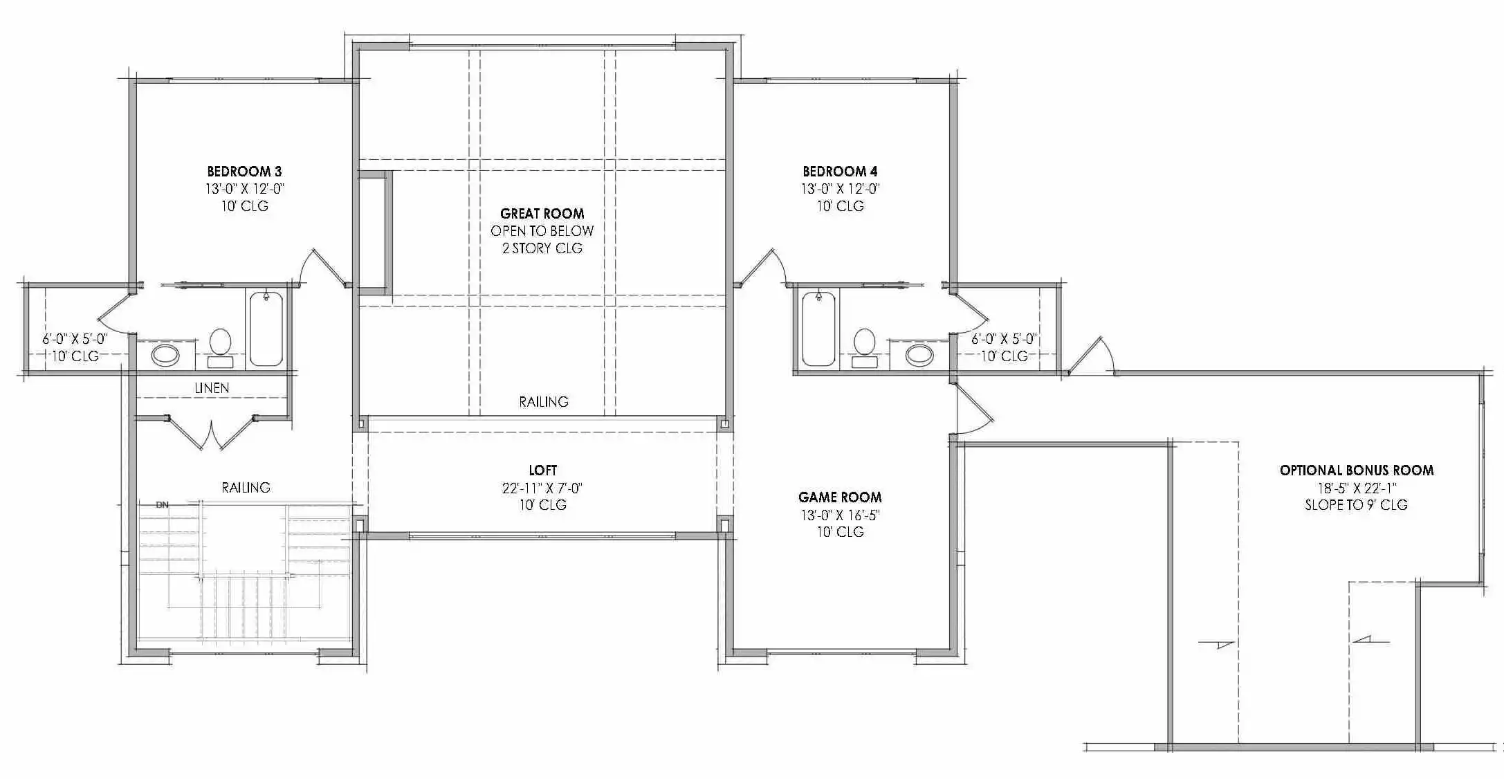
With 4,557 heated square feet, this spacious four-bedroom home offers a bright and welcoming layout ideal for daily living and gathering. The kitchen includes a butler’s pantry, walk-in pantry, and large island, connecting smoothly to the great room for easy mealtime flow. The main-floor primary suite features a vaulted ceiling, a relaxing bath with a separate tub and shower, and a walk-in closet for comfortable everyday use. Upstairs, a loft, bonus room, and additional bedrooms create flexible areas for work, play, or quiet retreat. Vaulted ceilings throughout the main living spaces add a sense of openness, while the rec room provides a great spot for entertainment or hobbies. A covered front porch and generous rear porch extend living outdoors in a cozy and inviting way. With its open floor plan and thoughtful layout, this home offers a warm setting designed for relaxed family living. 

See All Plan Options
 

FEATURES & DETAILS

Kitchen features
Butler's Pantry
Kitchen Island
L-Shaped
Peninsula / Eating Bar
Walk-in Pantry
Bedroom features
Double Vanity Sink
Primary Bdrm Main Floor
Separate Tub and Shower
Split Bedrooms
Walk-in Closet
Exterior features
Covered Front Porch
Covered Rear Porch
Outdoor Living Space
Lot Options
Suited for corner lot
Suited for sloping lot
Suited for view lot
Additional features
Bonus Room
Dining Room
Exercise Room
Fireplace
Foyer
Great Room
Home Office
Laundry 1st Fl
Loft / Balcony
Mud Room
Open Floor Plan
Rec Room
Unfinished Space
Vaulted Ceilings
Vaulted Primary
Garage Location
Side
Garage Options
Attached
Side-entry
6,535 Ft
2
Total Structure
4,557 Ft
2
Total Heated
3,487 Ft
2
1st Floor
1,070 Ft
2
2nd Floor
4
Bedrooms
4.5
Bathrooms
3
Garage
2
Stories
105' 6"
Width
58' 10"
Depth
33' 8"
Height
10' 0"
Main Floor Ceiling
10' 0"
Upper Floor Ceiling
2x4
Framing
Stick
Roof Framing
10/12
Primary Roof Pitch
12/12
Secondary Roof Pitch
Single
Dwelling Number

Unheated Living Space
828 Ft
2
Garage
710 Ft
2
Porch
127 Ft
2
Front Porch
583 Ft
2
Rear Porch
440 Ft
2
Bonus Room
 

Plan Package Options

 Select Plan Package
 Need To Reverse Plan? (Optional)
  Select Foundation Option
  Add-Ons (Optional)
INCLUDED WITH YOUR PURCHASE

Free Ground shipping in the Continental U.S.

FREE

Home Building & Product Ideas Organizer

Sub Total
$0
Free Shipping
QUESTIONS OR NEED HELP ORDERING? LIVE CHAT OR CALL US AT 866-214-2242
Plan Packages

Each set of construction documents includes detailed, dimensioned floor plans, basic electric layouts, cross sections, roof details, cabinet layouts and elevations, as well as general IRC specifications. They contain virtually all of the information required to construct your home. The typical plan set does not include any plumbing, HVAC drawings, or engineering stamps due to the wide variety of specific needs, local codes, and climatic conditions. These details and specifications are easily obtained from your builder, contractors, and/or local engineers.

BEST PRICE GUARANTEE

Find the same house plan (modifications included!) and package for less on another site, show us the URL and we'll give you the difference plus an additional 10% back.

100% SATISFACTION GUARANTEE

We offer a one-time, 30-day exchange policy for unused, printed plan packages in the event you aren't satisfied with your first selection. Exchanges are subject to a 20% restocking fee.

 
 

Plan 12027  Back to plan page

Loading...