Get discounts,
promos, see our
newest plans
and more!
+ 15% off any plan
See terms opt out anytime


No Thanks

Thanks for
signing up!


Use Code:

SIGNUP15

And save 15% off any plan!

Check your email for details.

CLOSE
Search Plans
Customer Reviews
     
15% off ALL House Plans Sitewide
15% off ALL House Plans Sitewide
15% off ALL House Plans Sitewide

Code: HONOR
Sale ends midnight 5/29/2026 PST

Alderton | RV Garage + 1 Bedroom ADU Craftsman Design, Plan 10554

 
 

Sq Ft
777 FT²

Beds
1

Baths
1.5

Stories
2

Garage
4

Depth
54' 6"

Width
96' 6"
On Sale
$765.00
$900.00
© copyright by designer
 View All 8 Images | Photographs may reflect modified home
Sq Ft
777 FT²
Beds
1
Baths
1.5
Stories
2
Garage
4
Depth
54' 6"
Width
96' 6"
 
Click to Zoom In on Floor Plan
© copyright by designer
 
 

About This Plan

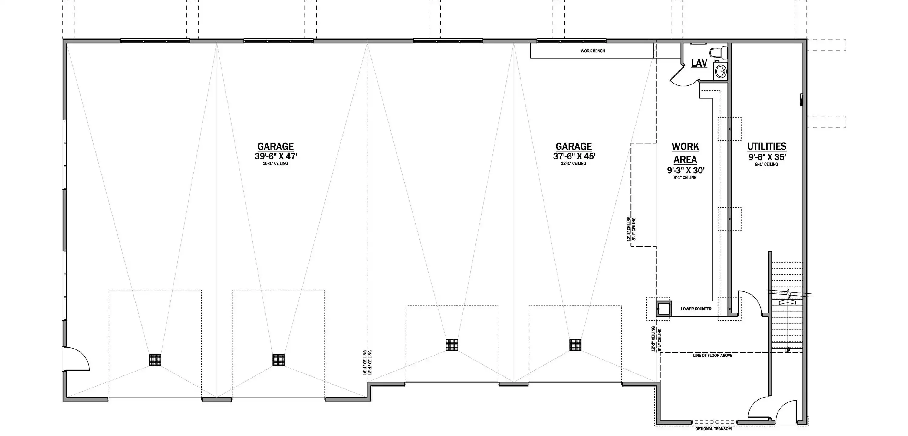
If your property needs more parking for your vehicles, Plan 10554 won't disappoint with over 4,500 square feet of garage space! The garage area features two RV bays and two car bays plus a workshop with tons of workbench space and a half bathroom. But that's not all this design has to offer! On the side, you'll find a door with stairs up to an apartment. This ADU features 777 square feet with one bedroom, one-and-half baths, laundry, and a kitchen open to the living space. There's also a deck off the living area, over the entry, for outdoor potential. It's the perfect set up for guests, renters, caretakers, or even just a getaway from the main house!  

See All Plan Options
 

FEATURES & DETAILS

Kitchen features
L-Shaped
Pantry
Bedroom features
Primary Bdrm Upstairs
Walk-in Closet
Exterior features
Deck
Additional features
Laundry 2nd Fl
Open Floor Plan
Workshop
Garage Location
Front
Garage Options
Attached
Front-entry
RV Garage
With Living Space
5,297 Ft
2
Total Structure
777 Ft
2
Total Heated
4,520 Ft
2
1st Floor
777 Ft
2
2nd Floor
1
Bedrooms
1.5
Bathrooms
4
Garage
2
Stories
96' 6"
Width
54' 6"
Depth
24' 7"
Height
8'1 - 16'1' 0"
Main Floor Ceiling
9' 1"
Upper Floor Ceiling
2x6
Framing
Truss
Roof Framing
4/12
Primary Roof Pitch
Garage
Dwelling Number
None
Bonus Access

Unheated Living Space
4,520 Ft
2
Garage
 

Plan Package Options

 Select Plan Package
 Need To Reverse Plan? (Optional)
  Select Foundation Option
  Add-Ons (Optional)
INCLUDED WITH YOUR PURCHASE

Free Ground shipping in the U.S.

FREE

Home Building & Product Ideas Organizer

Sub Total
$0
Free Shipping
QUESTIONS OR NEED HELP ORDERING? LIVE CHAT OR CALL US AT 866-214-2242
Plan Packages

Each set of construction documents typically includes detailed, dimensioned floor plans, basic electric layouts, cross sections, roof details, cabinet layouts, and elevations, as well as general IRC specifications. Please refer to the ARCHITECT or DESIGNER’S PLAN DETAILS link above the floor plan on any plan page to determine the specific details for each plan. Our house plans contain virtually all of the information required to construct your home. The typical plan set does not include plumbing, HVAC drawings, or engineering stamps due to the wide variety of specific needs, local codes, and climatic conditions. These details and specifications are easily obtained from your builder, contractors, and/or local engineers.

BEST PRICE GUARANTEE

Find the same house plan (modifications included!) and package for less on another site, show us the URL and we'll give you the difference plus an additional 10% back.

100% SATISFACTION GUARANTEE

We offer a one-time, 30-day exchange policy for unused, printed plan packages in the event you aren't satisfied with your first selection.

 
 

Plan 10554  Back to plan page

Loading...