Get discounts,
promos, see our
newest plans
and more!
+ 15% off any plan
See terms opt out anytime


No Thanks

Thanks for
signing up!


Use Code:

SIGNUP15

And save 15% off any plan!

Check your email for details.

CLOSE
Search Plans
Customer Reviews
     
15% off ALL House Plans Sitewide
15% off ALL House Plans Sitewide
15% off ALL House Plans Sitewide

Code: SAVE15
Sale ends midnight 4/26/2026 PST

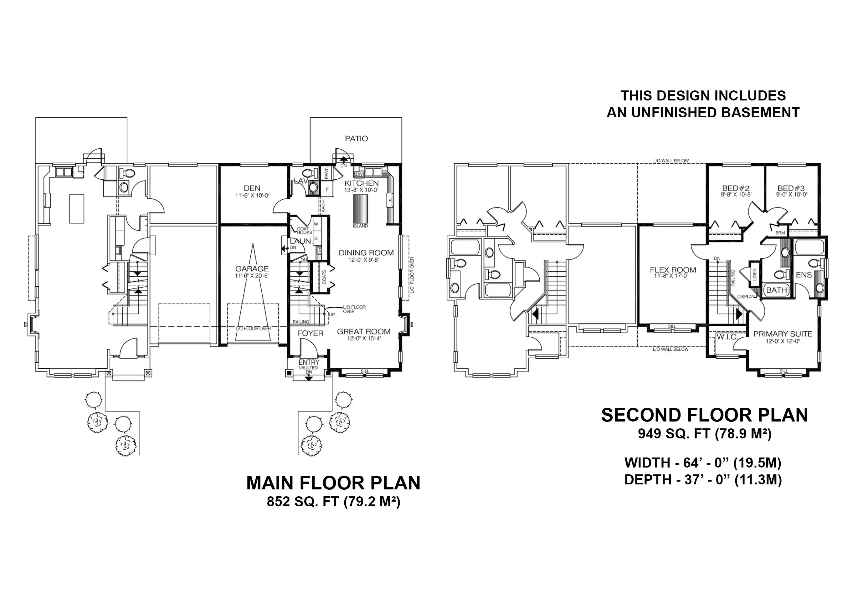
Hallondale | 2 Unit Contemporary Style House, Plan 11661

 
 

Sq Ft
1,782 FT²

Beds
3

Baths
2.5

Stories
2

Garage
2

Depth
36' 4"

Width
64'
On Sale
$1,881.90
$2,214.00
© copyright by designer
 View All 6 Images | Photographs may reflect modified home
Sq Ft
1,782 FT²
Beds
3
Baths
2.5
Stories
2
Garage
2
Depth
36' 4"
Width
64'
 
Click to Zoom In on Floor Plan
© copyright by designer
 
 

About This Plan

Hallondale presents a clean, modern look with sleek roof lines and a single front facing two car garage, offering strong curb appeal in a compact, efficient footprint. Each unit features 1,782 square feet thoughtfully arranged across two stories, beginning with a welcoming foyer that opens into a bright great room shared with the dining area and an L shaped kitchen. Sliding doors extend the living space to a rear patio, creating an easy indoor outdoor connection. A quiet den tucked behind the garage adds flexibility for a home office or media space, complemented by a convenient half bath on the main level. Upstairs, the primary suite includes a full bathroom and generous closet space, while two additional bedrooms share a full bath. A large flex room completes the second floor, offering endless options for work, play, or relaxation. 

See All Plan Options
 

FEATURES & DETAILS

Kitchen features
Country Kitchen
Kitchen Island
L-Shaped
Pantry
Bedroom features
Primary Bdrm Upstairs
Split Bedrooms
Walk-in Closet
Exterior features
Deck
Additional features
Exercise Room
Fireplace
Foyer
Great Room
Home Office
Laundry 1st Fl
Open Floor Plan
Garage Location
Front
Garage Options
Attached
Drive-under
Front-entry
4,070 Ft
2
Total Structure
1,782 Ft
2
Unit Heated
1,684 Ft
2
1st Floor
1,880 Ft
2
2nd Floor
3
Bedrooms
2.5
Bathrooms
2
Garage
2
Stories
64' 0"
Width
36' 4"
Depth
23' 0"
Height
8' 0"
Main Floor Ceiling
8' 0"
Upper Floor Ceiling
8' 0"
Lower Floor Ceiling
8' 0"
Living/Great Room Ceiling
8' 0"
Foyer Ceiling
8' 0"
Primary Ceiling
2x6
Framing
Truss
Roof Framing
3/12
Primary Roof Pitch
Duplex
Dwelling Number

Unheated Living Space
506 Ft
2
Garage
256 Ft
2
Deck
 

Plan Package Options

 Select Plan Package
 Need To Reverse Plan? (Optional)
  Select Foundation Option
  Add-Ons (Optional)
INCLUDED WITH YOUR PURCHASE

Free Ground shipping in the U.S.

FREE

Home Building & Product Ideas Organizer

Sub Total
$0
Free Shipping
QUESTIONS OR NEED HELP ORDERING? LIVE CHAT OR CALL US AT 866-214-2242
Plan Packages

Each set of construction documents typically includes detailed, dimensioned floor plans, basic electric layouts, cross sections, roof details, cabinet layouts, and elevations, as well as general IRC specifications. Please refer to the ARCHITECT or DESIGNER’S PLAN DETAILS link above the floor plan on any plan page to determine the specific details for each plan. Our house plans contain virtually all of the information required to construct your home. The typical plan set does not include plumbing, HVAC drawings, or engineering stamps due to the wide variety of specific needs, local codes, and climatic conditions. These details and specifications are easily obtained from your builder, contractors, and/or local engineers.

BEST PRICE GUARANTEE

Find the same house plan (modifications included!) and package for less on another site, show us the URL and we'll give you the difference plus an additional 10% back.

100% SATISFACTION GUARANTEE

We offer a one-time, 30-day exchange policy for unused, printed plan packages in the event you aren't satisfied with your first selection.

 
 

Plan 11661  Back to plan page

Loading...