Get discounts,
promos, see our
newest plans
and more!
+ 15% off any plan
See terms opt out anytime


No Thanks

Thanks for
signing up!


Use Code:

SIGNUP15

And save 15% off any plan!

Check your email for details.

CLOSE
Search Plans
Customer Reviews
     
20% off ALL House Plans Sitewide

Code: MOM20
Sale ends midnight 5/10/2026 PST

St. Charles | 4 Bedroom Farmhouse Style House, Plan 2129

 
 

Sq Ft
2,640 FT²

Beds
4

Baths
3

Stories
2

Garage
2

Depth
66'

Width
57' 8"
From
$2,125.00
© copyright by designer
 View All 5 Images | Photographs may reflect modified home
Sq Ft
2,640 FT²
Beds
4
Baths
3
Stories
2
Garage
2
Depth
66'
Width
57' 8"
 
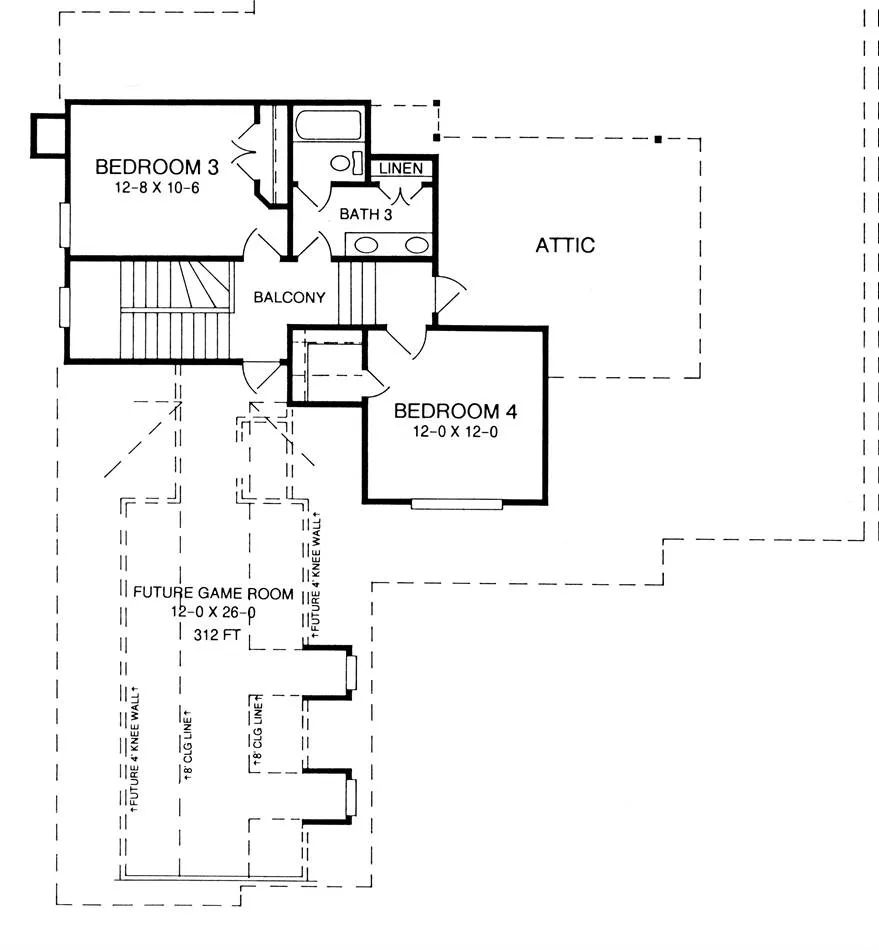
Click to Zoom In on Floor Plan
© copyright by designer
 
 

About This Plan

This 2,640 square foot home offers 4 bedrooms and 3 bathrooms in a two story layout designed for comfortable family living. A foyer with 12 foot ceiling height creates a welcoming entrance and leads into the main gathering spaces. The family room features a fireplace and generous ceiling height, creating an open central area for daily living and entertaining. Nearby, the kitchen includes a peninsula eating bar and breakfast nook that keep meals and conversation connected. Formal living and dining rooms add flexibility for hosting and more traditional room separation when desired. The main floor primary suite includes a walk-in closet, double vanity sinks, and a separate tub and shower for everyday comfort. Split secondary bedroom placement helps maintain privacy, while the upper level expands the layout with additional bedrooms and bath space. Covered front and rear porches and an attached side entry garage complete the home. 

See All Plan Options
 

FEATURES & DETAILS

Kitchen features
Nook / Breakfast Area
Peninsula / Eating Bar
Bedroom features
Double Vanity Sink
Primary Bdrm Main Floor
Separate Tub and Shower
Split Bedrooms
Walk-in Closet
Exterior features
Covered Front Porch
Covered Rear Porch
Foundation Options
Basement
Crawlspace
Slab
Lot Options
Suited for corner lot
Suited for view lot
Additional features
Arches
Dining Room
Family Room
Fireplace
Formal LR
Foyer
Laundry 1st Fl
Unfinished Space
Garage Location
Front
Garage Options
Attached
Side-entry
3,373 Ft
2
Total Structure
2,640 Ft
2
Total Heated
2,087 Ft
2
1st Floor
553 Ft
2
2nd Floor
4
Bedrooms
3
Bathrooms
2
Garage
2
Stories
57' 8"
Width
66' 0"
Depth
10' 0"
Main Floor Ceiling
12' 0"
Living/Great Room Ceiling
12' 0"
Foyer Ceiling
10' 0"
Primary Ceiling
2x4
Framing
Stick
Roof Framing
Single
Dwelling Number

Unheated Living Space
483 Ft
2
Garage
250 Ft
2
Storage
 

Plan Package Options

 Select Plan Package
 Need To Reverse Plan? (Optional)
  Select Foundation Option
  Add-Ons (Optional)
INCLUDED WITH YOUR PURCHASE

Free Ground shipping in the U.S.

FREE

Home Building & Product Ideas Organizer

Sub Total
$0
Free Shipping
QUESTIONS OR NEED HELP ORDERING? LIVE CHAT OR CALL US AT 866-214-2242
Plan Packages

Each set of construction documents typically includes detailed, dimensioned floor plans, basic electric layouts, cross sections, roof details, cabinet layouts, and elevations, as well as general IRC specifications. Please refer to the ARCHITECT or DESIGNER’S PLAN DETAILS link above the floor plan on any plan page to determine the specific details for each plan. Our house plans contain virtually all of the information required to construct your home. The typical plan set does not include plumbing, HVAC drawings, or engineering stamps due to the wide variety of specific needs, local codes, and climatic conditions. These details and specifications are easily obtained from your builder, contractors, and/or local engineers.

BEST PRICE GUARANTEE

Find the same house plan (modifications included!) and package for less on another site, show us the URL and we'll give you the difference plus an additional 10% back.

100% SATISFACTION GUARANTEE

We offer a one-time, 30-day exchange policy for unused, printed plan packages in the event you aren't satisfied with your first selection.

 
 

Plan 2129  Back to plan page

Loading...