Get discounts,
promos, see our
newest plans
and more!
+ 15% off any plan
See terms opt out anytime


No Thanks

Thanks for
signing up!


Use Code:

SIGNUP15

And save 15% off any plan!

Check your email for details.

CLOSE
Search Plans
Customer Reviews
     
America’s Top Home Plans
Trusted House Plans From America's Leading Architects & Designers
20% off ALL House Plans Sitewide

Code: SAVE20
Sale ends midnight 5/13/2026 PST

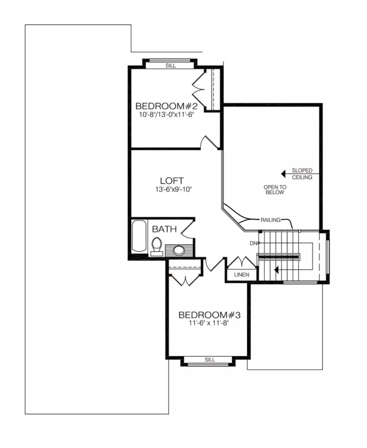
Bertrand 3 Bedroom Farmhouse Style House, Plan 10035

 
 

Sq Ft
2,329 FT²

Beds
3

Baths
2.5

Stories
2

Garage
2

Depth
57'

Width
43' 6"
From
$1,864.00
© copyright by designer
 View All 8 Images | Photographs may reflect modified home
Sq Ft
2,329 FT²
Beds
3
Baths
2.5
Stories
2
Garage
2
Depth
57'
Width
43' 6"
 
Click to Zoom In on Floor Plan
© copyright by designer
 
 

About This Plan

If you're looking for a nice split-bedroom farmhouse suitable for a neighborhood, give House Plan 10035 a try! This 2,329-square-foot design offers three bedrooms and two-and-a-half bathrooms across two stories. The thoughtful layout places the two-car garage up front, while the foyer inside is flanked by the den and powder room. Open-concept living spreads out in back, complete with an island kitchen and a great room with a vaulted ceiling and a fireplace. The primary suite is also on the main floor, privately tucked away behind the kitchen and with a private five-piece bath. The laundry and mudroom are nearby, too. Head upstairs and the secondary bedrooms are spread across a loft and share a hall bath. This design gives everybody plenty of space!  

See All Plan Options
 

FEATURES & DETAILS

Kitchen features
Kitchen Island
L-Shaped
Nook / Breakfast Area
Walk-in Pantry
Bedroom features
Double Vanity Sink
Primary Bdrm Main Floor
Separate Tub and Shower
Split Bedrooms
Walk-in Closet
Exterior features
Covered Front Porch
Covered Rear Porch
Additional features
Fireplace
Foyer
Great Room
Home Office
Laundry 1st Fl
Loft / Balcony
Open Floor Plan
Unfinished Space
Vaulted Ceilings
Vaulted Great Room/Living
Garage Location
Front
Garage Options
Attached
Front-entry
4,432 Ft
2
Total Structure
2,329 Ft
2
Total Heated
1,637 Ft
2
1st Floor
692 Ft
2
2nd Floor
1,637 Ft
2
Lower Floor
3
Bedrooms
2.5
Bathrooms
2
Garage
2
Stories
43' 6"
Width
57' 0"
Depth
27' 10"
Height
9' 0"
Main Floor Ceiling
8' 0"
Upper Floor Ceiling
8' 0"
Lower Floor Ceiling
2x6
Framing
8/12
Primary Roof Pitch
6/12
Secondary Roof Pitch
Single
Dwelling Number
None
Bonus Access

Unheated Living Space
466 Ft
2
Garage
 

Plan Package Options

 Select Plan Package
 Need To Reverse Plan? (Optional)
  Select Foundation Option
  Add-Ons (Optional)
INCLUDED WITH YOUR PURCHASE

Free Ground shipping in the U.S.

FREE

Home Building & Product Ideas Organizer

Sub Total
$0
Free Shipping
QUESTIONS OR NEED HELP ORDERING? LIVE CHAT OR CALL US AT 866-214-2242
Plan Packages

Each set of construction documents typically includes detailed, dimensioned floor plans, basic electric layouts, cross sections, roof details, cabinet layouts, and elevations, as well as general IRC specifications. Please refer to the ARCHITECT or DESIGNER’S PLAN DETAILS link above the floor plan on any plan page to determine the specific details for each plan. Our house plans contain virtually all of the information required to construct your home. The typical plan set does not include plumbing, HVAC drawings, or engineering stamps due to the wide variety of specific needs, local codes, and climatic conditions. These details and specifications are easily obtained from your builder, contractors, and/or local engineers.

BEST PRICE GUARANTEE

Find the same house plan (modifications included!) and package for less on another site, show us the URL and we'll give you the difference plus an additional 10% back.

100% SATISFACTION GUARANTEE

We offer a one-time, 30-day exchange policy for unused, printed plan packages in the event you aren't satisfied with your first selection.

 
 

Plan 10035  Back to plan page

Loading...