Get discounts,
promos, see our
newest plans
and more!
+ 15% off any plan
See terms opt out anytime


No Thanks

Thanks for
signing up!


Use Code:

SIGNUP15

And save 15% off any plan!

Check your email for details.

CLOSE
Search Plans
Customer Reviews
     

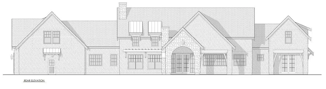
Windsong Lodge 5 Bedroom Country Style House, Plan 5110

 
 

Sq Ft
4,335 FT²

Beds
5

Baths
4.5

Stories
2

Garage
3

Depth
60' 4"

Width
121'
From
$2,995.00
© copyright by designer
 View All 10 Images | Photographs may reflect modified home
Sq Ft
4,335 FT²
Beds
5
Baths
4.5
Stories
2
Garage
3
Depth
60' 4"
Width
121'
 
Click to Zoom In on Floor Plan
© copyright by designer
 
 

About This Plan

If you're in the market for a super spacious country home with a sprawling layout and room for the whole family, take a look at House Plan 5110. You can get a feel for this design's breadth from the street, but you have to check out the floor plans to appreciate how uniquely it arranges its spaces! The main level features a study by a full bath, the five-piece primary suite, and a voluminous great room with a cathedral vaulted ceiling spanning the island kitchen, dining area, and living space with a fireplace. Don't overlook all the storage tucked behind the kitchen or how French doors open to the outdoor lounge in back! There's also a huge mudroom that contains the separate laundry room and powder room, which connects the three-car garage to the interior. Four more bedrooms are placed upstairs--two that share a four-piece hall bath are up the stairs by the primary suite while another pair of bedrooms and a four-piece hall bath are located up the stairs in the mudroom. The volume ceilings of the great room completely separate the upstairs bedrooms, so you can divide your sleeping quarters however you like--separating older kids and younger kids, boys and girls, or family and guest accommodations!  

See All Plan Options
 

FEATURES & DETAILS

Kitchen features
Kitchen Island
U-Shaped
Walk-in Pantry
Bedroom features
Double Vanity Sink
His and Hers Primary Closets
Primary Bdrm Main Floor
Separate Tub and Shower
Split Bedrooms
Walk-in Closet
Exterior features
Covered Front Porch
Covered Rear Porch
Outdoor Living Space
Lot Options
Suited for view lot
Additional features
Fireplace
Foyer
Great Room
Home Office
Laundry 1st Fl
Mud Room
Open Floor Plan
Storage Space
Vaulted Ceilings
Vaulted Great Room/Living
Vaulted Kitchen
Workshop
Garage Location
Side
Garage Options
Attached
Side-entry
5,972 Ft
2
Total Structure
4,335 Ft
2
Total Heated
3,040 Ft
2
1st Floor
1,295 Ft
2
2nd Floor
5
Bedrooms
4.5
Bathrooms
3
Garage
2
Stories
121' 0"
Width
60' 4"
Depth
27' 9"
Height
9' 0"
Main Floor Ceiling
8' 0"
Upper Floor Ceiling
2x6
Framing
Truss
Roof Framing
10/12
Primary Roof Pitch
12/12
Secondary Roof Pitch
Single
Dwelling Number
None
Bonus Access

Unheated Living Space
1,012 Ft
2
Garage
67 Ft
2
Front Porch
558 Ft
2
Deck
 

Plan Package Options

 Select Plan Package
$2,995
PDF Single Build

Digital plans emailed to you in PDF format that allows for printing copies and sharing electronically with contractors, subs, decorators, and more. This package includes a license to build the home one time.

$2,995
$3,995
CAD + PDF Unlimited Build

This plan package is created in AutoCAD and delivered in .DWG format. CAD files are intended for use by design professionals, structural engineers, and builders to update plans for local building codes or to make revisions based on specific needs, lot requirements, and budget considerations. A complimentary PDF copy is included with this package for reference. CAD packages are delivered within 1 to 2 business days.
 
This package also comes with a multi-use building license, granting permission to construct the home an unlimited number of times, along with a copyright release for making revisions and printing unlimited copies.
 
For details on the specific CAD program used, please refer to the PLAN DETAILS section located above the floor plan on each plan page.

$3,995
 Need To Reverse Plan? (Optional)
$245
Readable Reverse

Reverse house plans with readable text and dimensions 

$245
  Select Foundation Option
  Add-Ons (Optional)
INCLUDED WITH YOUR PURCHASE

Free Ground shipping in the Continental U.S.

FREE

Home Building & Product Ideas Organizer

Sub Total
$0
Free Shipping
QUESTIONS OR NEED HELP ORDERING? LIVE CHAT OR CALL US AT 866-214-2242
Plan Packages

Each set of construction documents includes detailed, dimensioned floor plans, basic electric layouts, cross sections, roof details, cabinet layouts and elevations, as well as general IRC specifications. They contain virtually all of the information required to construct your home. The typical plan set does not include any plumbing, HVAC drawings, or engineering stamps due to the wide variety of specific needs, local codes, and climatic conditions. These details and specifications are easily obtained from your builder, contractors, and/or local engineers.

BEST PRICE GUARANTEE

Find the same house plan (modifications included!) and package for less on another site, show us the URL and we'll give you the difference plus an additional 5% back.

100% SATISFACTION GUARANTEE

We offer a one-time, 30-day exchange policy for unused, printed plan packages in the event you aren't satisfied with your first selection. Exchanges are subject to a 20% restocking fee.

 
 

Plan 5110  Back to plan page

Loading...