Get discounts,
promos, see our
newest plans
and more!
+ 15% off any plan
See terms opt out anytime


No Thanks

Thanks for
signing up!


Use Code:

SIGNUP15

And save 15% off any plan!

Check your email for details.

CLOSE
Search Plans
Customer Reviews
     
15% off ALL House Plans Sitewide

Code: SAVE15
Sale ends midnight 4/22/2026 PST

Barbosa Two Story Contemporary Prairie Style House, Plan 2352

 
 

Sq Ft
3,454 FT²

Beds
4

Baths
3.5

Stories
2

Garage
3

Depth
51' 6"

Width
96'
On Sale
$1,860.65
$2,189.00
© copyright by designer
 View All 4 Images | Photographs may reflect modified home
Sq Ft
3,454 FT²
Beds
4
Baths
3.5
Stories
2
Garage
3
Depth
51' 6"
Width
96'
 
Click to Zoom In on Floor Plan
© copyright by designer
 
 

About This Plan

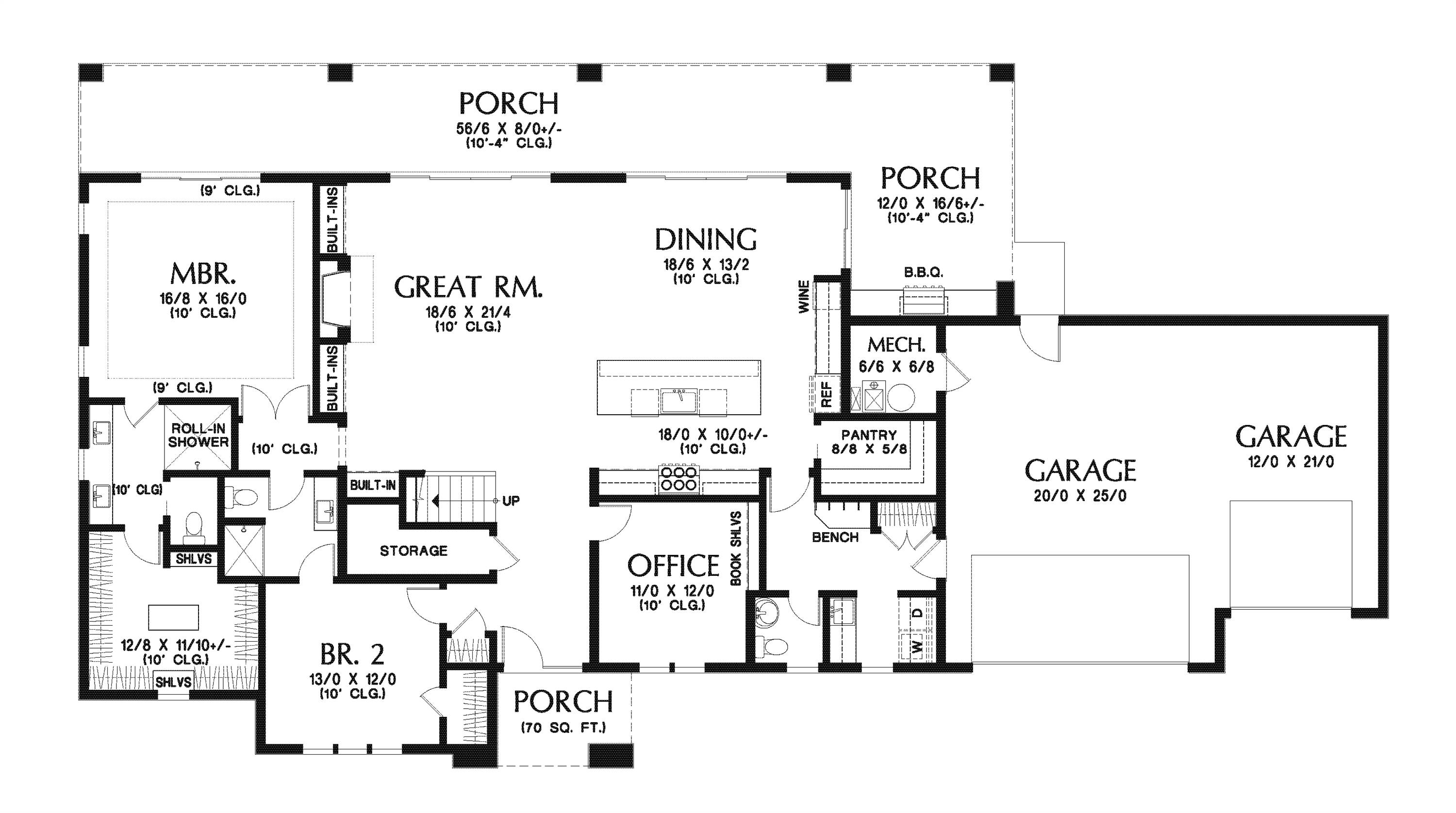
Lovers of Prairie-style architecture take notice! House Plan 2352 offers a chic exterior with clean modern lines, hipped roofing, and mixed materials to paint a lovely Prairie-inspired picture. Inside its 3,454 square feet, you'll find open living and four conveniently split bedrooms. Enter through the front door and a bedroom suite ideal for guests is on one side while the office is on the other. The completely open-concept kitchen and great room fill out the back, and the master suite is located on one side, complete with a four-piece bath with a roll-in shower. Clear across the house, the mud/utility room provides plenty of storage when you come in through the garage. The game room and two more bedrooms are located upstairs. They share a doubly divided hall bath that maximizes functionality - the sinks are accessible in the middle, flanked by a toilet closet and the tub/shower also in its own room. House Plan 2352 makes an exceptionally practical home for growing families!  

See All Plan Options
 

FEATURES & DETAILS

Kitchen features
Kitchen Island
Walk-in Pantry
Bedroom features
Double Vanity Sink
Primary Bdrm Main Floor
Walk-in Closet
Exterior features
Covered Front Porch
Covered Rear Porch
Outdoor Kitchen
Lot Options
Suited for view lot
Additional features
Dining Room
Fireplace
Foyer
Great Room
Home Office
Laundry 1st Fl
Mud Room
Open Floor Plan
Rec Room
Garage Location
Front
Garage Options
Attached
Front-entry
4,251 Ft
2
Total Structure
3,454 Ft
2
Total Heated
2,375 Ft
2
1st Floor
1,079 Ft
2
2nd Floor
4
Bedrooms
3.5
Bathrooms
3
Garage
2
Stories
96' 0"
Width
51' 6"
Depth
26' 2"
Height
10' 0"
Main Floor Ceiling
9' 0"
Upper Floor Ceiling
10' 0"
Living/Great Room Ceiling
10' 0"
Foyer Ceiling
10' 0"
Primary Ceiling
2x6
Framing
Truss
Roof Framing
4/12
Primary Roof Pitch
Single
Dwelling Number
None
Bonus Access

Unheated Living Space
797 Ft
2
Garage
 

Plan Package Options

 Select Plan Package
 Need To Reverse Plan? (Optional)
  Select Foundation Option
  Add-Ons (Optional)
INCLUDED WITH YOUR PURCHASE

Free Ground shipping in the U.S.

FREE

Home Building & Product Ideas Organizer

Sub Total
$0
Free Shipping
QUESTIONS OR NEED HELP ORDERING? LIVE CHAT OR CALL US AT 866-214-2242
Plan Packages

Each set of construction documents typically includes detailed, dimensioned floor plans, basic electric layouts, cross sections, roof details, cabinet layouts, and elevations, as well as general IRC specifications. Please refer to the ARCHITECT or DESIGNER’S PLAN DETAILS link above the floor plan on any plan page to determine the specific details for each plan. Our house plans contain virtually all of the information required to construct your home. The typical plan set does not include plumbing, HVAC drawings, or engineering stamps due to the wide variety of specific needs, local codes, and climatic conditions. These details and specifications are easily obtained from your builder, contractors, and/or local engineers.

BEST PRICE GUARANTEE

Find the same house plan (modifications included!) and package for less on another site, show us the URL and we'll give you the difference plus an additional 10% back.

100% SATISFACTION GUARANTEE

We offer a one-time, 30-day exchange policy for unused, printed plan packages in the event you aren't satisfied with your first selection.

 
 

Plan 2352  Back to plan page

Loading...