Get discounts,
promos, see our
newest plans
and more!
+ 15% off any plan
See terms opt out anytime


No Thanks

Thanks for
signing up!


Use Code:

SIGNUP15

And save 15% off any plan!

Check your email for details.

CLOSE
Search Plans
Customer Reviews
     

Wentworth Hills | 4 Bedroom Contemporary Style House, Plan 12335

 
 

Sq Ft
3,236 FT²

Beds
4

Baths
2.5

Stories
2

Garage
4

Depth
76' 6"

Width
54' 8"
From
$1,900.00
© copyright by designer
 View All 6 Images | Photographs may reflect modified home
Sq Ft
3,236 FT²
Beds
4
Baths
2.5
Stories
2
Garage
4
Depth
76' 6"
Width
54' 8"
 
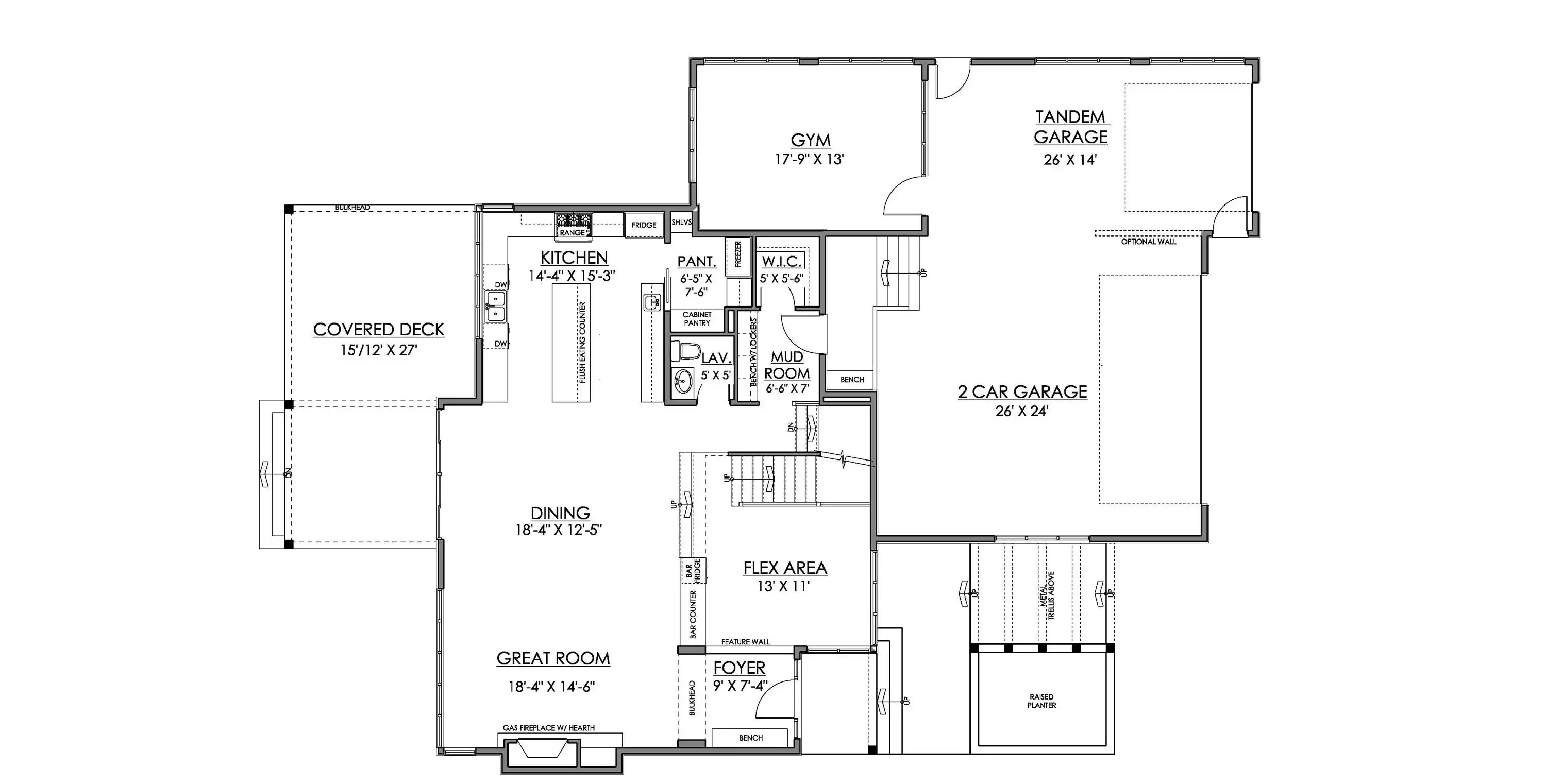
Click to Zoom In on Floor Plan
© copyright by designer
 
 

About This Plan

This 3,236 square foot home features 4 bedrooms and 2.5 bathrooms arranged in a spacious two story layout with multiple flexible living areas. A welcoming foyer opens into the great room, where a fireplace creates a warm focal point and inviting central gathering space. The open floor plan connects the great room with the dining room and kitchen, making the main level ideal for both everyday living and entertaining. The kitchen offers a U-shaped design with a center island, peninsula eating bar, and walk-in pantry for excellent storage and workspace. A home office and mud room add practical convenience on the main floor, while a separate library or media room provides additional versatility. Upstairs, the primary suite offers privacy with a walk-in closet and a bathroom featuring double vanity sinks and a separate tub and shower. Three additional bedrooms are arranged in a split layout near the loft, second floor laundry, and dedicated exercise room. A lower level workshop and attached rear entry tandem 4 car garage complete this highly functional design. 

See All Plan Options
 

FEATURES & DETAILS

Kitchen features
Kitchen Island
Peninsula / Eating Bar
U-Shaped
Walk-in Pantry
Bedroom features
Double Vanity Sink
Primary Bdrm Upstairs
Separate Tub and Shower
Split Bedrooms
Walk-in Closet
Exterior features
Covered Front Porch
Deck
Lot Options
Suited for corner lot
Additional features
Dining Room
Exercise Room
Fireplace
Foyer
Great Room
Home Office
Laundry 2nd Fl
Library/Media Rm
Loft / Balcony
Mud Room
Open Floor Plan
Storage Space
Workshop
Garage Location
Rear
Garage Options
Attached
Side-entry
Tandem
5,343 Ft
2
Total Structure
3,236 Ft
2
Total Heated
1,332 Ft
2
1st Floor
1,904 Ft
2
2nd Floor
821 Ft
2
Lower Floor
245 Ft
2
Workshop
4
Bedrooms
2.5
Bathrooms
4
Garage
2
Stories
54' 8"
Width
76' 6"
Depth
26' 2"
Height
9' 1"
Main Floor Ceiling
9' 1"
Upper Floor Ceiling
8' 9"
Lower Floor Ceiling
2x6
Framing
Truss
Roof Framing
3/12
Primary Roof Pitch
Single
Dwelling Number
None
Bonus Access

Unheated Living Space
1,048 Ft
2
Garage
 

Plan Package Options

 Select Plan Package
 Need To Reverse Plan? (Optional)
  Select Foundation Option
  Add-Ons (Optional)
INCLUDED WITH YOUR PURCHASE

Free Ground shipping in the U.S.

FREE

Home Building & Product Ideas Organizer

Sub Total
$0
Free Shipping
QUESTIONS OR NEED HELP ORDERING? LIVE CHAT OR CALL US AT 866-214-2242
Plan Packages

Each set of construction documents typically includes detailed, dimensioned floor plans, basic electric layouts, cross sections, roof details, cabinet layouts, and elevations, as well as general IRC specifications. Please refer to the ARCHITECT or DESIGNER’S PLAN DETAILS link above the floor plan on any plan page to determine the specific details for each plan. Our house plans contain virtually all of the information required to construct your home. The typical plan set does not include plumbing, HVAC drawings, or engineering stamps due to the wide variety of specific needs, local codes, and climatic conditions. These details and specifications are easily obtained from your builder, contractors, and/or local engineers.

BEST PRICE GUARANTEE

Find the same house plan (modifications included!) and package for less on another site, show us the URL and we'll give you the difference plus an additional 10% back.

100% SATISFACTION GUARANTEE

We offer a one-time, 30-day exchange policy for unused, printed plan packages in the event you aren't satisfied with your first selection.

 
 

Plan 12335  Back to plan page

Loading...