Get discounts,
promos, see our
newest plans
and more!
+ 15% off any plan
See terms opt out anytime


No Thanks

Thanks for
signing up!


Use Code:

SIGNUP15

And save 15% off any plan!

Check your email for details.

CLOSE
Search Plans
Customer Reviews
     
America’s Top Home Plans
Trusted House Plans From America's Leading Architects & Designers

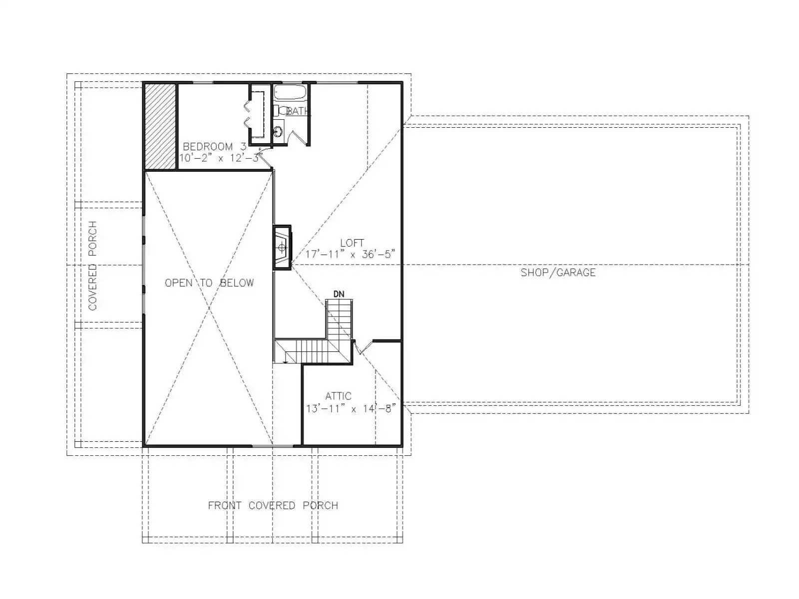
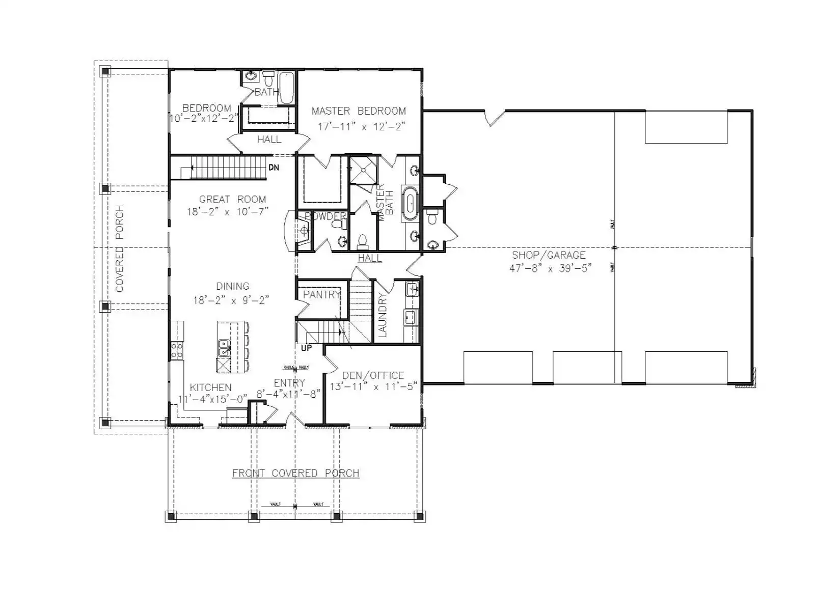
Blackberry Hill 2 Story Barndominium Style House, Plan 10367

 
 

Sq Ft
2,717 FT²

Beds
3

Baths
3.5

Stories
2

Garage
3

Depth
65' 7"

Width
94' 7"
From
$1,250.00
© copyright by designer
 View All 17 Images | Photographs may reflect modified home
Sq Ft
2,717 FT²
Beds
3
Baths
3.5
Stories
2
Garage
3
Depth
65' 7"
Width
94' 7"
 
Click to Zoom In on Floor Plan
© copyright by designer
 
 

About This Plan

Blackberry Hill is a 2,717-square-foot, two-story barndominium that blends rustic charm with modern functionality. The main floor features an open-concept great room, dining area, and kitchen, along with two bedrooms, including a private primary suite, plus a dedicated home office. Upstairs, a loft bedroom, an additional full bedroom, and an optional attic space offer flexibility for expansion or storage. Designed for practicality, the home boasts a huge three-car garage with front and rear entry options, perfect for equipment storage or workshop needs. A covered porch spans the entire length of the house, creating an inviting outdoor living space for relaxation and entertaining. 

See All Plan Options
 

FEATURES & DETAILS

Kitchen features
Country Kitchen
Kitchen Island
L-Shaped
Peninsula / Eating Bar
Walk-in Pantry
Bedroom features
Double Vanity Sink
Primary Bdrm Main Floor
Separate Tub and Shower
Walk-in Closet
Exterior features
Covered Front Porch
Covered Rear Porch
Outdoor Living Space
Lot Options
Suited for view lot
Additional features
Dining Room
Great Room
Laundry 1st Fl
Loft / Balcony
Open Floor Plan
Unfinished Space
Workshop
Garage Location
Front
Garage Options
Attached
Front-entry
Rear-entry
2,717 Ft
2
Total Heated
1,925 Ft
2
1st Floor
792 Ft
2
2nd Floor
1,804 Ft
2
Lower Floor
181 Ft
2
Optional Attic
3
Bedrooms
3.5
Bathrooms
3
Garage
2
Stories
94' 7"
Width
65' 7"
Depth
28' 11"
Height
10' 0"
Main Floor Ceiling
9' 0"
Lower Floor Ceiling
2x4
Framing
Single
Dwelling Number

Unheated Living Space
1,920 Ft
2
Garage
 

Plan Package Options

 Select Plan Package
 Need To Reverse Plan? (Optional)
  Select Foundation Option
  Add-Ons (Optional)
INCLUDED WITH YOUR PURCHASE

Free Ground shipping in the U.S.

FREE

Home Building & Product Ideas Organizer

Sub Total
$0
Free Shipping
QUESTIONS OR NEED HELP ORDERING? LIVE CHAT OR CALL US AT 866-214-2242
Plan Packages

Each set of construction documents typically includes detailed, dimensioned floor plans, basic electric layouts, cross sections, roof details, cabinet layouts, and elevations, as well as general IRC specifications. Please refer to the ARCHITECT or DESIGNER’S PLAN DETAILS link above the floor plan on any plan page to determine the specific details for each plan. Our house plans contain virtually all of the information required to construct your home. The typical plan set does not include plumbing, HVAC drawings, or engineering stamps due to the wide variety of specific needs, local codes, and climatic conditions. These details and specifications are easily obtained from your builder, contractors, and/or local engineers.

BEST PRICE GUARANTEE

Find the same house plan (modifications included!) and package for less on another site, show us the URL and we'll give you the difference plus an additional 10% back.

100% SATISFACTION GUARANTEE

We offer a one-time, 30-day exchange policy for unused, printed plan packages in the event you aren't satisfied with your first selection.

 
 

Plan 10367  Back to plan page

Loading...