Get discounts,
promos, see our
newest plans
and more!
+ 15% off any plan
See terms opt out anytime


No Thanks

Thanks for
signing up!


Use Code:

SIGNUP15

And save 15% off any plan!

Check your email for details.

CLOSE
Search Plans
Customer Reviews
     
15% off ALL House Plans Sitewide
15% off ALL House Plans Sitewide
15% off ALL House Plans Sitewide

Code: SAVE15
Sale ends midnight 4/22/2026 PST

Tamarack Outdoor Living Barndominium Style House, Plan 9154

 
 

Sq Ft
2,062 FT²

Beds
4

Baths
3

Stories
2

Garage
2

Depth
64' 2"

Width
69'
On Sale
$1,857.25
$2,185.00
© copyright by designer
 View All 9 Images | Photographs may reflect modified home
Sq Ft
2,062 FT²
Beds
4
Baths
3
Stories
2
Garage
2
Depth
64' 2"
Width
69'
 
Click to Zoom In on Floor Plan
© copyright by designer
 
 

About This Plan

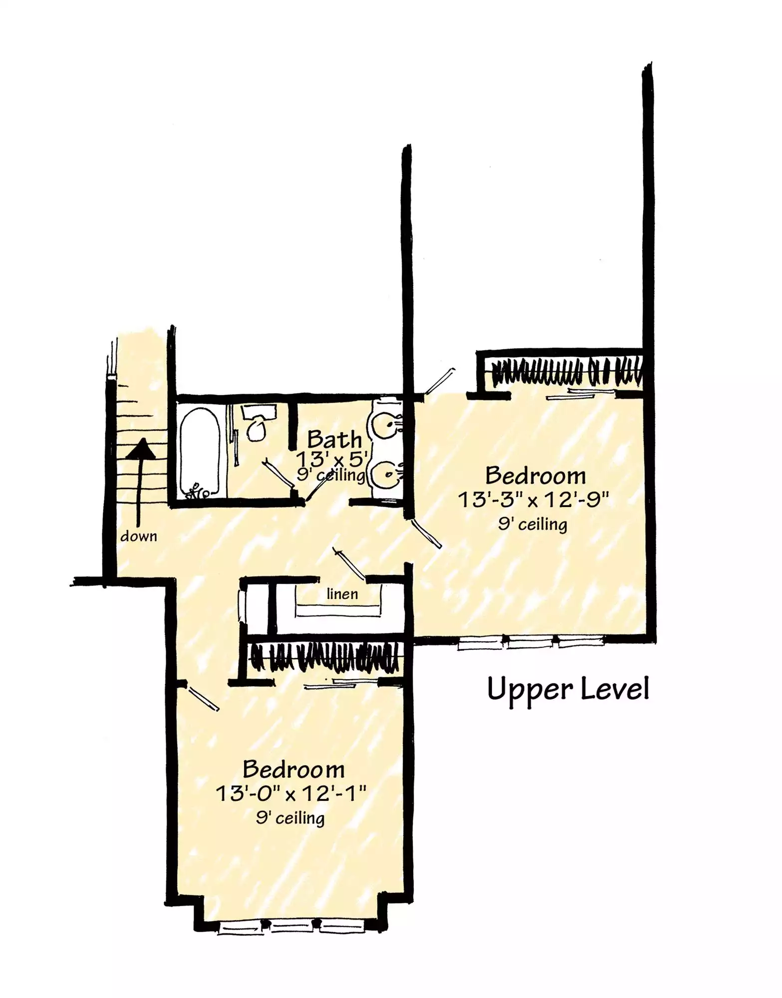
Looking for a barndo-inspired home with plenty of traditional country charm? Explore House Plan 9154, a 2,062-square-foot design with a covered porch that wraps around three sides! When you step inside, you'll find an office and a bedroom near a hall bath flanking the entry. The island kitchen and great room with a 22' ceiling have clear sightlines between them. The master suite is on the main level and has a four-piece hall bath and a walk-in closet. Two more bedrooms and a divided four-piece bath are located upstairs. House Plan 9154 has an oversized two-car garage, so you can do with that extra space what you want!  

See All Plan Options
 

FEATURES & DETAILS

Kitchen features
Kitchen Island
L-Shaped
Pantry
Bedroom features
Double Vanity Sink
Primary Bdrm Main Floor
Split Bedrooms
Walk-in Closet
Exterior features
Covered Front Porch
Covered Rear Porch
Outdoor Living Space
Wraparound Porch
Additional features
Fireplace
Great Room
Home Office
Laundry 1st Fl
Open Floor Plan
Vaulted Ceilings
Vaulted Great Room/Living
Garage Location
Front
Garage Options
Attached
Front-entry
Oversized
2,062 Ft
2
Total Heated
1,433 Ft
2
1st Floor
629 Ft
2
2nd Floor
4
Bedrooms
3
Bathrooms
2
Garage
2
Stories
69' 0"
Width
64' 2"
Depth
32' 2"
Height
10' 0"
Main Floor Ceiling
9' 0"
Upper Floor Ceiling
22' 0"
Living/Great Room Ceiling
12' 0"
Primary Ceiling
2x6
Framing
Stick
Roof Framing
12:12
Primary Roof Pitch
4:12
Secondary Roof Pitch
Single
Dwelling Number
None
Bonus Access

Unheated Living Space
1,032 Ft
2
Garage
 

Plan Package Options

 Select Plan Package
 Need To Reverse Plan? (Optional)
  Select Foundation Option
  Add-Ons (Optional)
INCLUDED WITH YOUR PURCHASE

Free Ground shipping in the U.S.

FREE

Home Building & Product Ideas Organizer

Sub Total
$0
Free Shipping
QUESTIONS OR NEED HELP ORDERING? LIVE CHAT OR CALL US AT 866-214-2242
Plan Packages

Each set of construction documents typically includes detailed, dimensioned floor plans, basic electric layouts, cross sections, roof details, cabinet layouts, and elevations, as well as general IRC specifications. Please refer to the ARCHITECT or DESIGNER’S PLAN DETAILS link above the floor plan on any plan page to determine the specific details for each plan. Our house plans contain virtually all of the information required to construct your home. The typical plan set does not include plumbing, HVAC drawings, or engineering stamps due to the wide variety of specific needs, local codes, and climatic conditions. These details and specifications are easily obtained from your builder, contractors, and/or local engineers.

BEST PRICE GUARANTEE

Find the same house plan (modifications included!) and package for less on another site, show us the URL and we'll give you the difference plus an additional 10% back.

100% SATISFACTION GUARANTEE

We offer a one-time, 30-day exchange policy for unused, printed plan packages in the event you aren't satisfied with your first selection.

 
 

Plan 9154  Back to plan page

Loading...