Get discounts,
promos, see our
newest plans
and more!
+ 15% off any plan
See terms opt out anytime


No Thanks

Thanks for
signing up!


Use Code:

SIGNUP15

And save 15% off any plan!

Check your email for details.

CLOSE
Search Plans
Customer Reviews
     
America’s Top Home Plans
Trusted House Plans From America's Leading Architects & Designers
20% off ALL House Plans Sitewide

Code: SAVE20
Sale ends midnight 5/13/2026 PST

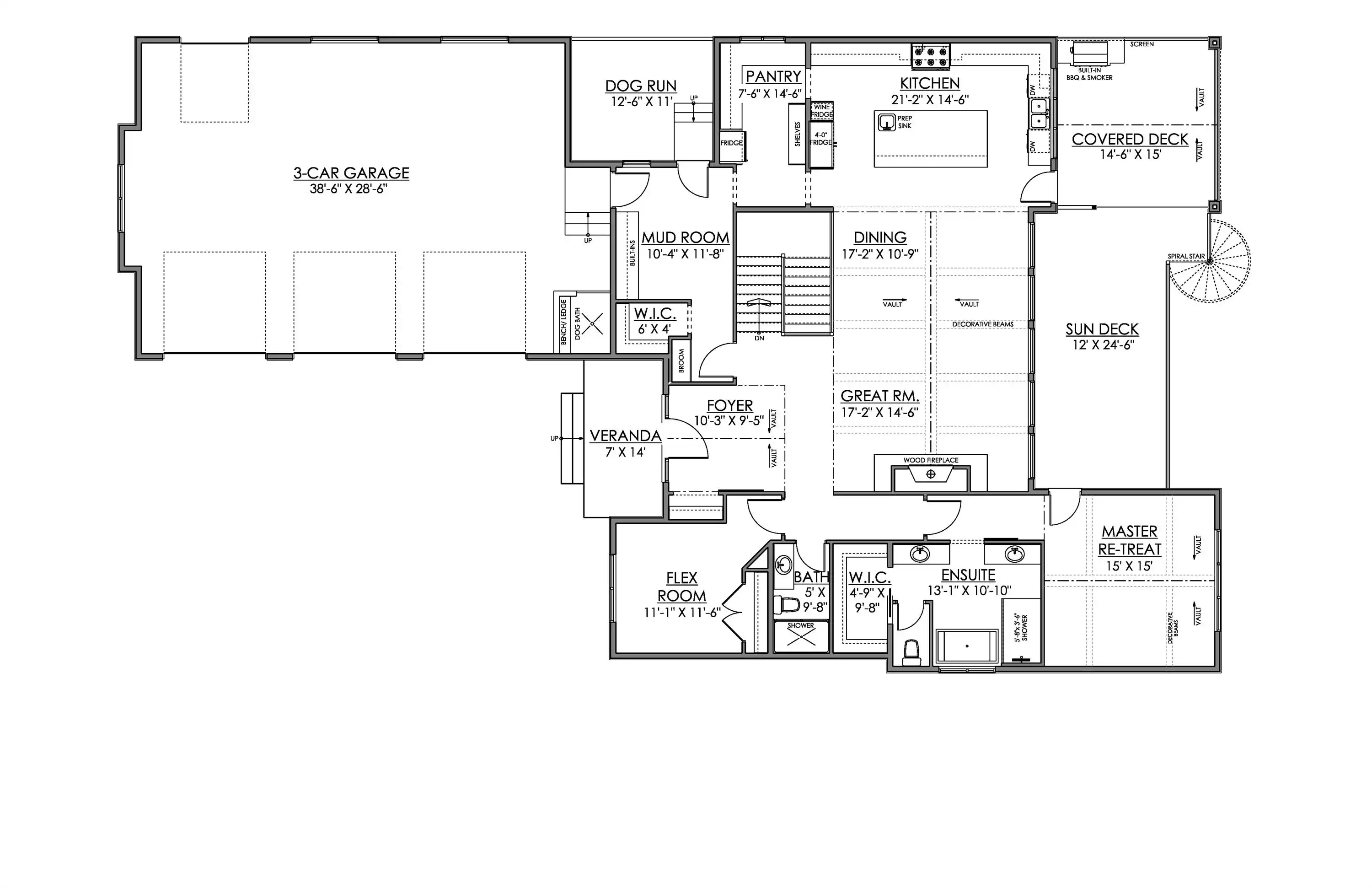
Lakepointe | Spacious Vaulted Lake Style House, Plan 9423

 
 

Sq Ft
2,209 FT²

Beds
2

Baths
2

Stories
1

Garage
3

Depth
97' 6"

Width
56' 2"
From
$1,500.00
© copyright by designer
 View All 5 Images | Photographs may reflect modified home
Sq Ft
2,209 FT²
Beds
2
Baths
2
Stories
1
Garage
3
Depth
97' 6"
Width
56' 2"
 
Click to Zoom In on Floor Plan
© copyright by designer
 
 

About This Plan

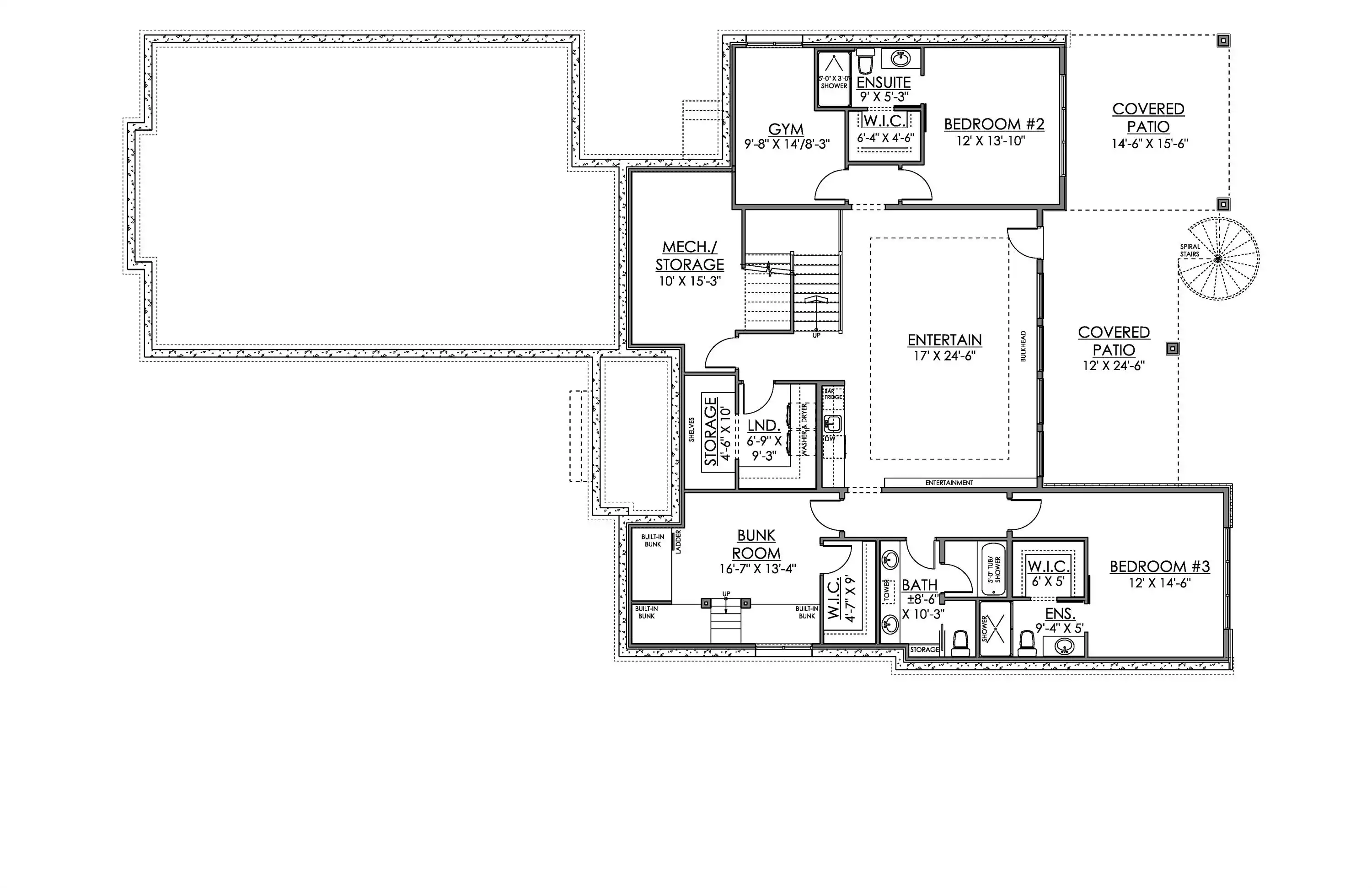
Are you looking to build a home on view lot deeper than it is wide? Perhaps it's also sloped and you want to make the most of it with a finished basement? If this sounds like you, House Plan 9423 is here for your consideration! Boasting a three-car garage in front and 2,209 square feet on the main level, this stunning design has amazing features and offers flexibility, too. Like vaulted ceilings? You'll find them in the foyer, spanning the great room, in the primary bedroom, and even on the back deck! The layout places two bedrooms and two bathrooms on one side, with the five-piece primary suite in back to enjoy better views. The common areas are totally open concept from the U-shaped island kitchen through the dining and living spaces. And the great room connects to the back deck to expand into the fresh air, too! Other highlights of the main level include the walk-in pantry, large mudroom, and pet-friendly additions like the dog wash station in the garage and the dog run off the mudroom. If you have that sloping lot and need more house, the finished walkout basement foundation has two bedroom suites, a bunk room, a thoughtfully divided hall bath, a rec room, and a gym in 1,786 more square feet. What a great setup for year-round or vacation living!  

See All Plan Options
 

FEATURES & DETAILS

Kitchen features
Kitchen Island
U-Shaped
Walk-in Pantry
Bedroom features
Double Vanity Sink
Primary Bdrm Main Floor
Separate Tub and Shower
Walk-in Closet
Exterior features
Covered Front Porch
Covered Rear Porch
Deck
Outdoor Kitchen
Outdoor Living Space
Lot Options
Suited for sloping lot
Additional features
Fireplace
Foyer
Great Room
Open Floor Plan
Rec Room
Storage Space
Vaulted Ceilings
Vaulted Foyer
Vaulted Great Room/Living
Vaulted Primary
Garage Location
Front
Garage Options
Attached
Front-entry
5,921 Ft
2
Total Structure
2,209 Ft
2
Total Heated
2,209 Ft
2
1st Floor
1,786 Ft
2
Lower Floor
138 Ft
2
Dog Run
2
Bedrooms
2
Bathrooms
3
Garage
1
Stories
56' 2"
Width
97' 6"
Depth
26' 8"
Height
10' 0"
Main Floor Ceiling
10' 0"
Lower Floor Ceiling
2x6
Framing
Truss
Roof Framing
8/12
Primary Roof Pitch
10/12
Secondary Roof Pitch
Single
Dwelling Number
None
Bonus Access

Unheated Living Space
1,178 Ft
2
Garage
610 Ft
2
Porch
98 Ft
2
Front Porch
512 Ft
2
Rear Porch
 

Plan Package Options

 Select Plan Package
 Need To Reverse Plan? (Optional)
  Select Foundation Option
  Add-Ons (Optional)
INCLUDED WITH YOUR PURCHASE

Free Ground shipping in the U.S.

FREE

Home Building & Product Ideas Organizer

Sub Total
$0
Free Shipping
QUESTIONS OR NEED HELP ORDERING? LIVE CHAT OR CALL US AT 866-214-2242
Plan Packages

Each set of construction documents typically includes detailed, dimensioned floor plans, basic electric layouts, cross sections, roof details, cabinet layouts, and elevations, as well as general IRC specifications. Please refer to the ARCHITECT or DESIGNER’S PLAN DETAILS link above the floor plan on any plan page to determine the specific details for each plan. Our house plans contain virtually all of the information required to construct your home. The typical plan set does not include plumbing, HVAC drawings, or engineering stamps due to the wide variety of specific needs, local codes, and climatic conditions. These details and specifications are easily obtained from your builder, contractors, and/or local engineers.

BEST PRICE GUARANTEE

Find the same house plan (modifications included!) and package for less on another site, show us the URL and we'll give you the difference plus an additional 10% back.

100% SATISFACTION GUARANTEE

We offer a one-time, 30-day exchange policy for unused, printed plan packages in the event you aren't satisfied with your first selection.

 
 

Plan 9423  Back to plan page

Loading...