Get discounts,
promos, see our
newest plans
and more!
+ 15% off any plan
See terms opt out anytime


No Thanks

Thanks for
signing up!


Use Code:

SIGNUP15

And save 15% off any plan!

Check your email for details.

CLOSE
Search Plans
Customer Reviews
     
15% off ALL House Plans Sitewide
15% off ALL House Plans Sitewide
15% off ALL House Plans Sitewide

Code: SAVE15
Sale ends midnight 4/19/2026 PST

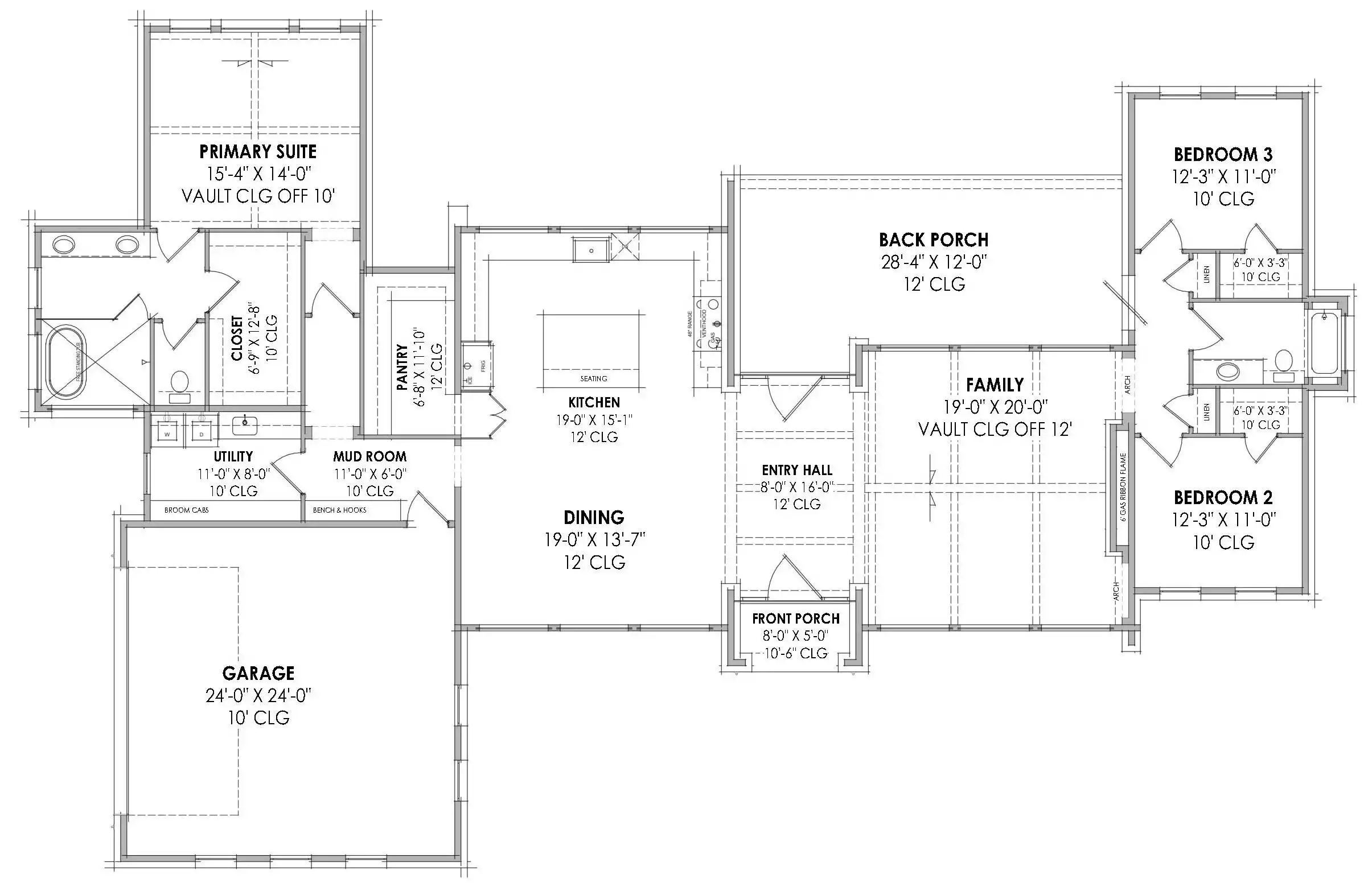
Alamosa | 3 Bedroom Transitional Style House, Plan 9211

 
 

Sq Ft
2,508 FT²

Beds
3

Baths
2

Stories
1

Garage
2

Depth
62'

Width
97'
On Sale
$1,470.50
$1,730.00
© copyright by designer
 View All 11 Images | Photographs may reflect modified home
Sq Ft
2,508 FT²
Beds
3
Baths
2
Stories
1
Garage
2
Depth
62'
Width
97'
 
Click to Zoom In on Floor Plan
© copyright by designer
 
 

About This Plan

An ideal home for a view lot, House Plan 9211 wows with its chic clear lines and unique layout made to merge indoors and out. Enter through the main entry and you'll find the door to the back porch straight ahead, with the open common areas split across it. On one side, there's a U-shaped island kitchen overlooking the dining space while the vaulted family room with a fireplace sits opposite. The luxurious five-piece primary suite with a vaulted bedroom is in the hallway off the kitchen along with the laundry and entry from the garage while the final two bedrooms and a hall bath are tucked behind the family room. Every room comes wrapped in windows--just imagine the effect in your favorite natural location!  

See All Plan Options
 

FEATURES & DETAILS

Kitchen features
Country Kitchen
Kitchen Island
U-Shaped
Walk-in Pantry
Bedroom features
Double Vanity Sink
Primary Bdrm Main Floor
Separate Tub and Shower
Split Bedrooms
Walk-in Closet
Exterior features
Covered Front Porch
Covered Rear Porch
Lot Options
Suited for corner lot
Suited for view lot
Additional features
Dining Room
Family Room
Fireplace
Foyer
Laundry 1st Fl
Mud Room
Open Floor Plan
Vaulted Great Room/Living
Vaulted Primary
Garage Location
Side
Garage Options
Attached
Side-entry
3,524 Ft
2
Total Structure
2,508 Ft
2
Total Heated
2,508 Ft
2
1st Floor
3
Bedrooms
2
Bathrooms
2
Garage
1
Stories
97' 0"
Width
62' 0"
Depth
23' 6"
Height
10' 0"
Main Floor Ceiling
12' 0"
Living/Great Room Ceiling
12' 0"
Foyer Ceiling
10' 0"
Primary Ceiling
2x4
Framing
Stick
Roof Framing
8/12
Primary Roof Pitch
Single
Dwelling Number
None
Bonus Access

Unheated Living Space
615 Ft
2
Garage
38 Ft
2
Front Porch
363 Ft
2
Rear Porch
 

Plan Package Options

 Select Plan Package
 Need To Reverse Plan? (Optional)
  Select Foundation Option
  Add-Ons (Optional)
INCLUDED WITH YOUR PURCHASE

Free Ground shipping in the U.S.

FREE

Home Building & Product Ideas Organizer

Sub Total
$0
Free Shipping
QUESTIONS OR NEED HELP ORDERING? LIVE CHAT OR CALL US AT 866-214-2242
Plan Packages

Each set of construction documents typically includes detailed, dimensioned floor plans, basic electric layouts, cross sections, roof details, cabinet layouts, and elevations, as well as general IRC specifications. Please refer to the ARCHITECT or DESIGNER’S PLAN DETAILS link above the floor plan on any plan page to determine the specific details for each plan. Our house plans contain virtually all of the information required to construct your home. The typical plan set does not include plumbing, HVAC drawings, or engineering stamps due to the wide variety of specific needs, local codes, and climatic conditions. These details and specifications are easily obtained from your builder, contractors, and/or local engineers.

BEST PRICE GUARANTEE

Find the same house plan (modifications included!) and package for less on another site, show us the URL and we'll give you the difference plus an additional 10% back.

100% SATISFACTION GUARANTEE

We offer a one-time, 30-day exchange policy for unused, printed plan packages in the event you aren't satisfied with your first selection.

 
 

Plan 9211  Back to plan page

Loading...