Get discounts,
promos, see our
newest plans
and more!
+ 15% off any plan
See terms opt out anytime


No Thanks

Thanks for
signing up!


Use Code:

SIGNUP15

And save 15% off any plan!

Check your email for details.

CLOSE
Search Plans
Customer Reviews
     
America’s Top Home Plans
Trusted House Plans From America's Leading Architects & Designers
20% off ALL House Plans Sitewide

Code: SAVE20
Sale ends midnight 5/13/2026 PST

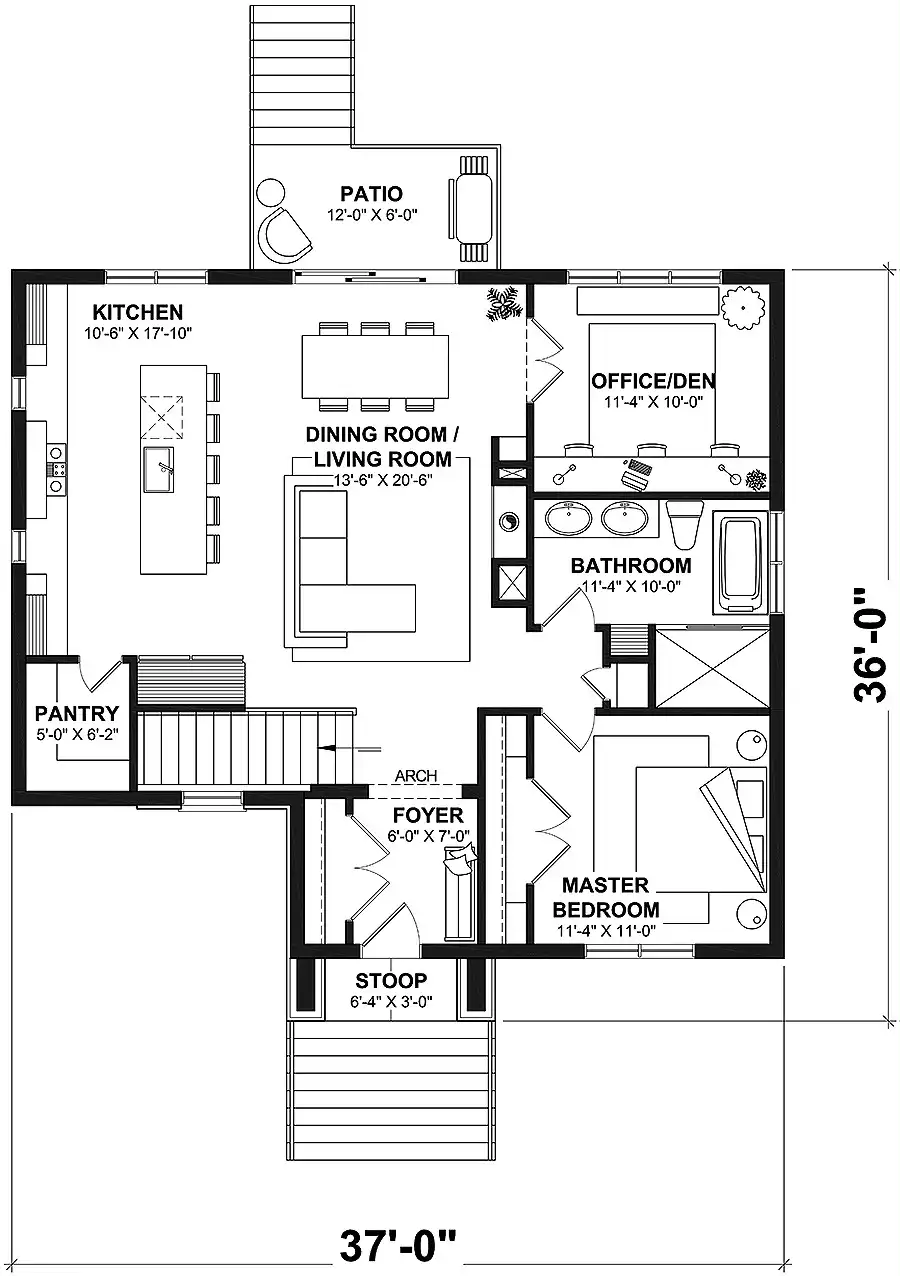
Jacques 3 Bedroom Scandinavian Style House, Plan 4240

 
 

Sq Ft
2,248 FT²

Beds
3

Baths
2

Stories
1

Garage
0

Depth
36'

Width
37'
From
$1,855.00
© copyright by designer
 View All 12 Images | Photographs may reflect modified home
Sq Ft
2,248 FT²
Beds
3
Baths
2
Stories
1
Garage
0
Depth
36'
Width
37'
 
Click to Zoom In on Floor Plan
© copyright by designer
 
 

About This Plan

House Plan 4240 is a wonderful inverted home with 2,248 square feet across the main level and the finished basement. The main level offers a foyer that leads into the totally open-concept living area with a large island kitchen overlooking the living and dining space. The primary bedroom is placed in a hallway with a five-piece hall bath while French doors open to the office in back. Downstairs, two more bedrooms share a hall bathroom. There's also a family room and the laundry. This nifty layout allows you to live comfortably on one level, and if/when you need more space for family and your budget allows, you can finish the lower floor. It's a great feature for young families and empty nesters who want to host alike! 

See All Plan Options
 

FEATURES & DETAILS

Kitchen features
Kitchen Island
L-Shaped
Walk-in Pantry
Bedroom features
Double Vanity Sink
Primary Bdrm Main Floor
Separate Tub and Shower
Split Bedrooms
Exterior features
Covered Front Porch
Rear Porch
Lot Options
Suited for narrow lot
Suited for sloping lot
Additional features
Family Room
Fireplace
Foyer
Great Room
Home Office
Inverted Living
Open Floor Plan
Garage Options
None
2,339 Ft
2
Total Structure
2,248 Ft
2
Total Heated
1,124 Ft
2
1st Floor
1,124 Ft
2
Lower Floor
3
Bedrooms
2
Bathrooms
0
Garage
1
Stories
37' 0"
Width
36' 0"
Depth
27' 8"
Height
8' 0"
Main Floor Ceiling
8' 0"
Lower Floor Ceiling
8' 0"
Living/Great Room Ceiling
8' 0"
Foyer Ceiling
8' 0"
Primary Ceiling
2x6
Framing
Truss
Roof Framing
12/12
Primary Roof Pitch
10/12
Secondary Roof Pitch
Single
Dwelling Number
None
Bonus Access

Unheated Living Space
19 Ft
2
Front Porch
72 Ft
2
Rear Porch
 

Plan Package Options

 Select Plan Package
 Need To Reverse Plan? (Optional)
  Select Foundation Option
  Add-Ons (Optional)
INCLUDED WITH YOUR PURCHASE

Free Ground shipping in the U.S.

FREE

Home Building & Product Ideas Organizer

Sub Total
$0
Free Shipping
Please allow 3-5 business days for delivery of this plan Please check our PDFs NOW collection for plans that can be downloaded and received immediately or live chat us to help you find a similar plan available now.
QUESTIONS OR NEED HELP ORDERING? LIVE CHAT OR CALL US AT 866-214-2242
Plan Packages

Each set of construction documents typically includes detailed, dimensioned floor plans, basic electric layouts, cross sections, roof details, cabinet layouts, and elevations, as well as general IRC specifications. Please refer to the ARCHITECT or DESIGNER’S PLAN DETAILS link above the floor plan on any plan page to determine the specific details for each plan. Our house plans contain virtually all of the information required to construct your home. The typical plan set does not include plumbing, HVAC drawings, or engineering stamps due to the wide variety of specific needs, local codes, and climatic conditions. These details and specifications are easily obtained from your builder, contractors, and/or local engineers.

BEST PRICE GUARANTEE

Find the same house plan (modifications included!) and package for less on another site, show us the URL and we'll give you the difference plus an additional 10% back.

100% SATISFACTION GUARANTEE

We offer a one-time, 30-day exchange policy for unused, printed plan packages in the event you aren't satisfied with your first selection.

 
 

Plan 4240  Back to plan page

Loading...