Get discounts,
promos, see our
newest plans
and more!
+ 15% off any plan
See terms opt out anytime


No Thanks

Thanks for
signing up!


Use Code:

SIGNUP15

And save 15% off any plan!

Check your email for details.

CLOSE
Search Plans
Customer Reviews
     
15% off ALL House Plans Sitewide
15% off ALL House Plans Sitewide
15% off ALL House Plans Sitewide

Code: SAVE15
Sale ends midnight 4/22/2026 PST

The Hawthorn Creek | 3 Bedroom Ranch Style House, Plan 12248

 
 

Sq Ft
1,639 FT²

Beds
3

Baths
2

Stories
1

Garage
2

Depth
39'

Width
64'
On Sale
$1,105.00
$1,300.00
© copyright by designer
 View All 3 Images | Photographs may reflect modified home | HPG-1639N
Sq Ft
1,639 FT²
Beds
3
Baths
2
Stories
1
Garage
2
Depth
39'
Width
64'
 

 
Click to Zoom In on Floor Plan
© copyright by designer
 
 

About This Plan

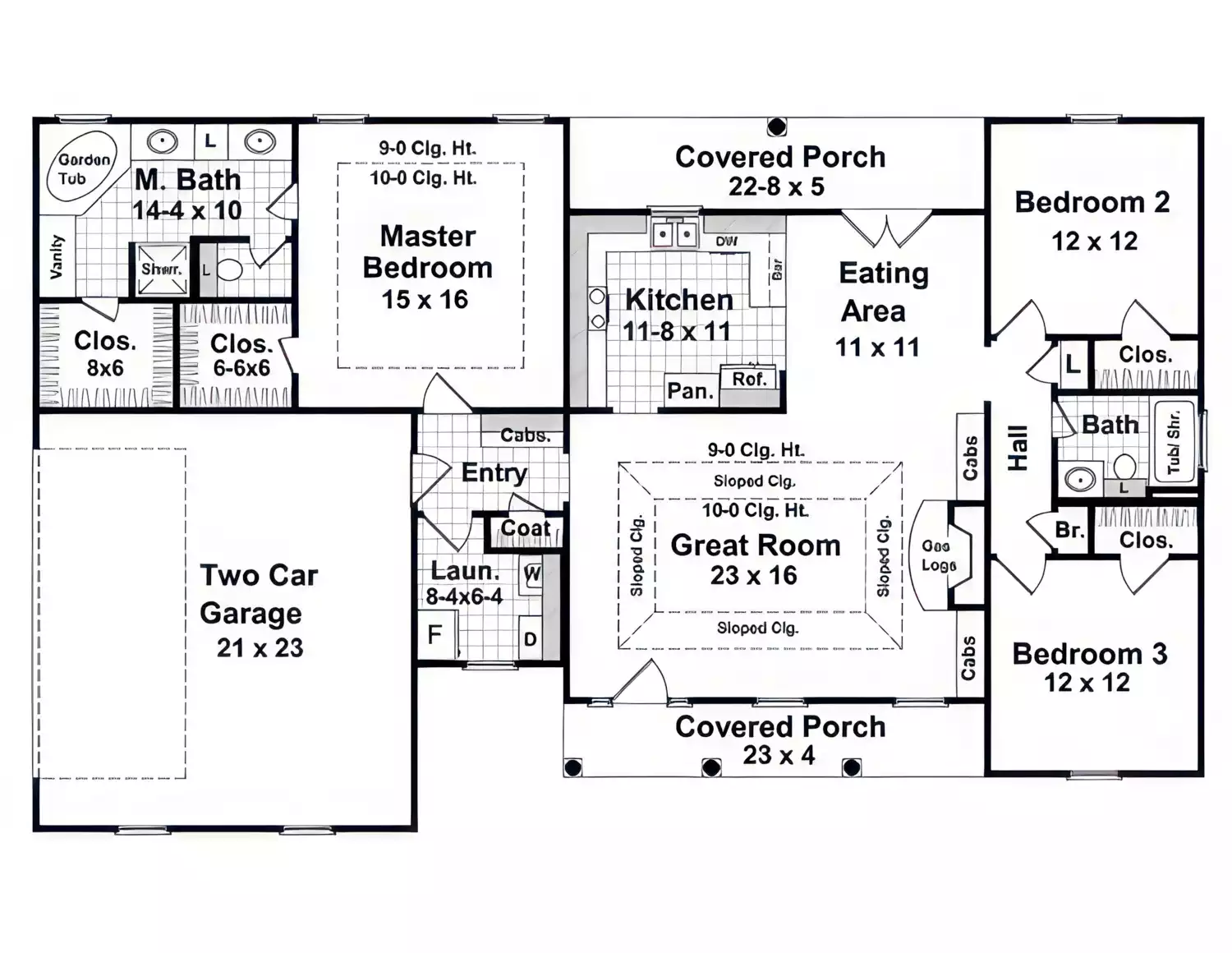
This 1,639 square foot home offers 3 bedrooms and 2 bathrooms in a practical single story layout designed for comfortable daily living. The vaulted great room creates an open central gathering space, with a fireplace adding warmth and visual character. A kitchen with a peninsula eating bar, pantry, and breakfast nook connects naturally to the main living area for easy everyday use. The open floor plan allows the dining room and great room to flow together while still maintaining clear functional spaces. The main floor primary suite includes separate his and hers closets, an additional walk-in closet, double vanity sinks, and a separate tub and shower. Split secondary bedrooms provide privacy and flexibility for family or guests. Covered front and rear porches extend the living space outdoors for quiet relaxation or entertaining. An attached side entry 2 car garage and mud room complete the home with added convenience. 

See All Plan Options
 

FEATURES & DETAILS

Kitchen features
Nook / Breakfast Area
Pantry
Peninsula / Eating Bar
Bedroom features
Double Vanity Sink
His and Hers Primary Closets
Primary Bdrm Main Floor
Separate Tub and Shower
Split Bedrooms
Walk-in Closet
Exterior features
Covered Front Porch
Covered Rear Porch
Lot Options
Suited for corner lot
Additional features
Dining Room
Fireplace
Great Room
Laundry 1st Fl
Mud Room
Open Floor Plan
Unfinished Space
Vaulted Ceilings
Garage Location
Side
Garage Options
Attached
Side-entry
2,319 Ft
2
Total Structure
1,639 Ft
2
Total Heated
1,639 Ft
2
1st Floor
1,639 Ft
2
Lower Floor
3
Bedrooms
2
Bathrooms
2
Garage
1
Stories
64' 0"
Width
39' 0"
Depth
22' 0"
Height
9' 0"
Main Floor Ceiling
2x4
Framing
Stick
Roof Framing
8/12
Primary Roof Pitch
10/12
Secondary Roof Pitch
Single
Dwelling Number

Unheated Living Space
474 Ft
2
Garage
205 Ft
2
Porch
92 Ft
2
Front Porch
113 Ft
2
Rear Porch
 

Plan Package Options

 Select Plan Package
 Need To Reverse Plan? (Optional)
  Select Foundation Option
  Add-Ons (Optional)
INCLUDED WITH YOUR PURCHASE

Free Ground shipping in the U.S.

FREE

Home Building & Product Ideas Organizer

Sub Total
$0
Free Shipping
QUESTIONS OR NEED HELP ORDERING? LIVE CHAT OR CALL US AT 866-214-2242
Plan Packages

Each set of construction documents typically includes detailed, dimensioned floor plans, basic electric layouts, cross sections, roof details, cabinet layouts, and elevations, as well as general IRC specifications. Please refer to the ARCHITECT or DESIGNER’S PLAN DETAILS link above the floor plan on any plan page to determine the specific details for each plan. Our house plans contain virtually all of the information required to construct your home. The typical plan set does not include plumbing, HVAC drawings, or engineering stamps due to the wide variety of specific needs, local codes, and climatic conditions. These details and specifications are easily obtained from your builder, contractors, and/or local engineers.

BEST PRICE GUARANTEE

Find the same house plan (modifications included!) and package for less on another site, show us the URL and we'll give you the difference plus an additional 10% back.

100% SATISFACTION GUARANTEE

We offer a one-time, 30-day exchange policy for unused, printed plan packages in the event you aren't satisfied with your first selection.

 
 

Plan 12248  Back to plan page

Loading...