Get discounts,
promos, see our
newest plans
and more!
+ 15% off any plan
See terms opt out anytime


No Thanks

Thanks for
signing up!


Use Code:

SIGNUP15

And save 15% off any plan!

Check your email for details.

CLOSE
Search Plans
Customer Reviews
     
America’s Top Home Plans
Trusted House Plans From America's Leading Architects & Designers
20% off ALL House Plans Sitewide

Code: SAVE20
Sale ends midnight 5/13/2026 PST

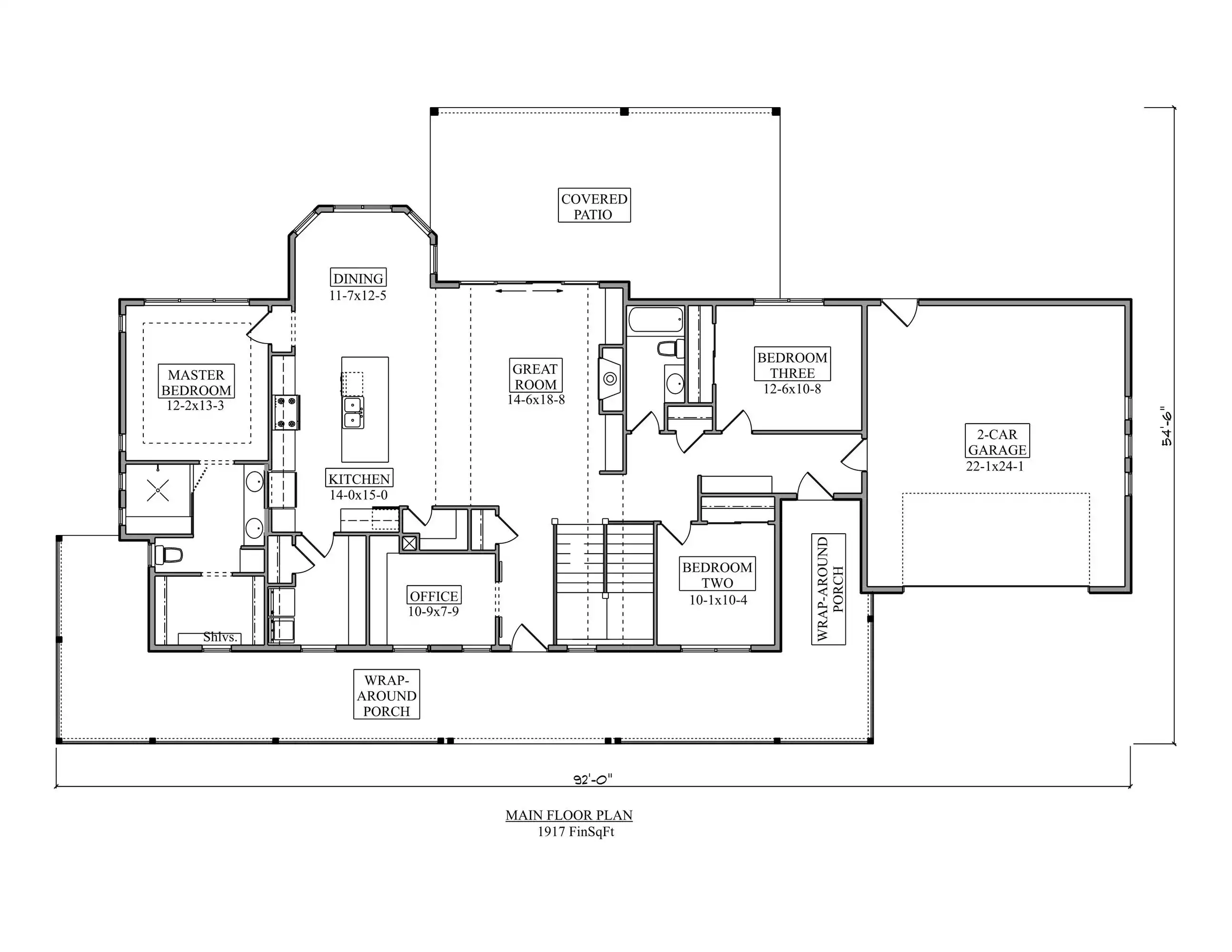
Colfax | 3 Bedroom Country Style House, Plan 10823

 
 

Sq Ft
1,917 FT²

Beds
3

Baths
2

Stories
1

Garage
2

Depth
54' 6"

Width
92'
From
$1,550.00
© copyright by designer
 View All 3 Images | Photographs may reflect modified home
Sq Ft
1,917 FT²
Beds
3
Baths
2
Stories
1
Garage
2
Depth
54' 6"
Width
92'
 
Click to Zoom In on Floor Plan
© copyright by designer
 
 

About This Plan

With classic country charm and a split-bedroom ranch layout, House Plan 10823 is ready to make your homesteading dreams come true! This lovely home features a wide facade with a wraparound front porch and a front-entry garage on the side. Inside, you'll find 1,917 square feet, three bedrooms, and two bathrooms in a perfectly balanced layout. The floor plan places the office off the foyer. Continue back and you'll find the great room, complete with a fireplace in the living area, an L-shaped island kitchen, and a sunny dining nook. The laundry room is also placed off the kitchen to consolidate everyday chores. The primary suite is on one side of the house and boasts a tray ceiling in the bedroom, a spacious bathroom with a dual vanity and a large stall shower, and a walk-in closet. Across the house, the secondary bedrooms are placed on opposite sides of a hallway and share a three-piece hall bath. A large covered patio in back completes this design!  

See All Plan Options
 

FEATURES & DETAILS

Kitchen features
Kitchen Island
L-Shaped
Nook / Breakfast Area
Walk-in Pantry
Bedroom features
Double Vanity Sink
Primary Bdrm Main Floor
Split Bedrooms
Walk-in Closet
Exterior features
Covered Front Porch
Covered Rear Porch
Wraparound Porch
Lot Options
Suited for view lot
Additional features
Dining Room
Fireplace
Foyer
Great Room
Home Office
Laundry 1st Fl
Mud Room
Open Floor Plan
Garage Location
Side
Garage Options
Attached
Front-entry
5,621 Ft
2
Total Structure
1,917 Ft
2
Total Heated
1,917 Ft
2
1st Floor
1,917 Ft
2
Lower Floor
3
Bedrooms
2
Bathrooms
2
Garage
1
Stories
92' 0"
Width
54' 6"
Depth
24' 2"
Height
10' 0"
Main Floor Ceiling
9' 0"
Lower Floor Ceiling
2x6
Framing
Truss
Roof Framing
10/12
Primary Roof Pitch
Single
Dwelling Number
None
Bonus Access

Unheated Living Space
575 Ft
2
Garage
1,212 Ft
2
Porch
 

Plan Package Options

 Select Plan Package
 Need To Reverse Plan? (Optional)
  Select Foundation Option
  Add-Ons (Optional)
INCLUDED WITH YOUR PURCHASE

Free Ground shipping in the U.S.

FREE

Home Building & Product Ideas Organizer

Sub Total
$0
Free Shipping
QUESTIONS OR NEED HELP ORDERING? LIVE CHAT OR CALL US AT 866-214-2242
Plan Packages

Each set of construction documents typically includes detailed, dimensioned floor plans, basic electric layouts, cross sections, roof details, cabinet layouts, and elevations, as well as general IRC specifications. Please refer to the ARCHITECT or DESIGNER’S PLAN DETAILS link above the floor plan on any plan page to determine the specific details for each plan. Our house plans contain virtually all of the information required to construct your home. The typical plan set does not include plumbing, HVAC drawings, or engineering stamps due to the wide variety of specific needs, local codes, and climatic conditions. These details and specifications are easily obtained from your builder, contractors, and/or local engineers.

BEST PRICE GUARANTEE

Find the same house plan (modifications included!) and package for less on another site, show us the URL and we'll give you the difference plus an additional 10% back.

100% SATISFACTION GUARANTEE

We offer a one-time, 30-day exchange policy for unused, printed plan packages in the event you aren't satisfied with your first selection.

 
 

Plan 10823  Back to plan page

Loading...